Version: 8.22.4Navigation überspringen
980.000 €
2.750 m² Grundstück
Immowelt logo

Grundstück zum Kauf
980000 €
356 €/m²
2.750 m² Grundstück

Grundstück mit baubewilligtem Wohnbauprojekt - 20 min. von Wien entfernt!

Grundstück mit baubewilligtem Wohnbauprojekt für 8 Einfamilienhäuser zu verkaufen!

Zum Verkauf gelangt ein schönes großes Grundstück mit einem baubewilligtem Neubauprojekt mit insgesamt 8 Wohneinheiten in der kleinen Ortschaft Wienerherberg, nähe Ebergassing.

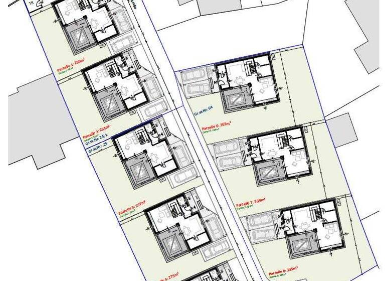
Das baugenehmigte Wohnprojekt besteht aus acht Einfamilienhäusern. Fünf Häuser verfügen eine Größe von ca. 110m² Wohnnutzfläche, die anderen drei haben eine Größe von ca. 119 m². Alle Häuser verfügen über großzügige Grundstücksgrößen, somit optimale Eigengärten.

Des Weiteren sind jeder Wohneinheit 2 Stellplätze im Freien in unmittelbarer Hauseingangsnähe beigefügt.

Heizung und Warmwasseraufbereitung erfolgen durch Luftwärmepumpe, eine Photovoltaikanlage am Dach kann ebenfalls angebracht werden.

Merkmale

  • 2.750 m² Grundstück
  • voll erschlossen
Das Bauträgergrundstück bietet eine Gesamtfläche von 2.750,05 m².

Flächenaufstellung:

* ca. 2.750,05 m² Grundstücksfläche
* 1.116,51 m² Bebaute Fläche
* ca. 907 m² Wohnnutzfläche

Grundrisse

Grundrisse
1 / 3

Realisiere Dein Projekt

Bausubstanz und Energie

Der Anbieter hat keine Informationen zu Energieverbrauch oder Zustand der Immobilie bereit gestellt.
Immowelt logo

Preisdetails

Kaufpreis
980000 €
356,36 €/m²
Provision für Käufer
3% des Kaufpreises zzgl. 20% USt. inkl. MwSt.

Lage

address-icon
Wienerherberg (2435)
Der Anbieter hat die genaue Adresse nicht freigegeben
600 m Kindergarten
3,2 km Volksschule
3,0 km nach Ebergassing
3,3 km Erlebnissbad Ebergassing
3,8 km nach Schwadorf
14 km zum Flughafen Wien-Schwechat
17 km Wiener Stadtgrenze

Das Projekt befindet sich in der Schmiedegasse 7 in 2435 Wienerherberg. Die Wiener Stadtgrenze sowie den Flughafen Schwechat erreicht man in rund zwanzig Minuten. Die umliegende Landschaft bietet viele Wander- und Radwege. Ob Freibad, Golfclub oder Reitstall, rund um Wienerherberg bestehen breite Freizeitangebote für die zukünftigen Eigentümer. Ein Kindergarten ist fußläufig in 8 Minuten erreichbar, die Volksschule befindet sich im Nachbarort Ebergassing.

Weitere Informationen

Sonstiges Der Kaufpreis beträgt 980.000,- Euro. Stichworte Bundesland: Niederösterreich

Weitere Services

Lust auf eine Besichtigung?
Eine Frage zur Immobilie?
Nachricht hinzufügen
Mit der Nutzung der oben angegebenen Telefonnummer oder durch Klicken auf „Kontaktieren“ akzeptierst Du die Allgemeinen Nutzungsbedingungen, denen Du jederzeit widersprechen kannst. Weitere Informationen zum Datenschutz

Über den Anbieter

Wohn3 Team GmbH
Wohn3 Team GmbHMaklerbüro
Weyrgasse 8/3, 1030 WIEN
partner badge
Partnerschaft
Frau Nadine GängerDein Kontakt
Online-ID: 2lkjx5s
Referenznummer: 7172
Wohn3 Team GmbH
Wohn3 Team GmbH
Nachricht hinzufügen
Mit der Nutzung der oben angegebenen Telefonnummer oder durch Klicken auf „Kontaktieren“ akzeptierst Du die Allgemeinen Nutzungsbedingungen, denen Du jederzeit widersprechen kannst. Weitere Informationen zum Datenschutz
Wie zufrieden bist du mit dieser Seite (nicht mit der Immobilie selbst)?