Version: 8.25.1Navigation überspringen
Sirius Facilities GmbH
7,90 €
50 m² Bürofläche

Bürofläche zur Miete
7,90 €
/m²
50 m² Bürofläche

Jetzt mieten: 50 m² Büro in Rastatt - Bezugsfertig!

Im Sirius Business Park Rastatt bieten wir Ihnen eine Vielzahl an Gewerbeimmobilien: die Auswahl umfasst moderne Büros, geräumige Lagerflächen und Produktionshallen, alle in einer vorteilhaften Lage und zu besonders günstigen Mietpreisen.

Wenn Sie ein modernes Büro suchen, bieten wir sowohl große Flächen ab 1.000 m² als auch kleinere Büros ab 20 m². Die kleineren Büros sind zu einem günstigen Pauschalpreis und mit flexiblen Laufzeiten ab einem Monat verfügbar. Die Lager- und Produktionsflächen punkten mit praktischen Zugänge via Rampen und Rolltore sowie Wasser- und Starkstromanschlüssen. Der Standort ist bereits Heimat zahlreicher Unternehmen aus den unterschiedlichsten Branchen, die insbesondere Netzwerk mit vielen Synergieeffekten sowie die attraktiven Konditionen zu schätzen wissen.

Merkmale

  • Lastenaufzug
  • Beleuchtung: Deckenbeleuchtung
  • Außen-Stellplatz
  • DSL-Anschluss
  • Wachdienst
  • Rolltor
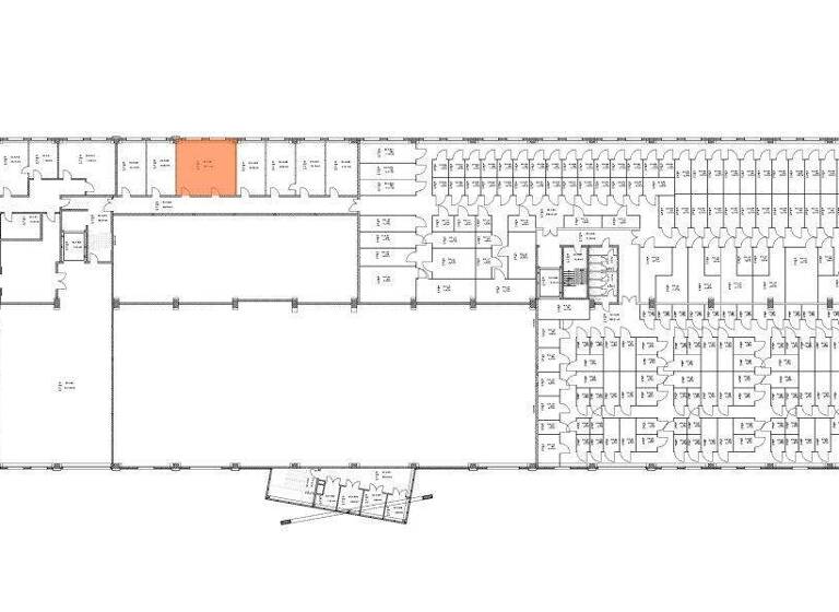
. Gesamtfläche: 50 m² im 2. OG
. Ausstattung: Lastenaufzug, Rolltor, Zentralheizung, möblierbar
. Technik: Datenverkabelung (CAT), ISDN, DSL
. Service: Sicherheitsdienst/Wachdienst
. Parken: Mietbare Stellplätze verfügbar
. Mietpreis: Ab 7,90?EUR/m² (zzgl. Nebenkosten & MwSt.)
. Verfügbarkeit: Ab sofort



Rufen Sie am besten gleich an unter 0800 40 40 880 35 - unser Team steht sofort zur Verfügung! Wir freuen uns sehr, Sie persönlich zu beraten. Eine schnelle Besichtigung richten wir ebenfalls sehr gern für Sie ein.
Entdecken Sie auch zahlreiche weitere Alternativen, die wir Ihnen gerne unverbindlich vorstellen können.

Grundrisse

Grundrisse
1 / 1

Realisiere Dein Projekt

Bausubstanz und Energie

Möchtest du Details zum Energieverbrauch?info_energy_calculation-icon
  • HeizungsartZentralheizung
MediumRectangleTop

Mietkosten

Monatliche Miete
7,90 €/m²
Provision für Mieter
Die Vermietung erfolgt provisionsfrei!
Kaution
3 Bruttowarmmieten

Lage

address-icon
Karlsruher Straße 31-33Rastatt (76437)
Die zentrale Lage in Rastatt erleichtert die Anreise erheblich. Für die Nutzung öffentlicher Verkehrsmittel befindet sich die Bushaltestelle Niederwaldstr. der Linie 232 direkt in der Nähe des Gewerbeparks. Mit dem Auto erreichen Sie uns schnell über die Autobahn A5 oder die Bundesstraße B36. Auf unserem Gelände bieten wir selbstverständlich auch ausreichend Parkplätze für PKWs und Fahrräder.


* Bequeme Anfahrt *

Buslinie 232: 0,3 km
Bahnhof Rastatt: 1 km
Anschluss an die A 5: 3 km

Weitere Informationen

Sonstiges *Das Angebot gilt für Neukundenverträge über Büros, die bis zum 16.03.26 unterzeichnet werden, und ist nicht kombinierbar mit anderen Rabatten und Aktionen. Die mietfreie Zeit wird ab 12 Monaten Laufzeit im 12. Monat, ab 24 Monaten im 12. und 24. Monat gewährt. Das Angebot bezieht sich auf die Nettokaltmiete, Nebenkosten bzw. -anteile sind vollumfänglich zu zahlen. Ausnahme sind Büros mit einer All-in-Miete, hier bezieht sich das Angebot auf die Pauschalmiete. Ausgenommen von der Aktion sind Loftbüros, Flächen in First Choice Business Centern und bereits in Verhandlung befindlichen Anfragen. Außerdem sind Büros mit Abrechnung nach m² an folgenden Standorten ausgenommen**: promo.siriusfacilities.com/p1intern/

+++ Innovative Technologielösungen am Standort für Sie als Mieter +++

Mit unserem All-in-One-Service vermeiden Sie lange Wartezeiten und mühsame Kommunikation mit verschiedenen Anbietern. Unser Anschluss ist sofort verfügbar und kann ab 1 Monat gemietet werden.

+ Highspeed-Internet mit 100 Mbit/s über Glasfaserleitungen. (symmetrische Upload-/Downloadgeschwindigkeit)

+ Professionelle Telefonanlage mit Wildix-Telefonen.

+ 3.000 Freiminuten in 34 Länder, erreichbar über Cloud-basierte Lösungen.

+ Unser kompetentes Team vor Ort unterstützt Sie bei allen Fragen rund um unsere Services.

Die Abbildungen bzw. die Fotos der Mietflächen dienen lediglich der optischen Orientierung. Die Abbildungen der Mietflächen begründen keinen Anspruch auf ihren Erhalt und bedeuten nicht, dass diese, wie abgebildet, auch zur Verfügung stehen. Für genauere Informationen zu den Mietflächen ist die Produktbeschreibung maßgeblich. Fahrzeit zur Auto... 5,00 Fahrzeit zum Flug... 23,00 Fahrzeit zum Bahnhof 2,00 Stichworte Sonstiges: ISDN, EDV-Verkabelung

Weitere Services

Lust auf eine Besichtigung?
Eine Frage zur Immobilie?
Mit einer persönlichen Nachricht hast du bessere Chancen auf eine Antwort.
Mit der Nutzung der oben angegebenen Telefonnummer oder durch Klicken auf „Kontaktieren“ akzeptierst Du die Allgemeinen Nutzungsbedingungen, denen Du jederzeit widersprechen kannst. Weitere Informationen zum Datenschutz

Über den Anbieter

Eichhornstraße 3, 10785 Berlin
partner badge
10 Jahre Partnerschaft
Herr Felix Meier
Herr Felix MeierDein Kontakt

Weitere Unterlagen

Online-ID: 25CW9Y69GMVL
Referenznummer: A11948A
Sirius Facilities GmbH
title
Sirius Facilities GmbH
Bewertung: 4,4 von 5 Sternen
Mit einer persönlichen Nachricht hast du bessere Chancen auf eine Antwort.
Mit der Nutzung der oben angegebenen Telefonnummer oder durch Klicken auf „Kontaktieren“ akzeptierst Du die Allgemeinen Nutzungsbedingungen, denen Du jederzeit widersprechen kannst. Weitere Informationen zum Datenschutz
MediumRectangleTop
MediumRectangleBottom
MediumRectangleTop
Wie zufrieden bist du mit dieser Seite (nicht mit der Immobilie selbst)?