Wohnung 60m2 zum Kauf - Zadar, Povljana
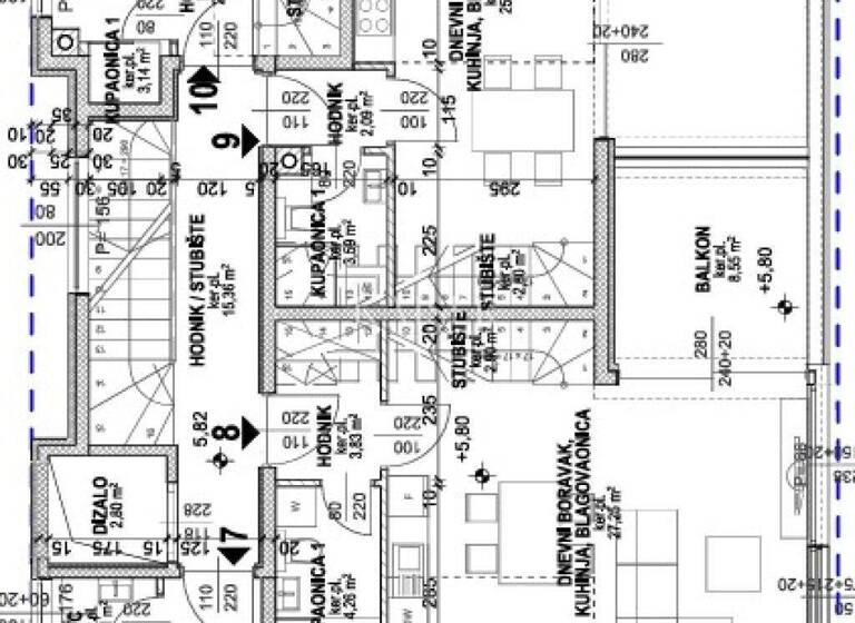
NEUBAU POVLJANA - Moderne Wohnungen mit Meerblick, 500 m vom Strand entfernt! Zum Verkauf stehen 10 Wohnungen in einem Neubau in Povljana auf der Insel Pag, nur 500 Meter vom Meer entfernt. Das Gebäude erstreckt sich über drei Etagen (Erdgeschoss + 2 Obergeschosse), besticht durch modernes Design und hohe Baustandards. FERTIGSTELLUNG DER ARBEITEN UND EINZUG: Herbst 2025. MERKMALE DES GEBÄUDES UND DER WOHNUNGEN: Aufzug Meerblick Elektrische Fußbodenheizung in allen Zimmern Jede Wohnung hat einen Abstellraum und 2 Parkplätze (einige Wohnungen haben die Option auf eine Garage oder einen überdachten Platz) Option zum Kauf eines zusätzlichen Garagenplatzes Hochwertige Bauweise und moderne Architektur Möglichkeit der Mehrwertsteuerrückerstattung für Käufer, die juristische Personen sind (Investoren) WOHNUNGSÜBERSICHT WOHNUNG 1 - Erdgeschoss - 260.000 € Wohnungsfläche: 57,77 m² Flur, Badezimmer, Wohnzimmer + Esszimmer, Schlafzimmer 1, Schlafzimmer 2 Terrasse: 15,34 m² Hof: 23,54 m² Abstellraum: 2,88 m² Parkplätze: PM 10 (11,00 m²) + zusätzlicher Platz Gesamt: ca. 110,5 m² mit Terrasse, Hof und Abstellraum WOHNUNG 2 - Erdgeschoss - 193.500 € Wohnungsfläche: 44,10 m² Flur, Badezimmer, Wohnzimmer + Esszimmer, Schlafzimmer 1 Terrasse: 8,83 m² Abstellraum: 2,88 m² Parkplätze: PM 11 (11,00 m²) + zusätzlicher Raum WOHNUNG 3 - Erdgeschoss - 320.000 € Wohnungsfläche: 57,55 m² Flur, Badezimmer, Wohnzimmer + Esszimmer, Schlafzimmer 1, Schlafzimmer 2 Terrasse: 38,70 m² Hof: 68,50 m² Abstellraum: 2,88 m² Parkplätze: PM 9 (11,00 m²) + zusätzlicher Raum WOHNUNG 4 - 1. Stock - 255.000 € Wohnungsfläche: 57,77 m² Flur, Badezimmer, Wohnzimmer + Esszimmer, Schlafzimmer 1 2 Terrasse: 15,34 m² Abstellraum: 2,88 m² Parkplätze: PM 14 (11,00 m²) + zusätzlicher Raum WOHNUNG 5 - 1. Stock - 193.500 € Wohnungsfläche: 44,05 m² Flur, Badezimmer, Wohnzimmer + Esszimmer, Schlafzimmer 1 Terrasse: 8,83 m² Abstellraum: 2,34 m² Parkplätze: PM 13 (11,00 m²) + zusätzlicher Raum WOHNUNG 6 - 1. Stock - 305.000 € Wohnungsfläche: 57,55 m² Flur, Badezimmer, Wohnzimmer + Esszimmer, Schlafzimmer 1, Schlafzimmer 2 Terrasse: 38,70 m² Abstellraum: 2,34 m² Parkplätze: PM 12 (11,00 m²) + zusätzlicher Raum WOHNUNG 7 - VERKAUFT WOHNUNG 8 - II. Etage - ZWEI-EBENEN - 345.000 € Untere Etage: 38,24 m² Flur, Badezimmer, Wohnzimmer + Esszimmer, Innentreppe Untere Terrasse: 8,55 m² Obere Etage: 38,24 m² Treppe, Zimmer 1, Flur, Zimmer 2 Obere Terrasse: 16,63 m² Abstellraum: 2,34 m² Parkplätze: Überdachter PM NPM 7 (15,28 m²) + zusätzlicher Raum WOHNUNG 9 - II. Etage - ZWEI-EBENEN - 340.000 € Untere Etage: 34,26 m² Flur, Bad, Wohnzimmer + Esszimmer, Innentreppe Untere Terrasse: 18,09 m² Obere Etage: 32,24 m² Treppe, Zimmer 1, Flur, Zimmer 2 Obere Terrasse: 15,02 m² Abstellraum: 2,34 m² Parkplätze: PM 8 (12,50 m²) + zusätzlicher Raum WOHNUNG 10 - II. 1. Stock - ZWEI EBENEN - 445.000 € Untere Etage: 34,59 m² Flur, Badezimmer, Wohnzimmer + Esszimmer, Innentreppe Untere Terrasse: 19,42 m² Obere Etage: 33,14 m² Treppe, Schlafzimmer 1, Flur, Schlafzimmer 2 Obere Terrasse: 78,13 m² (große private Terrasse mit Meerblick) Abstellraum: 3,72 m² Parkplätze: Garage G4 (14,95 m²) + zusätzlicher Freiraum POVLJANA - INSEL PAG Povljana ist ein malerischer und ruhiger Ort auf der Südseite der Insel Pag, perfekt für einen Familienurlaub oder -leben. Bekannt für seine langen Kies- und Sandstrände, Radwege, das klare Meer und den Heilschlamm. Die Stadt verfügt über alle wichtigen Einrichtungen - Geschäfte, Restaurants, Cafés, Sportanlagen, Schulen und Kinderspielplätze. Dank der Pager Brücke das ganze Jahr über erreichbar. Die Maklerprovision für den Käufer beträgt 3% zzgl. MwSt. und wird beim Kauf einer Immobilie nach Abschluss des ersten Rechtsgeschäfts fällig. Kontaktieren Sie uns vertrauensvoll für weitere Informationen und um einen Besichtigungstermin zu vereinbaren. Tel.: +385915404646 E-Mail: vedran@kaiser-immobilien.hr
ID CODE: 138-39
Vedran Vilovic
Agent posredovanja u prometu nekretnina
Mob: +385997031459, +385995677888
E-mail: vedran@kaiser-immobilien.hr
www.kaiser-immobilien.hr