

Büro zur Miete15,50 €/m²5 Zimmer • 419,2 m² Bürofläche
15,50 €
/m²
5 Zimmer • 419,2 m² Bürofläche
Exklusive Büroetagen im ARES Tower - 20. Etage, 419 m² Büro
Merkmale
- Bezug: ab sofort
- 20. Geschoss
- Teeküche
- Personenaufzug
- Gäste-WC
- Barrierefrei
- voll klimatisiert
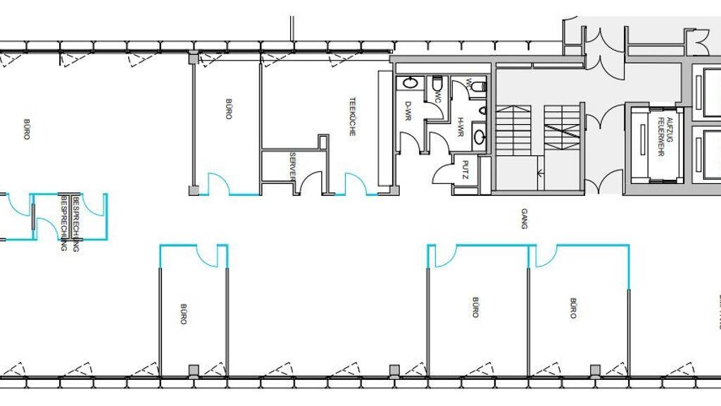
Grundrisse
Verschaffe dir einen genauen Überblick über die Raumaufteilung.

Realisiere Dein Projekt
Bausubstanz und Energie
Heizwärmebedarf (HWB)
C
Gesamtenergieeffizienz (fGEE)
- Zustand der ImmobilieNeubau
- EnergieträgerFernwärme
Mietkosten
Nettokaltmiete
15,50 €/m²
6.497,60 €
Betriebskosten
1.970,24 €
Provision für Mieter
3 Bruttomonatsmieten zzgl. 20% USt.
Kaution
6 Bruttomonatsmieten
Weitere Preisinformationen
Nettokaltmiete: 6.497,60 EUR
Lage

Donau-City-Straße, Wien (1220)
Weitere Informationen
Weitere Services
Lust auf eine Besichtigung?
Eine Frage zur Immobilie?
Über den Anbieter
Rotenturmstrasse 17, Top 10-12, 1010 WIEN
Partnerschaft
Herr Bernhard Kramer-DraubergDein Kontakt
Weitere Unterlagen
Online-ID: 23LHVFUYZDTH
Referenznummer: OBGC20190510094535214abc1ef270f

Immobiliaris GmbH
Bewertung: 3,5 von 5 Sternen
Wie zufrieden bist du mit dieser Seite (nicht mit der Immobilie selbst)?

