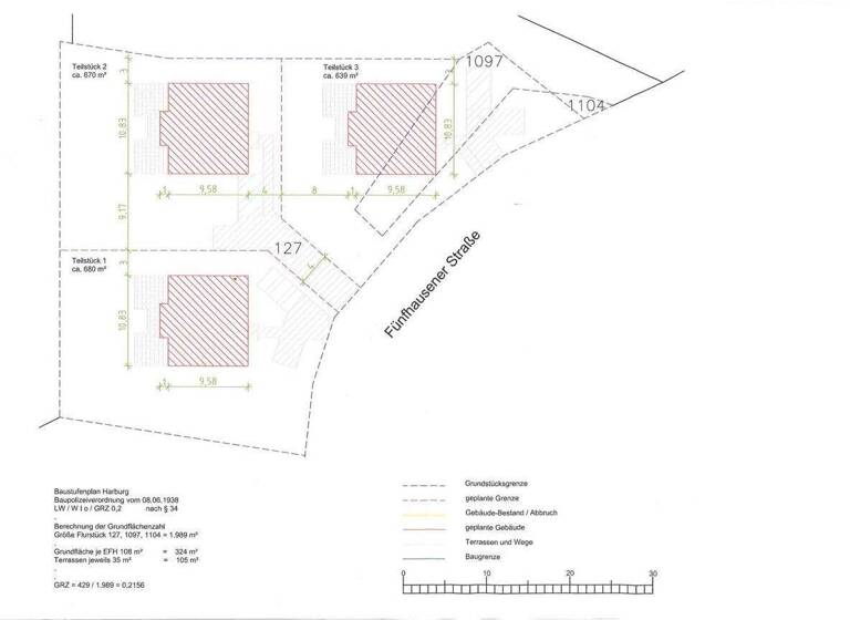
Das ca. 1.989 m² große Baugrundstück liegt an der öffentlichen Straße "Fünfhausener Straße", anliegend an dem Naturschutzgebiet "Neuländer Moorwiesen" und bietet vielseitige Bebauungsmöglichkeiten an. Das Umfeld ist geprägt von frei stehenden Einfamilienhäusern und Doppelhäusern auf gepflegten Grundstücken. Altbeständen befinden sich nicht auf dem Grundstück.
Für den Gültigkeitsbereich dieses Grundstücks gibt es keinen gültigen Bebauungsplan, es gilt der "Baustufenplan Harburg Änderung vom 13.09.1960".
Es liegt ein positiver Bauvorbescheid vor für den Bau von drei Einzelhäusern auf dem Grundstück.
Ein Gespräch zur Information über Ihre persönliche Bebauungswünsche bei dem Bauamt in Hamburg-Harburg ist ratsam.
Merkmale
1.989 m² Grundstück
teilweise erschlossen
Grundrisse
Grundrisse
1 / 1
Realisiere Dein Projekt
Bausubstanz und Energie
Der Anbieter hat keine Informationen zu Energieverbrauch oder Zustand der Immobilie bereit gestellt.
Preisdetails
Kaufpreis
515000 €515.000 €
284,06 €/m²
Provision für Käufer
3,57 % inkl. MwSt.
Geschätzte Gesamtkosten
533.386 €1
Kaufpreis
515.000 €
Kaufnebenkosten
18.386 €
2
Provision für Käufer (3,57%)
18.386 €
1Der angezeigte Wert ist eine automatisch berechnete Schätzung von immowelt.
2Bei den Angaben handelt es sich um ortsübliche Werte. Individuelle Kosten können abweichen.
Lage
Bullenhausen, Hamburg (21079)
Der Anbieter hat die genaue Adresse nicht freigegeben
Der Hamburger Stadtteil Neuland befindet sich direkt an der Landesgrenze zu Niedersachsen und gehört zu dem Bezirk Hamburg-Harburg.
In wenigen Minuten erreichen Sie die Autobahn A1 und A7 sowie die Bundesstraße B75, die direkt in die Hamburger City führt. Die S- und Regionalbahn sowie die Harburger Innenstadt mit dem Phönix-Center, der Fußgängerzone Lüneburger Straße und dem Wochenmarkt sind ca. 2,5 km entfernt. Sie erreichen die Hamburger City binnen 15 Autominuten.
Der vor einigen Jahrhunderten erbaute Seevekanal fließt in der Nähe, die Süderelbe sowie viele kleine Seen und Naturschutzgebiete können Sie bequem mit dem Fahrrad erreichen. Störche und andere seltene und geschützte Tiere leben hier mit den wenigen Dorfbewohnern ungestört zusammen.
Weitere Informationen
Stichworte
GRZ: ca. 2,0 bis 2,5, Bundesland: Hamburg, Distanz zur Grundschule: 1.06, Distanz zur nächsten Einkaufsmöglichkeit: 2.40, Distanz zum Hauptbahnhof: 3.87, Distanz zur Autobahn: 1.50, Distanz zum Bus: 0.35, Distanz zur nächsten Gaststätte: 0.98, Distanz zur Hauptschule: 4.83