Version: 8.24.1Navigation überspringen
11,50 €
592,7 m² Bürofläche
Immowelt logo

Bürofläche zur Miete
11,50 €
/m²
592,7 m² Bürofläche

Der Gillitzer - ein historischer Standort im Zentrum der Stadt Rosenheim.

Der revitalisierte und hervorragend renovierte "Gillitzer" ist ein bekanntes Geschäftshaus in der Rosenheimer Innenstadt. Unsere Angebotfläche befindet sich im 4. Obergeschoss, ist barrierefrei erreichbar und sehr gut ausgestattet. Das Layout der Fläche ist vielseitig nutzbar und bietet beste Voraussetzungen für einen erfolgreichen Geschäftsbetrieb.

- sehr gute Lage im Zentrum der Stadt Rosenheim
- revitalisiertes und bestens renoviertes, bekanntes Gebäude
- erstklassig ausgebaute Fläche mit sehr gut geschnittenen Büros
- Aufzug, Klimaanlage, IT-Netzwerk, Glasfaseranschluss, Teeküche

Je nach Verfügbarkeit können in der hauseigenen Tiefgarage bis zu 3 PKW-Stellplätze zusätzlich zu einem monatlichen Mietpreis von EUR130,00 je Stellplatz zzgl. MwSt. angemietet werden. Weitere 3 Stellplätze sind im nahen Parkhaus P4 Mitte verfügbar.

Merkmale

  • Bezug: frei ab Juni 2026

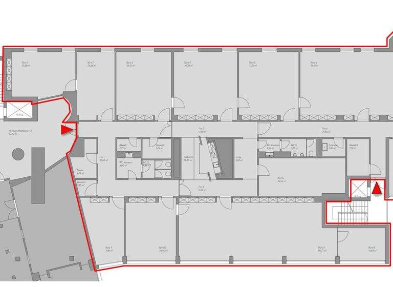
Grundrisse

Grundrisse
1 / 1

Realisiere Dein Projekt

Bausubstanz und Energie

Energieausweis

Endenergiebedarf (Wärme)

Endenergiebedarf (Strom)

  • Baujahr1974
  • EnergieträgerFernwärme
Immowelt logo

Mietkosten

Monatliche Miete
11,50 €/m²
Provision für Mieter
1,78 Netto-Monatsmieten inkl. MwSt.
Kaution
keine Angabe

Lage

address-icon
InnenstadtRosenheim (83022)
Der Anbieter hat die genaue Adresse nicht freigegeben
Eingebettet in einem der schönsten Winkel des Alpenvorlandes, empfiehlt sich Rosenheim - als wirtschaftliches Zentrum für rund 350.000 Einwohner - seinen Besuchern mit optimalen Verkehrsanbindungen und einem hochwertigen Kultur- und Freizeitangebot zu allen Jahreszeiten.

In der Stadt Rosenheim leben ca. 60.000 Einwohner, der Stadtumlandbereich umfasst ca. 125.000 Einwohner und im gesamten Einzugsbereich (auch Österreich/ Nordtirol) wohnen etwa 350.000 Menschen. Die besondere landschaftliche wie auch wirtschaftliche Attraktivität hat in den letzten Jahren zu einem überdurchschnittlichen Bevölkerungs- und Wirtschaftswachstum geführt.

Zu einer ganzen Fülle von positiven Standortfaktoren gehört die sehr gute Verkehrsinfrastruktur mit Anbindung an europäische Hauptverkehrsachsen über Straße und Schiene und die Nähe der internationalen Flughäfen München und Salzburg sowie das reichhaltige und hochqualifizierte Kulturangebot und der hohe Freizeitwert der Chiemgauer Alpen.

Die Leistungsfähigkeit der heimischen Wirtschaft, der starke Branchenmix und die hohe Kaufkraft des oberbayerischen Raumes sorgen für beste Standortbedingungen. Das Breitbandnetz ist in Rosenheim in hervorragender Weise ausgebaut und bietet besten Bedingungen.

Die angebotene Mietfläche befindet sich in einem markanten Geschäftshaus in zentraler Innenstadtlage.

Weitere Informationen

Nutzung Büro- und Praxisnutzungen Zusatz/Über Uns Sie möchten mehr Informationen zu diesem Objekt? Gern übersenden wir Ihnen unverbindlich unser aussagekräftiges Exposé. Ein Email oder Anruf genügt.

Die im Exposé angegebenen Daten beruhen auf Angaben des Eigentümers. Für diese Angaben übernehmen wir keine Gewähr. Der Maklervertrag mit uns kommt entweder durch schriftliche Vereinbarung, oder auch durch die Inanspruchnahme unserer Maklertätigkeit auf der Basis des Objekt Exposés und seiner Bedingungen zustande.

Unsere Beratungsleistung ist erfolgsorientiert und für Sie bis zum Abschluss eines Vertrages freibleibend. Gern stehen wir Ihnen beratend zur Seite. Wir freuen uns auf Ihren Anruf.

Herzlich Willkommen bei Felder, Ihrem Spezialisten für Gewerbeimmobilien in Rosenheim, Traunstein, dem Chiemgau und Oberbayern.

Sie suchen eine Gewerbeimmobilie im Rosenheimer Land, Traunstein, Oberbayern oder dem Chiemgau und möchten sich bei Ihrer Suche auf das Fachwissen und Netzwerk eines starken Partners verlassen können? Sie möchten Ihre Gewerbeimmobilie vermieten oder verkaufen? Sie suchen die passenden Mieter oder Investoren? Dann sollten Sie uns ansprechen und von unserem Bekanntheitsgrad und großem Netzwerk in der Region profitieren.

Wir begleiten Sie vom ersten Kontakt bis zur Unterschrift unter dem Miet- oder Kaufvertrag. Seit über 25 Jahren ist die Firma Felder als der Spezialist für Gewerbeimmobilien im Rosenheimer Immobilienmarkt bekannt. Mehr Immobilien finden Sie auf felder-gewerbe.de

Weitere Services

Lust auf eine Besichtigung?
Eine Frage zur Immobilie?
Nachricht hinzufügen
Mit der Nutzung der oben angegebenen Telefonnummer oder durch Klicken auf „Kontaktieren“ akzeptierst Du die Allgemeinen Nutzungsbedingungen, denen Du jederzeit widersprechen kannst. Weitere Informationen zum Datenschutz

Über den Anbieter

Ludwigsplatz 15, 83031 Rosenheim
partner badge
Partnerschaft
Frau Tanja HeiseDein Kontakt
Online-ID: 2ezmu55
Referenznummer: A1209
Felder. Der Gewerbespezialist GmbH
Felder. Der Gewerbespezialist GmbH
Bewertung: 5 von 5 Sternen
Nachricht hinzufügen
Mit der Nutzung der oben angegebenen Telefonnummer oder durch Klicken auf „Kontaktieren“ akzeptierst Du die Allgemeinen Nutzungsbedingungen, denen Du jederzeit widersprechen kannst. Weitere Informationen zum Datenschutz
Wie zufrieden bist du mit dieser Seite (nicht mit der Immobilie selbst)?