AUSBAU NACH WUNSCH | AUSREICHEND PARKPLÄTZE | MEZZANINE | FLUGHAFENNÄHE | VIDAN REAL ESTATE
Die Gewerbeliegenschaft mit Logistik- und Büronutzung befindet sich in verkehrsgünstiger Lage von Gremberghoven und das Mietangebot liegt im ersten Obergeschoss. Nach Rücksprache mit dem Vermieter lässt sich die Bürofläche individuell ausbauen, gerade auch im Hinblick auf die räumliche Gestaltung lassen sich von Einzelbüros bis Open-Space-Flächen sämtliche Raumkonzepte realisieren. Zudem verfügt die Liegenschaft im Erdgeschoss über 200 m² sowie im ersten Obergeschoss über ca. 500 m² große Lagerfläche mit Lastenaufzug, die ebenfalls anmietbar ist.
Merkmale
Bezug: nach Vereinbarung
Bodenbelag: Fliesen, Teppich
.Normale Ausstattungsqualität .2 Etagen .Teppichboden und Fliesen .Öffenbare Fenster mit Aluminiumrahmen .Außenliegender manueller Sonnenschutz .Cat.5-Verkabelung .Verkabelung über Fensterbankkabelkanäle .Spiegelrasterleuchten .Gegensprechanlage .renovierter Zustand .Ausbau der Fläche nach Rücksprache möglich .ausreichend Außenstellplätze anmietbar
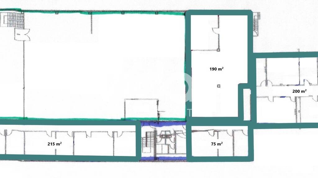
Grundrisse
Verschaffe dir einen genauen Überblick über die Raumaufteilung.
Realisiere Dein Projekt
Bausubstanz und Energie
Möchtest du Details zum Energieverbrauch?
Mietkosten
Nettomiete zzgl. Nebenkosten
nicht angegeben
Nebenkosten
1.800 €
Provision für Mieter
provisionspflichtig gemäß AGB inkl. MwSt.
Kaution
keine Angabe
Lage
Gremberghoven, Köln (51149)
Der Anbieter hat die genaue Adresse nicht freigegeben
Gremberghoven ist ein rechtsrheinischer Stadtteil im Südosten von Köln im Stadtbezirk Porz. Der Stadtbezirk Porz umfasst Gremberghoven, Westhoven, Eil, Wahn, Grengel und Lind. Die Autobahnanschlüsse Dreieck- Heumar A3 in Richtung Leverkusen bzw. Siegburg und A4 in Richtung Hürth sowie die A59 in Richtung Troisdorf und die A559 in Richtung Gremberghoven bzw. Deutz sind schnell zu erreichen.