Version: 8.22.4Navigation überspringen
662.000 €
720 m² Grundstück
Immowelt logo

Grundstück zum Kauf
662000 €
919 €/m²
720 m² Grundstück

Baugrundstück in sonniger Lage von Telfs für großes Einfamilienhaus geeignet

Einfamilienhaus, Doppelhaus?: Mit diesem Grundstück haben Sie die perfekte Grundlage, um Ihr eigenes Zuhause nach Ihren Vorstellungen zu gestalten und zu realisieren. Sei es ein großzügiges Einfamilienhaus oder eine tolles Doppelhaus.

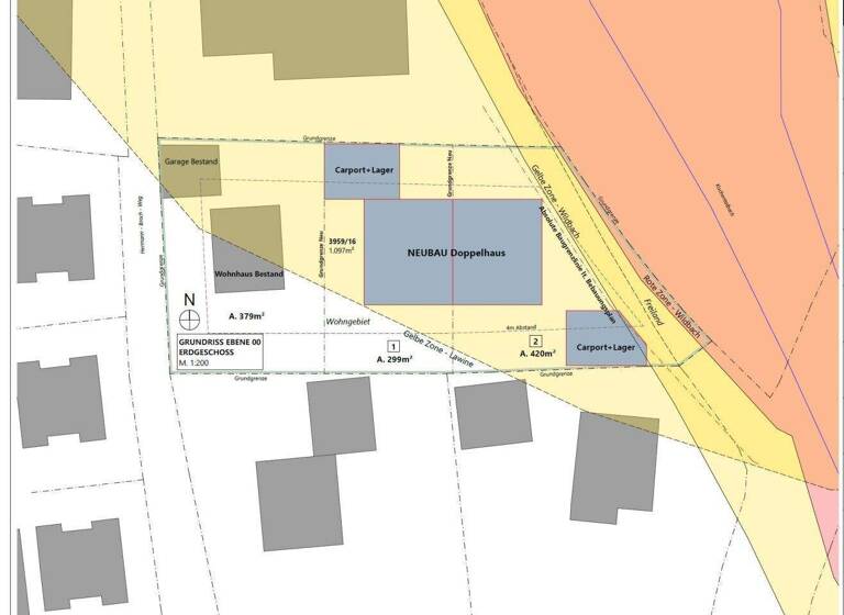
Das Grundstück wird laut Plan entweder als Gesamtgrundstück - mit ca 720m² oder als 2 Grundstücke  (ca 299 + 420 m²) für je eine Doppelhaushälfte angeboten.

Der bestehende Altbestand an der Westseite bleibt bestehen.

 

DIE ECKDATEN DIESES GRUNDSTÜCKS:

Parameter der Gemeinde :

* BMD max. 2,0 - Bebauungsplan vorhanden

 

 

Wir weisen darauf hin, dass zwischen dem Vermittler und dem zu vermittelnden Dritten ein familiäres oder wirtschaftliches Naheverhältnis besteht.

Der Vermittler ist als Doppelmakler tätig.

Infrastruktur / Entfernungen

Gesundheit
Arzt <1.500m
Apotheke <1.500m

Kinder & Schulen
Schule <1.500m
Kindergarten <500m
Höhere Schule <9.500m

Nahversorgung
Supermarkt <500m
Bäckerei <500m
Einkaufszentrum <2.500m

Sonstige
Bank <1.500m
Geldautomat <1.500m
Post <2.000m
Polizei <3.000m

Verkehr
Bus <500m
Bahnhof <2.000m
Autobahnanschluss <1.500m

Angaben Entfernung Luftlinie / Quelle: OpenStreetMap

Merkmale

  • 720 m² Grundstück

Grundrisse

Grundrisse
1 / 2

Realisiere Dein Projekt

Bausubstanz und Energie

Der Anbieter hat keine Informationen zu Energieverbrauch oder Zustand der Immobilie bereit gestellt.
Immowelt logo

Preisdetails

Kaufpreis
662000 €
919,44 €/m²
Provision für Käufer
3% des Kaufpreises zzgl. 20% USt.

Lage

address-icon
Telfs (6410)
Dieses gut geschnittene Grundstück in der Gemeinde Telfsl bietet eine ideale Möglichkeit, Ihr Eigenheim zu verwirklichen. Die Gemeinde Telfs zeichnet sich durch ihre familienfreundliche Ausrichtung aus. Das Grundstück liegt in der Nähe der Auffahrt nach Mösern, Seefeld.

Weitere Informationen

Stichworte Bundesland: Tirol

Weitere Services

Lust auf eine Besichtigung?
Eine Frage zur Immobilie?
Nachricht hinzufügen
Mit der Nutzung der oben angegebenen Telefonnummer oder durch Klicken auf „Kontaktieren“ akzeptierst Du die Allgemeinen Nutzungsbedingungen, denen Du jederzeit widersprechen kannst. Weitere Informationen zum Datenschutz

Über den Anbieter

Immosence GmbH
Immosence GmbHMaklerbüro
Spornbergerstraße 1/11, 6130 Schwaz
partner badge
Partnerschaft
Herr Ronald AbfalterDein Kontakt
Online-ID: 2memr5u
Referenznummer: OBGC2025122808360031801e77fdc9c
Immosence GmbH
Immosence GmbH
Bewertung: 4,8 von 5 Sternen
Nachricht hinzufügen
Mit der Nutzung der oben angegebenen Telefonnummer oder durch Klicken auf „Kontaktieren“ akzeptierst Du die Allgemeinen Nutzungsbedingungen, denen Du jederzeit widersprechen kannst. Weitere Informationen zum Datenschutz
Wie zufrieden bist du mit dieser Seite (nicht mit der Immobilie selbst)?