Version: 8.22.4Navigation ĂĽberspringen
481.964 €
2 Zimmer  â€˘  49 m²  â€˘  EG
Immowelt logo

Wohnung zum Kauf - Erstbezug
481964 €
9.836 €/m²
2 Zimmer  â€˘  49 m²  â€˘  EG

Neubauprojekt mit 10 exklusiven Wohnungen - Top 3

Nur wenige Fußminuten vom Ortskern St. Johann, wurde diese exklusive Wohnanlage mit 360°-Panoramablick auf die umliegende Bergwelt errichtet.
Insgesamt befinden sich nur 10 Wohneinheiten in der hochwertigen Anlage, wodurch die Exklusivität der Liegenschaft unterstrichen wird.
Jedes der Apartments verfĂĽgt ĂĽber mindestens einen Autoabstellplatz in der Tiefgarage und ist von dort bequem mit dem Lift erreichbar.

Die angebotenen Wohnungen werden energiesparend und effizient über Fernwärme beheizt und verursachen so in Zukunft geringere Betriebskosten.
Die einzelnen Apartments sind mit hochwertigen Eichenböden und exklusiven Sanitärbereichen ausgestattet.
Ebenso gehört zu jeder Einheit eine Terrasse und bei den Erdgeschosswohnungen auch ein eigener Garten und ein Kellerabteil dazu.

In unmittelbarer Nähe zum Objekt befindet sich ein Skilift sowie zahlreiche Wander- und Fahrradwege. In nur 10 Fußminuten befinden Sie sich in der Fußgängerzone von St. Johann und haben eine breite Auswahl an Geschäften und Restaurants.
Somit können Sie Skilift, Zentrum und Geschäfte ohne PKW erreichen, was von großem Vorteil ist.

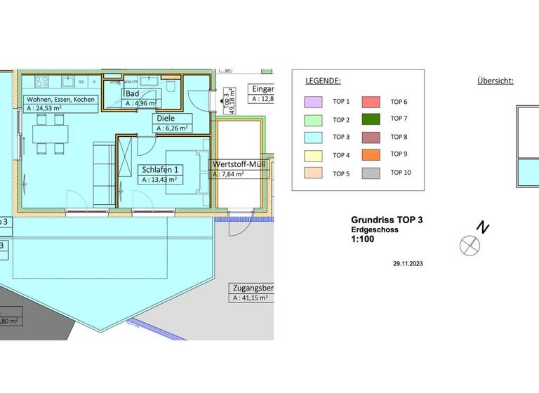
Hierbei handelt es sich um die Erdgeschoss-Gartenwohnung Top 3 mit ca. 49 m² Wohnfläche um 481.964 €.
Zubehör ist ein Tiefgaragenstellplatz um 30.000 €.

Die Wohnung ist Richtung KitzbĂĽheler Horn ausgerichtet und teilt sich wie folgt auf: in den Eingangsbereich, das groĂźe Wohn-Ess-Kochzimmer sowie einem Schlafzimmer und einem Badezimmer. Durch groĂźe Glasfronten in jedem Zimmer hat man einen fantastischen Ausblick auf die KitzbĂĽheler Bergwelt.
Die ca. 30 m² große Terrasse und der ca. 40 m² große Garten runden die Wohnung perfekt ab.

Zur Wohnung gehört ein Tiefgaragenstellplatz sowie ein ca. 4,3 m² großes Kellerabteil.

VerfĂĽgbar ab sofort.
Energiedaten im Auftrag.

Ăśbersicht ĂĽber die weiteren zum Verkauf stehenden Wohnungen:

ERDGESCHOSS
Top 1 mit 65,60 m² Wohnfläche, 114,69 m² Garten, 59,85 m² Terrasse, 3 Zimmer, 2 Schlafzimmer, 1 Bad um 667.880,00 €
Top 2 mit 63,66 m² Wohnfläche, 46,42 m² Garten, 52,08 m² Terrasse, 3 Zimmer, 2 Schlafzimmer, 1 Bad um 623.868 €
Top 3 mit 49,18 m² Wohnfläche, 39,67 m² Garten, 30,33 m² Terrasse, 2 Zimmer, 1 Schlafzimmer, 1 Bad um 481.964 €
Top 4 mit 92,63 m² Wohnfläche, 116,38 m² Garten, 66,43 m² Terrasse, 4 Zimmer, 3 Schlafzimmer, 2 Bäder um 907.774 €

1. OBERGESCHOSS
Top 5 mit 64,60 m² Wohnfläche, 29,24 m² Terrasse, 3 Zimmer, 2 Schlafzimmer, 1 Bad um 645.820 €
Top 6 mit 63,96 m² Wohnfläche, 17,99 m² Terrasse, 3 Zimmer, 2 Schlafzimmer, 1 Bad um 626.808 €
Top 7 mit 77,93 m² Wohnfläche, 17,99 m² Terrasse, 3 Zimmer, 2 Schlafzimmer, 1 Bad um 761.460 €
Top 8 mit 92,63 m² Wohnfläche, 21,46 m² Terrasse, 4 Zimmer, 3 Schlafzimmer, 2 Bäder um 907.774 €

DACHGESCHOSS
Penthouse Top 9 mit 147,21 m² Wohnfläche, 43,68 m² Terrasse, 4 Zimmer, 3 Schlafzimmer, 2 Bäder um 2.208.150 €
Penthouse Top 10 mit 159,03 m² Wohnfläche, 42,52 m² Terrasse, 4 Zimmer, 3 Schlafzimmer, 2 Bäder um 2.430.450,00 €

Merkmale

  • Bezug: sofort
  • Erdgeschoss
  • EinbaukĂĽche
  • Personenaufzug
  • Tiefgarage
  • Terrasse
  • Raumaufteilung flexibel
  • Bad mit Dusche

Grundrisse

Grundrisse
1 / 2

Virtueller Rundgang

3D tour

Realisiere Dein Projekt

Bausubstanz und Energie

Der Anbieter hat keine Informationen zum Energieverbrauch bereit gestellt.
  • Baujahr2024
  • Zustand der ImmobilieErstbezug
  • HeizungsartFuĂźbodenheizung
  • EnergieträgerFernwärme
Immowelt logo

Preisdetails

Kaufpreis
481964 €
9.836 €/m²
Preis pro Stellplatz
30000 €
Provision für Käufer
3,0 %
Weitere Preisinformationen
1 Tiefgaragenstellplatz, Kaufpreis: 30.000,00 EUR

Lage

address-icon
St. Johann in Tirol (6380)
Der Anbieter hat die genaue Adresse nicht freigegeben

Weitere Informationen

Stichworte Süd-Ost-Süd-West-Balkon/Terrasse, Fahrradraum, Anzahl der Schlafzimmer: 1, Anzahl der Badezimmer: 1, Anzahl Terrassen: 1, Balkon-Terrassen-Fläche: 30,00 m², Gartenfläche: 40,00 m², Kellerfläche: 4,30 m², Bundesland: Tirol, 4 Etagen Sonstiges/Wohnen: seniorengerechtes Wohnen

Weitere Services

Lust auf eine Besichtigung?
Eine Frage zur Immobilie?
Nachricht hinzufĂĽgen
Mit der Nutzung der oben angegebenen Telefonnummer oder durch Klicken auf „Kontaktieren“ akzeptierst Du die Allgemeinen Nutzungsbedingungen, denen Du jederzeit widersprechen kannst. Weitere Informationen zum Datenschutz

Ăśber den Anbieter

Im Gries 27, 6370 KITZBĂśHEL
partner badge
10 Jahre Partnerschaft
Herr Franz Gobec RR Bgm.a.D.
Herr Franz Gobec RR Bgm.a.D.Dein Kontakt
Online-ID: 2kl6x5g
Referenznummer: MG-0002190_3
KITZIMMO - Real Estate - OG
title
KITZIMMO - Real Estate - OG
Bewertung: 5 von 5 Sternen
Nachricht hinzufĂĽgen
Mit der Nutzung der oben angegebenen Telefonnummer oder durch Klicken auf „Kontaktieren“ akzeptierst Du die Allgemeinen Nutzungsbedingungen, denen Du jederzeit widersprechen kannst. Weitere Informationen zum Datenschutz
Wie zufrieden bist du mit dieser Seite (nicht mit der Immobilie selbst)?