




1 / 21



1 / 21

Wohnung zur Miete1.115 €3 Zimmer • 82,5 m² • EG • frei ab 01.07.2026
1.115 €
3 Zimmer • 82,5 m² • EG • frei ab 01.07.2026
Hochwertige Maisonette-Wohnung - Zentrale Lage zwischen SCN und Lorettowiese!
Moderne Neubauwohnungen in unmittelbarer Nähe zum SCN, Lorettowiese und mit ausgezeichneter Anbindung an öffentliche Verkehrsmittel - Straßenbahnlinie 26 und S-Bahn Jedlersdorf in Gehweite!
Das im Jahr 2019 errichtete Wohnhaus entlang der Prager Straße überzeugt durch seine zeitgemäße Architektur, eine durchdachte Planung und ein Wohnkonzept, das Komfort und Alltagstauglichkeit ideal miteinander verbindet. Besonders hervorzuheben ist die gelungene Kombination aus urbaner Infrastruktur und nahegelegenen Erholungsräumen.
Bereits beim Betreten der Wohnanlage wird der hochwertige Charakter des Gebäudes spürbar: moderne Architektur, gepflegte Allgemeinflächen und begrünte Innenhöfe mit liebevoll gestalteten Aufenthaltsbereichen schaffen ein angenehmes Wohnumfeld.
Jede Wohnung verfügt über ein eigenes Kellerabteil, außerdem stehen ein Fahrradraum sowie ein Kinderwagenabstellraum zur Verfügung. Stellplätze in der hauseigenen Tiefgarage können bei Bedarf angemietet werden. Beheizt wird die Anlage effizient über Fernwärme.
Die Wohnungen selbst überzeugen durch eine gelungene Kombination aus Funktionalität und eleganter Ausstattung. Edler Eichenparkettboden verleiht den Wohnräumen eine warme, hochwertige Atmosphäre.
Die offen und modern gestalteten Wohnküchen sind inklusive Elektrogeräten ausgestattet und bieten den idealen Rahmen für stilvolles Wohnen. Großzügige Fensterflächen mit außenliegendem Sonnenschutz sorgen für ein angenehmes Raumklima.
Die Badezimmer sind funktional und modern ausgestattet und verfügen über Waschmaschinenanschluss, Handtuchheizkörper sowie sowie - je nach Wohnung - eine Badewanne oder eine Dusche. Eine Video-Gegensprechanlage in den Wohnungen rundet das Angebot ab.
Die Wohnungen werden mit einer Befristung von 5 Jahren vermietet.
Highlights auf einen Blick:
* Hervorragende Infrastruktur direkt vor der Haustüre
* Supermärkte, Apotheke sowie Gastronomie in unmittelbarer Nähe
* Shopping Center Nord in 2 Busstationen erreichbar
* Straßenbahnlinie 26 in ca. 2 Gehminuten
* Schnelle Anbindung an U1, U6 und S-Bahn
* S-Bahn-Station Jedlersdorf fußläufig erreichbar
* Lorettowiese ca. 8 Gehminuten und Aupark Jedlesee in direkter Umgebung
* Begrünte Innenhöfe mit Spielbereichen
* Tiefgarage optional anmietbar
* Kellerabteile sowie Fahrrad- und Kinderwagenräume vorhanden
* Postboxen im Haus
Ausstattungsstandard:
* Moderne Einbauküche inkl. Elektrogeräte
* Hochwertiger Eichenparkettboden
* Außenliegender Sonnenschutz
* Effiziente Fernwärmeheizung
* Video-Gegensprechanlage in den Wohnungen
* Zeitgemäßer Neubau mit durchdachtem Wohnkonzept
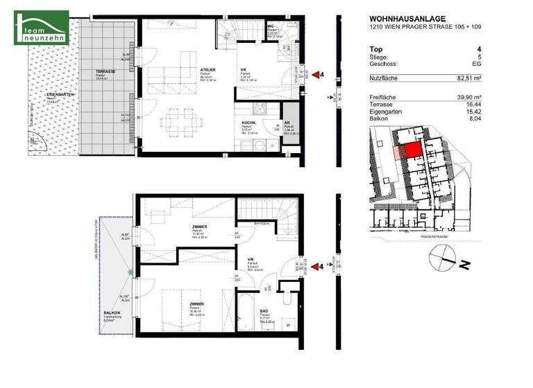
Wohnung Stiege 5 Top 4:
Die 3-Zimmer-Wohnung mit ca. 82,51 m² Wohnfläche sowie mit ca. 16,44 m² Terrasse, ca. 8,04 m² Balkon und 15,42 m² Garten befindet sich im Erdgeschoss - 1. Obergeschoss und orientiert sich Richtung Südosten.
* Vorraum: ca. 7,97 m²
* Abstellraum: ca. 1,56 m²
* Separates WC: ca. 1,41 m²
* Wohnzimmer mit Kochnische: ca. 31,14 m²
* Vorraum oben: ca. 8,04 m²
* Bad mit WC, Badewanne, Handwaschbecken u. WMA: ca. 5,11 m²
* 1. Schlafzimmer: ca. 15,85 m²
* 2. Schlafzimmer: ca. 11,43 m²
Die angebotene Wohnung ist verfügbar ab 01.07.2026.
Einige Bilder des Inserats wurden zum Zweck der besseren Visualisierung digital mit KI möbliert. Die Wohnung wird unmöbliert übergeben.
Kostenübersicht
Der monatliche Mietpreis inklusive Betriebskosten und USt. beläuft sich auf € 1.575,04.
* Kaution: 3 Bruttomonatsmieten
* Provision: keine
Der angegebene Mietpreis versteht sich als Bruttokaltmiete, Energiekosten wie für Heizung, Warmwasser und Strom sind somit nicht inkludiert und fallen gesondert, basierend auf Ihrem Verbrauch, an.
Bei Bedarf besteht auch die Möglichkeit einen Stellplatz in der hauseigenen Tiefgarage anzumieten.
Der Mietpreis für den PKW-Stellplatz beläuft sich auf 115 Euro (inkl. BK und USt.).
Infrastruktur:
Die Anbindung ist ausgezeichnet: In wenigen Gehminuten (ca. 2 Gehminuten entfernt) erreichen Sie die Straßenbahnlinie 26, die eine schnelle Verbindung zwischen dem 21. und 22. Bezirk bietet. Von dort gelangen Sie in nur vier Stationen zur U6 sowie zur S-Bahn in Floridsdorf und in rund acht Stationen zur U1 in Kagran - inklusive direktem Zugang zum Donauzentrum. Zusätzlich befindet sich die S-Bahn-Station Jedlersdorf (Linien S3, S4 und S7) nur etwa zehn Gehminuten entfernt.
Auch die Nahversorgung lässt keine Wünsche offen: Direkt gegenüber der Wohnanlage befindet sich ein Billa Supermarkt, während sich weitere Einkaufsmöglichkeiten z.b. Hofer Diskounter, eine Apotheke, Werkstätten und gastronomische Angebote bequem fußläufig erreichen lassen. Für ausgedehntere Shoppingtouren bietet sich das nahegelegene Shopping Center Nord an, das nur 2 Busstationen entfernt ist.
Ein echtes Plus ist die Nähe zu großzügigen Grünflächen: Die beliebte Lorettowiese sowie der angrenzende Aupark Jedlesee bieten vielfältige Möglichkeiten zur Freizeitgestaltung - von Sport und Bewegung bis hin zu entspannten Stunden im Grünen. Auch die Neue Donau mit ihren Radwegen und Grillplätzen ist schnell erreichbar und erweitert das Freizeitangebot zusätzlich.
Energieausweis:
Der Referenz-Heizwärmebedarf beträgt 30,49 kWh/m²a und entspricht somit der Klasse B.
Der fGEE beträgt 0,83 und entspricht somit sogar der Klasse A.
Für Fragen bzw. Besichtigungen steht Ihnen Frau Sylwia Zagula sehr gerne unter 0676 852 243 502 oder via E-Mail unter zagula@teamneunzehn.at zur Verfügung.
Wir weisen darauf hin, dass zwischen dem Vermittler und dem zu vermittelnden Dritten ein familiäres oder wirtschaftliches Naheverhältnis besteht.
Der Immobilienmakler erklärt, dass er - entgegen dem in der Immobilienwirtschaft üblichen Geschäftsgebrauch des Doppelmaklers - einseitig nur für den Vermieter tätig ist.
"Leben braucht Raum" * T19-RE Real Estate GmbH & Co KG * www.teamneunzehn.at [https://www.teamneunzehn.at]
Doppelmakler
Wir werden als Immobilienmakler kraft bestehenden Geschäftsgebrauchs als Doppelmakler tätig und haben sohin beide Seiten des Vertrages (Verkäufer-Käufer, Vermieter-Mieter) zu unterstützen.
Wirtschaftliches Naheverhältnis
Es wird bekannt gegeben, dass folgendes wirtschaftliches Naheverhältnis zwischen der teamneunzehn-Gruppe und dem Verkäufer/der vermietenden Partei besteht: ständige und dauerhafte Beauftragung mit der Vermittlung des bestehenden Immobilienportfolios
Haftungserklärung zum Inserat
Irrtum und Änderungen vorbehalten! Sofern es sich bei Bildern um Visualisierungen handelt, können Abänderungen zur tatsächlichen Ausführung resultieren. Wir weisen ausdrücklich darauf hin, dass das auf Fotos oder Visualisierungen ersichtliche Mobiliar bzw. Inventar nicht Bestandteil des inserierten Preises ist.
Infrastruktur / Entfernungen
Gesundheit
Arzt <100m
Apotheke <300m
Klinik <1.225m
Krankenhaus <1.250m
Kinder & Schulen
Schule <325m
Kindergarten <100m
Universität <2.025m
Höhere Schule <1.100m
Nahversorgung
Supermarkt <125m
Bäckerei <225m
Einkaufszentrum <675m
Sonstige
Geldautomat <925m
Bank <925m
Post <425m
Polizei <1.125m
Verkehr
Bus <200m
U-Bahn <1.625m
Straßenbahn <200m
Bahnhof <550m
Autobahnanschluss <550m
Angaben Entfernung Luftlinie / Quelle: OpenStreetMap
Das im Jahr 2019 errichtete Wohnhaus entlang der Prager Straße überzeugt durch seine zeitgemäße Architektur, eine durchdachte Planung und ein Wohnkonzept, das Komfort und Alltagstauglichkeit ideal miteinander verbindet. Besonders hervorzuheben ist die gelungene Kombination aus urbaner Infrastruktur und nahegelegenen Erholungsräumen.
Bereits beim Betreten der Wohnanlage wird der hochwertige Charakter des Gebäudes spürbar: moderne Architektur, gepflegte Allgemeinflächen und begrünte Innenhöfe mit liebevoll gestalteten Aufenthaltsbereichen schaffen ein angenehmes Wohnumfeld.
Jede Wohnung verfügt über ein eigenes Kellerabteil, außerdem stehen ein Fahrradraum sowie ein Kinderwagenabstellraum zur Verfügung. Stellplätze in der hauseigenen Tiefgarage können bei Bedarf angemietet werden. Beheizt wird die Anlage effizient über Fernwärme.
Die Wohnungen selbst überzeugen durch eine gelungene Kombination aus Funktionalität und eleganter Ausstattung. Edler Eichenparkettboden verleiht den Wohnräumen eine warme, hochwertige Atmosphäre.
Die offen und modern gestalteten Wohnküchen sind inklusive Elektrogeräten ausgestattet und bieten den idealen Rahmen für stilvolles Wohnen. Großzügige Fensterflächen mit außenliegendem Sonnenschutz sorgen für ein angenehmes Raumklima.
Die Badezimmer sind funktional und modern ausgestattet und verfügen über Waschmaschinenanschluss, Handtuchheizkörper sowie sowie - je nach Wohnung - eine Badewanne oder eine Dusche. Eine Video-Gegensprechanlage in den Wohnungen rundet das Angebot ab.
Die Wohnungen werden mit einer Befristung von 5 Jahren vermietet.
Highlights auf einen Blick:
* Hervorragende Infrastruktur direkt vor der Haustüre
* Supermärkte, Apotheke sowie Gastronomie in unmittelbarer Nähe
* Shopping Center Nord in 2 Busstationen erreichbar
* Straßenbahnlinie 26 in ca. 2 Gehminuten
* Schnelle Anbindung an U1, U6 und S-Bahn
* S-Bahn-Station Jedlersdorf fußläufig erreichbar
* Lorettowiese ca. 8 Gehminuten und Aupark Jedlesee in direkter Umgebung
* Begrünte Innenhöfe mit Spielbereichen
* Tiefgarage optional anmietbar
* Kellerabteile sowie Fahrrad- und Kinderwagenräume vorhanden
* Postboxen im Haus
Ausstattungsstandard:
* Moderne Einbauküche inkl. Elektrogeräte
* Hochwertiger Eichenparkettboden
* Außenliegender Sonnenschutz
* Effiziente Fernwärmeheizung
* Video-Gegensprechanlage in den Wohnungen
* Zeitgemäßer Neubau mit durchdachtem Wohnkonzept
Wohnung Stiege 5 Top 4:
Die 3-Zimmer-Wohnung mit ca. 82,51 m² Wohnfläche sowie mit ca. 16,44 m² Terrasse, ca. 8,04 m² Balkon und 15,42 m² Garten befindet sich im Erdgeschoss - 1. Obergeschoss und orientiert sich Richtung Südosten.
* Vorraum: ca. 7,97 m²
* Abstellraum: ca. 1,56 m²
* Separates WC: ca. 1,41 m²
* Wohnzimmer mit Kochnische: ca. 31,14 m²
* Vorraum oben: ca. 8,04 m²
* Bad mit WC, Badewanne, Handwaschbecken u. WMA: ca. 5,11 m²
* 1. Schlafzimmer: ca. 15,85 m²
* 2. Schlafzimmer: ca. 11,43 m²
Die angebotene Wohnung ist verfügbar ab 01.07.2026.
Einige Bilder des Inserats wurden zum Zweck der besseren Visualisierung digital mit KI möbliert. Die Wohnung wird unmöbliert übergeben.
Kostenübersicht
Der monatliche Mietpreis inklusive Betriebskosten und USt. beläuft sich auf € 1.575,04.
* Kaution: 3 Bruttomonatsmieten
* Provision: keine
Der angegebene Mietpreis versteht sich als Bruttokaltmiete, Energiekosten wie für Heizung, Warmwasser und Strom sind somit nicht inkludiert und fallen gesondert, basierend auf Ihrem Verbrauch, an.
Bei Bedarf besteht auch die Möglichkeit einen Stellplatz in der hauseigenen Tiefgarage anzumieten.
Der Mietpreis für den PKW-Stellplatz beläuft sich auf 115 Euro (inkl. BK und USt.).
Infrastruktur:
Die Anbindung ist ausgezeichnet: In wenigen Gehminuten (ca. 2 Gehminuten entfernt) erreichen Sie die Straßenbahnlinie 26, die eine schnelle Verbindung zwischen dem 21. und 22. Bezirk bietet. Von dort gelangen Sie in nur vier Stationen zur U6 sowie zur S-Bahn in Floridsdorf und in rund acht Stationen zur U1 in Kagran - inklusive direktem Zugang zum Donauzentrum. Zusätzlich befindet sich die S-Bahn-Station Jedlersdorf (Linien S3, S4 und S7) nur etwa zehn Gehminuten entfernt.
Auch die Nahversorgung lässt keine Wünsche offen: Direkt gegenüber der Wohnanlage befindet sich ein Billa Supermarkt, während sich weitere Einkaufsmöglichkeiten z.b. Hofer Diskounter, eine Apotheke, Werkstätten und gastronomische Angebote bequem fußläufig erreichen lassen. Für ausgedehntere Shoppingtouren bietet sich das nahegelegene Shopping Center Nord an, das nur 2 Busstationen entfernt ist.
Ein echtes Plus ist die Nähe zu großzügigen Grünflächen: Die beliebte Lorettowiese sowie der angrenzende Aupark Jedlesee bieten vielfältige Möglichkeiten zur Freizeitgestaltung - von Sport und Bewegung bis hin zu entspannten Stunden im Grünen. Auch die Neue Donau mit ihren Radwegen und Grillplätzen ist schnell erreichbar und erweitert das Freizeitangebot zusätzlich.
Energieausweis:
Der Referenz-Heizwärmebedarf beträgt 30,49 kWh/m²a und entspricht somit der Klasse B.
Der fGEE beträgt 0,83 und entspricht somit sogar der Klasse A.
Für Fragen bzw. Besichtigungen steht Ihnen Frau Sylwia Zagula sehr gerne unter 0676 852 243 502 oder via E-Mail unter zagula@teamneunzehn.at zur Verfügung.
Wir weisen darauf hin, dass zwischen dem Vermittler und dem zu vermittelnden Dritten ein familiäres oder wirtschaftliches Naheverhältnis besteht.
Der Immobilienmakler erklärt, dass er - entgegen dem in der Immobilienwirtschaft üblichen Geschäftsgebrauch des Doppelmaklers - einseitig nur für den Vermieter tätig ist.
"Leben braucht Raum" * T19-RE Real Estate GmbH & Co KG * www.teamneunzehn.at [https://www.teamneunzehn.at]
Doppelmakler
Wir werden als Immobilienmakler kraft bestehenden Geschäftsgebrauchs als Doppelmakler tätig und haben sohin beide Seiten des Vertrages (Verkäufer-Käufer, Vermieter-Mieter) zu unterstützen.
Wirtschaftliches Naheverhältnis
Es wird bekannt gegeben, dass folgendes wirtschaftliches Naheverhältnis zwischen der teamneunzehn-Gruppe und dem Verkäufer/der vermietenden Partei besteht: ständige und dauerhafte Beauftragung mit der Vermittlung des bestehenden Immobilienportfolios
Haftungserklärung zum Inserat
Irrtum und Änderungen vorbehalten! Sofern es sich bei Bildern um Visualisierungen handelt, können Abänderungen zur tatsächlichen Ausführung resultieren. Wir weisen ausdrücklich darauf hin, dass das auf Fotos oder Visualisierungen ersichtliche Mobiliar bzw. Inventar nicht Bestandteil des inserierten Preises ist.
Infrastruktur / Entfernungen
Gesundheit
Arzt <100m
Apotheke <300m
Klinik <1.225m
Krankenhaus <1.250m
Kinder & Schulen
Schule <325m
Kindergarten <100m
Universität <2.025m
Höhere Schule <1.100m
Nahversorgung
Supermarkt <125m
Bäckerei <225m
Einkaufszentrum <675m
Sonstige
Geldautomat <925m
Bank <925m
Post <425m
Polizei <1.125m
Verkehr
Bus <200m
U-Bahn <1.625m
Straßenbahn <200m
Bahnhof <550m
Autobahnanschluss <550m
Angaben Entfernung Luftlinie / Quelle: OpenStreetMap
Merkmale
- frei ab 01.07.2026
- Erdgeschoss
- Einbauküche
- Personenaufzug
- Gäste-WC
- Balkon
Grundrisse
Grundrisse
1 / 1
Bausubstanz und Energie
Heizwärmebedarf (HWB)
B
Gesamtenergieeffizienz (fGEE)
A
- Baujahr2019
- Zustand der ImmobilieNeubau, neuwertig
- EnergieträgerFernwärme
Mietkosten
Gesamtmiete
1.575,04 €
Nettokaltmiete
17,35 €/m²
1.114,85 €
Betriebskosten
317 €
Kaution
3 Bruttomonatsmieten
Weitere Preisinformationen
Nettokaltmiete: 1.114,85 EUR
Lage

Prager Straße 105 + 109, Wien (1210)
Nähe: Prager Straße, Anton-Bosch-Gasse, Deublergasse, FAC Platz, Lorettowiese, Aupark Jedlesee, Neue Donau, S-Bahn Jedlersdorf, Straßenbahn Linie 26 Hopfengasse
Weitere Informationen
Stichworte
Tiefgarage vorhanden, Süd-Ost-Balkon/Terrasse, Fahrradraum, Rolladen, Nutzfläche: 122,41 m², Gesamtfläche: 122,41 m², Freifläche: 39,90 m², Anzahl der Badezimmer: 1, Anzahl der separaten WCs: 2, Anzahl Balkone: 1, Anzahl Terrassen: 1, Balkon-Terrassen-Fläche: 24,48 m², Gartenfläche: 15,42 m², Bundesland: Wien, 6 Etagen, Wohnungsnr.: 4
Weitere Services
Lust auf eine Besichtigung?
Eine Frage zur Immobilie?
Über den Anbieter
Handelskai 94-96/21. Stock, 1200 BRIGITTENAU
Partnerschaft
Frau Sylwia ZagulaDein Kontakt
Online-ID: 26NTW21G7K8B
Referenznummer: OBGC2026031916310450182fe336b62
Wie zufrieden bist du mit dieser Seite (nicht mit der Immobilie selbst)?

