Haus 485m2 zum Kauf - Preko, Ugljan
Villa mit Pool im Obergeschoss Ugljan, Insel Ugljan
Diese moderne Villa in Ugljan auf der Insel Ugljan begeistert mit Meerblick, viel Platz und einem Pool im Obergeschoss – direkt auf derselben Ebene wie der Wohn- und Essbereich. Das Meer ist nur 100 m entfernt, das Ortszentrum liegt 2 km weit. Die Immobilie ist Teil eines 5-Sterne-Resorts mit Sportplätzen, zwei Gemeinschaftspools und exklusiven Serviceleistungen.
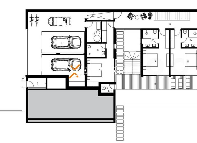
Die Gesamtbruttogrundfläche beträgt 484,50 m2, inklusive eines 49,00 m2 großen beheizten und gekühlten Pools. Das Grundstück umfasst großzügige 1.140 m2. Zwei überdachte Außenstellplätze und eine Doppelgarage stehen zur Verfügung.
Raumaufteilung
Im Erdgeschoss (209,80 m2 brutto) befinden sich der Eingangsbereich, ein Gäste-WC, drei Schlafzimmer – jeweils mit eigenem Bad und Ankleide –, ein Waschraum, Technikraum für den Pool, eine Doppelgarage und eine teilweise überdachte Terrasse.
Im Obergeschoss (225,70 m2 brutto) gibt es einen Flur, Abstellraum, weiteres Gäste-WC, zwei Schlafzimmer mit eigenem Bad und Kleiderschrank sowie eine offene Küche mit Ess- und Wohnbereich. Von hier aus gelangt man zur teilweise überdachten Terrasse mit privatem Pool und Meerblick.
Ausstattung
Die Villa ist vollständig möbliert mit hochwertigen Möbeln und Geräten. Alle Räume verfügen über Deckenklimageräte, die Bäder sind mit Fußbodenheizung über Wärmepumpe ausgestattet. Der Pool im Obergeschoss bietet Massagedüsen, Heiz- und Kühlfunktion sowie eine Außendusche.
Insgesamt 19 Lautsprecher sorgen für perfekten Klang im ganzen Haus. Der Garten verfügt über ein automatisches Bewässerungssystem, das Dach über Solarpaneele. Die Villa ist mit einbruch- und feuersicheren Türen ausgestattet und besteht aus Betonwänden mit Aluminiumfenstern und Dämmung aus Steinwolle.
Keine Immobilienerwerbssteuer an.
Energiezertifikat: A+
Baujahr: 2024
Standort
Ugljan ist die nächste und meist ausgebaute Insel des Archipels von Zadar. Daher ist sie mit der Stadt Zadar sehr gut mit Fähren und Schiffen verbunden, wobei die Fahrt nur 20 Minuten dauert. Auf der Insel finden Sie gute Restaurants, Geschäfte, Schulen, Yachthafen, Apotheke, eine Ambulanz, etc., bzw. auf der Insel finden sie alles was Sie für einen angenehmen und entspannten Alltag brauchen während sie gleichzeitig mit der unschätzbaren Schönheit und dem Charme der Insel umgeben sind.
Sonstiges
Falls Sie diese Immobilie woanders zu einem günstigeren Preis gesehen haben, gilt der gleiche Preis auch bei uns!
https://www.emporia-realestate.com/property/house-h696-island-ugljan-ugljan/