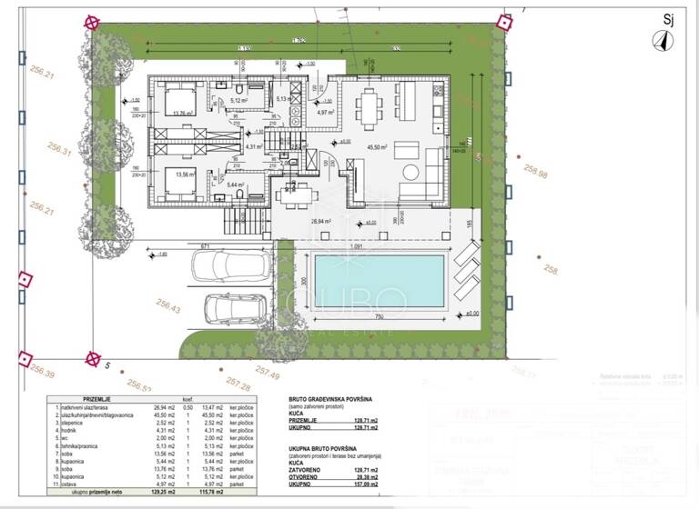
Zum Verkauf steht ein großzügiges Baugrundstück mit einer Fläche von m² in ausgezeichneter und ruhiger Lage innerhalb einer gepflegten Ortschaft in der Gemeinde Svetvincenat. Die Region ist bekannt für ihre effizienten und zügigen Verwaltungsverfahren bei der Erteilung von Baugenehmigungen, was zukünftigen Eigentümern zusätzliche Sicherheit und eine reibungslose Projektumsetzung bietet. Das Grundstück befindet sich in einer authentischen istrischen Umgebung, umgeben von hohen istrischen Eichen, die natürlichen Schatten, Privatsphäre und eine besondere Atmosphäre das ganze Jahr über gewährleisten. Das Gelände ist kaskadenförmig (terrassiert) angelegt und bietet dadurch zusätzliche Attraktivität sowie großes architektonisches Potenzial. Die Liegenschaft liegt direkt an einer asphaltierten Straße, entlang der die komplette Infrastruktur (Strom, Wasser und weitere Anschlüsse) verfügbar ist, was den Bauprozess erheblich erleichtert und beschleunigt. Das Grundstück ist teilweise mit etwa 70 Metern Zaun eingefriedet, verfügt über eine ordnungsgemäße Zufahrt sowie eine saubere Eigentumsurkunde (Alle wichtigen Einrichtungen des täglichen Bedarfs - wie Geschäft, Schule, Gastronomiebetriebe und weitere Infrastruktur - befinden sich in unmittelbarer Nähe. Der Käufer erhält als Geschenk ein architektonisches Projekt für eine moderne Villa mit Swimmingpool, das entsprechend der natürlichen Geländekonfiguration und den geltenden Bauvorschriften entworfen wurde. Das Projekt nutzt die natürlichen Ebenen des Grundstücks optimal aus, ermöglicht Panoramablicke und eine harmonische Integration zeitgemäßer Architektur in die istrische Landschaft. Diese Immobilie stellt eine außergewöhnliche Gelegenheit dar - sei es für den Bau eines Einfamilienhauses, einer luxuriösen Privatvilla oder als Investitionsprojekt im Tourismussektor - dank ihrer attraktiven Lage und hervorragenden baulichen Voraussetzungen.
Für weitere Informationen und zur Vereinbarung eines Besichtigungstermins kontaktieren Sie bitte:
Jenny Pancic * *
ID CODE: SH105
Preisdetails
Kaufpreis
100000 €100.000 €
Provision für Käufer
Bitte beachte, das Angebot kann bei Vertragsabschluss die Zahlung einer Provision beinhalten. Weitere Informationen erhältst Du vom Anbieter.
Lage
Svetvincenat (52342)
Der Anbieter hat die genaue Adresse nicht freigegeben