

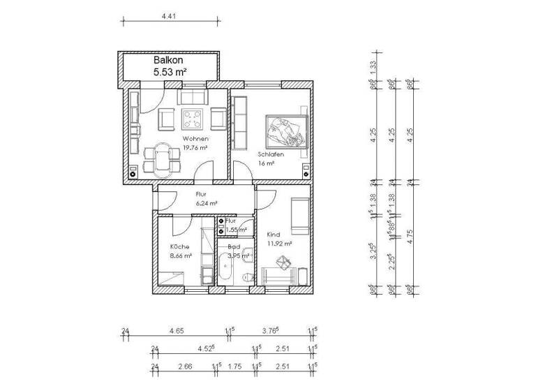
Wohnung zur Miete472 €3 Zimmer • 67,4 m² • 3. Geschoss • frei ab 01.08.2026
472 €
3 Zimmer • 67,4 m² • 3. Geschoss • frei ab 01.08.2026
3 Raum Wohnung in guter Lage
Merkmale
- frei ab 01.08.2026
- 3. Geschoss
- Balkon
- Bad mit Fenster
Grundrisse
Grundrisse
1 / 1
Realisiere Dein Projekt
Bausubstanz und Energie
Der Anbieter hat keine Informationen zum Energieverbrauch bereit gestellt.
- Baujahr1961
Mietkosten
Warmmiete
640,01 €
Kaltmiete
7 €/m²
471,59 €
Nebenkosten
84,21 €
Zusätzliche Kosten
Heizkosten
84,21 €
Kaution
1300 €
Lage

Brunnerstraße 35c, Sudenburg, Magdeburg (39112)
Weitere Informationen
Weitere Services
Lust auf eine Besichtigung?
Eine Frage zur Immobilie?
Über den Anbieter
Charlottenstr. 2, 39124 Magdeburg
Partnerschaft
Herr Rafael FisbachDein Kontakt
Weitere Unterlagen
Online-ID: 2n33n5d
Referenznummer: 115/3/18

Wohnungsgenossenschaft "Post und Energie"e.G.
Bewertung: 3,6 von 5 Sternen
Wie zufrieden bist du mit dieser Seite (nicht mit der Immobilie selbst)?