Version: 8.24.0Navigation überspringen
1.599.400 €
4,5 Zimmer  •  117 m²  •  1. Geschoss
Immowelt logo

Wohnung zum Kauf
1599400 €
13.670 €/m²
4,5 Zimmer  •  117 m²  •  1. Geschoss

Exklusive Jugendstilwohnung in der Beletage - kernsaniert in bester Hamburger Lage

Diese exklusive 4,5-Zimmer-Wohnung im ersten Obergeschoss einer aufwendig sanierten, über hundert Jahre alten Jugendstilvilla im Herzen von Harvestehude vereint Vergangenheit und Zukunft auf rund 117 m² zu einem harmonischen Wohngefühl.

Originale Pitchpine-Dielen, 3,50 Meter hohe Decken mit Stuckelementen und kunstvolle Glasornamente verleihen dem Zuhause eine unverwechselbare Atmosphäre, die durch einen zeitgemäßen Grundriss und eine hochwertige Ausstattung stilvoll ergänzt wird. Jedes Detail ist sorgfältig ausgewählt - vom Türbeschlag bis hin zu eleganten Drehlichtschaltern, die sich dezent und stimmig in das Gesamtbild einfügen.

Bereits beim Betreten des großzügigen Flurs entfaltet sich ein Gefühl von Weite und Wärme. Der lichtdurchflutete Grundriss bietet Raum für Begegnung und Alltag. Die Küche fügt sich offen und harmonisch an den Essbereich an und verbindet sich über eine originale Schiebetür mit dem hellen Wohnzimmer. Von hier aus gelangen Sie auf den Balkon, auf dem Sie die Sonne genießen und das lebendige Treiben der Nachbarschaft beobachten können.
Das Hauptschlafzimmer überzeugt durch Ruhe und Großzügigkeit, während ein kleiner Nebenraum ideal als Ankleide oder Home-Office genutzt werden kann.

Am Ende des Flurs erwarten Sie zwei weitere charmante Zimmer, die sich flexibel als Kinder-, Gäste- oder Arbeitszimmer einrichten lassen. Eines davon verfügt über einen eigenen Südbalkon - ein sonniger Lieblingsplatz für den Nachmittagskaffee oder entspannte Lesestunden. Das moderne Badezimmer mit Natursteinfliesen und bodentiefer Dusche wird durch ein separates Gäste-WC ergänzt. Eine praktische Kammer mit Platz für Waschmaschine und Trockner komplettiert den Grundriss. Dieses Zuhause bewahrt Geschichte und eröffnet zugleich die Vorzüge modernen Wohnens - ein besonderer Ort zum Ankommen und Wohlfühlen.

Gern präsentiere ich Ihnen auch weitere, nahezu baugleiche Wohnungen in dieser Jugendstilvilla. Da die Grundrisse spiegelgleich sind, dienen die gezeigten Aufnahmen exemplarisch.

Vereinbaren Sie gerne einen Besichtigungstermin und lassen Sie sich von dieser seltenen Gelegenheit persönlich begeistern.

Merkmale

  • 1. Geschoss
  • Balkon
  • Barrierefrei
  • Denkmalschutz-Afa
- Original erhaltene Altbaudetails: Stuck, Pitchpine-Dielen und Flügel-Schiebetüren
- Kunstvolle Glaselemente in den Türen
- Hochwertige, stilgerechte Türbeschläge
- Moderne Design-Bäder mit großformatigen Natursteinfliesen, Handtuchheizkörpern und Deckeneinbauleuchten
- Fußbodenheizung in Bad und Gäste-WC
- Videogegensprechanlage
- Holzdielenböden in allen Wohn- und Schlafräumen
- Energieeffizienz nach KfW-Standard 100 (BEG 2020)
- Denkmalgerechte Sanierung der straßenseitigen Fassade
- Gedämmte Fassade zum Innenhof
- Glasfaseranschluss
- Fahrstuhl

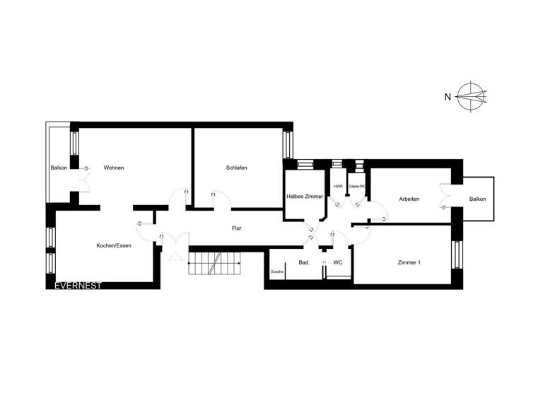
Grundrisse

Grundrisse
1 / 1

Realisiere Dein Projekt

Bausubstanz und Energie

Energieausweis

Ein Energieausweis ist für diesen Gebäudetyp nicht notwendig.
  • Baujahr1900
  • Zustand der Immobilieneuwertig
Immowelt logo

Preisdetails

Kaufpreis
1599400 €
13.670,09 €/m²
Provision für Käufer
2.12 inkl. MwSt.
Bei Abschluss eines notariellen Kaufvertrages ist eine Käuferprovision vom Käufer in Höhe von 2.12 % inkl. MwSt. aus dem Kaufpreis fällig.
Geschätzte Gesamtkosten
1.753.262 €1
Kaufpreis
1.599.400 €
Notarkosten (1,5%)
23.991 €
Grunderwerbsteuer (5,5%)
87.967 €
Provision für Käufer (2,12%)
33.907 €
Grundbucheintrag (0,5%)
7.997 €
1Der angezeigte Wert ist eine automatisch berechnete Schätzung von immowelt.
2Bei den Angaben handelt es sich um ortsübliche Werte. Individuelle Kosten können abweichen.

Lage

address-icon
HarvestehudeHamburg (20144)
Der Anbieter hat die genaue Adresse nicht freigegeben
Leben in Harvestehude

Die Immobilie liegt im Herzen von Hamburg-Harvestehude, einem der begehrtesten und zugleich familienfreundlichsten Wohnquartiere der Hansestadt. Die ruhige Seitenstraße ist geprägt von herrschaftlichen Altbauten, gepflegten Vorgärten und einem harmonischen Wohnumfeld, das insbesondere Familien eine hohe Lebensqualität bietet.

Einkaufsmöglichkeiten für den täglichen Bedarf befinden sich in fußläufiger Nähe, ebenso charmante Boutiquen, Cafés und Restaurants rund um den Eppendorfer Baum und die Isestraße. Für Kinder und Familien stehen eine Vielzahl an Kitas sowie Grund- und weiterführenden Schulen im direkten Umfeld zur Verfügung. Auch Spielplätze und Grünanlagen sind schnell erreicht - die Außenalster wie auch der Innocentiapark liegen nur wenige Minuten zu Fuß entfernt.

Kulturell und kulinarisch bietet Harvestehude ein vielfältiges Angebot, während die hervorragende Anbindung an den öffentlichen Nahverkehr (U1 Klosterstern, U3 Eppendorfer Baum und Hoheluftbrücke, Buslinie 5) schnelle Wege in die Hamburger Innenstadt ermöglicht.

Die Lage vereint damit urbanes Wohnen in eleganter Umgebung mit einem sicheren, ruhigen und familiengerechten Umfeld - ein Standort, der gleichermaßen durch seine Zentralität wie durch seine Wohnqualität überzeugt.

Weitere Informationen

Stichworte Anzahl der Schlafzimmer: 3, Anzahl der Badezimmer: 1, Anzahl der separaten WCs: 1, Anzahl Balkone: 2

Weitere Services

Lust auf eine Besichtigung?
Eine Frage zur Immobilie?
Nachricht hinzufügen
Mit der Nutzung der oben angegebenen Telefonnummer oder durch Klicken auf „Kontaktieren“ akzeptierst Du die Allgemeinen Nutzungsbedingungen, denen Du jederzeit widersprechen kannst. Weitere Informationen zum Datenschutz

Über den Anbieter

Evernest GmbH
Evernest GmbHMaklerbüro
Mönkedamm 9-11, 20457 Hamburg
partner badge
Partnerschaft
Sandra WulfDein Kontakt
Online-ID: 2m83258
Referenznummer: L-WF4JOKW
Evernest GmbH
Evernest GmbH
Bewertung: 4,5 von 5 Sternen
Nachricht hinzufügen
Mit der Nutzung der oben angegebenen Telefonnummer oder durch Klicken auf „Kontaktieren“ akzeptierst Du die Allgemeinen Nutzungsbedingungen, denen Du jederzeit widersprechen kannst. Weitere Informationen zum Datenschutz
Wie zufrieden bist du mit dieser Seite (nicht mit der Immobilie selbst)?