Version: 8.24.0Navigation ĂĽberspringen
5.500 €
1.400 m² Lagerfläche
Immowelt logo

Produktionshalle zur Miete
5.500 €
1.400 m² Lagerfläche

Gewerbeobjekt in Jahnsdorf zu vermieten!

Gebäude für Produktion, Werkstätten oder Lagergebäude mit Büro- und Sozialräumen in Jahnsdorf zu vermieten. Stahlrahmenbauweise (Raster 5 m - 5,50 m) mit Sandwichelementen ohne Innenwände, Flachdach mit Oberlicht, Tragschale aus Trapezblechprofilen mit Bitumendichtbahnen. Die Verbrauchsabhängigen Nebenkosten (Wasser, Abwasser,...) trägt der Mieter direkt.

Merkmale

  • frei ab sofort
  • 6.165 m² GrundstĂĽck
  • AuĂźen-Stellplatz
  • LKW-Zufahrt
Hallenhöhe: 4,82 m - 5,33 m - 4,82 m
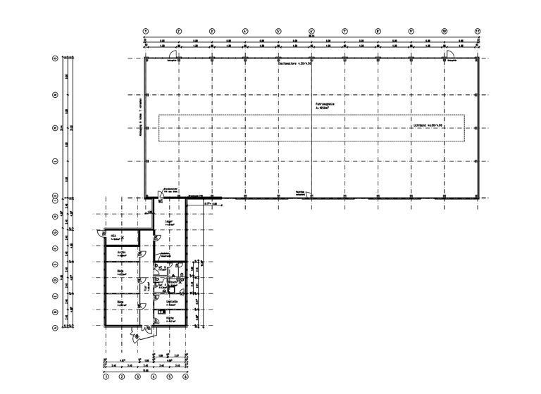
HallenmaĂźe: 50 m x 22 m
Andienung ebenerdig über 10 Rolltore (Maße je Breite 4 m Höhe 4,50 m)

Heizung: steuerbare Decken- und Wandheizkörper / in Halle Gebläseheizung
Energie: 160 kVA
Bauart: Stahlrahmenbauweise (Raster 5 m - 5,50 m) mit Sandwichelementen ohne Innenwände, Flachdach mit Oberlicht, Tragschale aus Trapezblechprofilen mit Bitumendichtungsbahnen, Isolierglasfenster, elektr. Außenjalousieanlage, Grundstück komplett umzäunt, 2 Toranlagen vorhanden

Hallenhöhe: 4,82 m - 5,33 m - 4,82 m
HallenmaĂźe: 50 m x 22 m
Zugang: ebenerdig über 10 Rolltore (Maße je Breite 4 m Höhe 4,50 m möglich)

Grundrisse

Grundrisse
1 / 1

Realisiere Dein Projekt

Bausubstanz und Energie

Energieausweis

  • Baujahr1994
  • EnergieträgerFlĂĽssiggas
Immowelt logo

Mietkosten

Warmmiete
6.000 €
Nettomiete
5.500 €
Nebenkosten
500 €
Provision fĂĽr Mieter
Bitte beachte, das Angebot kann bei Vertragsabschluss die Zahlung einer Provision beinhalten. Weitere Informationen erhältst Du vom Anbieter.
Kaution
16500 €

Lage

address-icon
Fabrikstraße 2, Pfaffenhain, Jahnsdorf/Erzgeb. (09387)
Die Gemeinde Jahnsdorf befindet sich etwa zehn Kilometer südwestlich des Chemnitzer Stadtzentrums und sechs Kilometer nordöstlich der Großen Kreisstadt Stollberg/Erzgeb. Innerhalb des rund 26 km² großen Gemeindegebietes befindet sich der Hauptort Jahnsdorf im Südosten. Das Objekt befindet sich direkt am Verkehrslandeplatz Chemnitz/Jahnsdorf. Die Autobahn A72 ca. 5 km entfernt in 8 Minuten erreichbar, Autobahnkreuz Chemnitz (BAB 4/BAB 72) ca. 20 km entfernt in 15 Minuten erreichbar. Flughafen Dresden in 94 km und Flughafen Halle/Leipzig in 114 km Entfernung. Gute Anbindung an ÖPNV (Bus und Citybahn ca. 1 km).

Weitere Informationen

Besichtigungstermine Besichtigung nach Absprache möglich!

Weitere Services

Lust auf eine Besichtigung?
Eine Frage zur Immobilie?
Nachricht hinzufĂĽgen
Mit der Nutzung der oben angegebenen Telefonnummer oder durch Klicken auf „Kontaktieren“ akzeptierst Du die Allgemeinen Nutzungsbedingungen, denen Du jederzeit widersprechen kannst. Weitere Informationen zum Datenschutz

Ăśber den Anbieter

Markus Fugel
Markus FugelMaklerbĂĽro
Hofer StraĂźe 7d, 09224 Chemnitz-Mittelbach
partner badge
Partnerschaft
Herr Nikolas RonczkaDein Kontakt
Online-ID: 2dcjn5r
Markus Fugel
Markus Fugel
Nachricht hinzufĂĽgen
Mit der Nutzung der oben angegebenen Telefonnummer oder durch Klicken auf „Kontaktieren“ akzeptierst Du die Allgemeinen Nutzungsbedingungen, denen Du jederzeit widersprechen kannst. Weitere Informationen zum Datenschutz
Wie zufrieden bist du mit dieser Seite (nicht mit der Immobilie selbst)?