Version: 8.24.0Navigation überspringen
OKAL Haus GmbH
1.148.900 €
7 Zimmer  •  380 m²  •  1.170 m² Grundstück

Villa zum Kauf • provisionsfrei
1148900 €
3.023 €/m²
7 Zimmer  •  380 m²  •  1.170 m² Grundstück

Traumvilla

EIN HAUS DAS KEINE WÜNSCHE OFFEN LÄSST
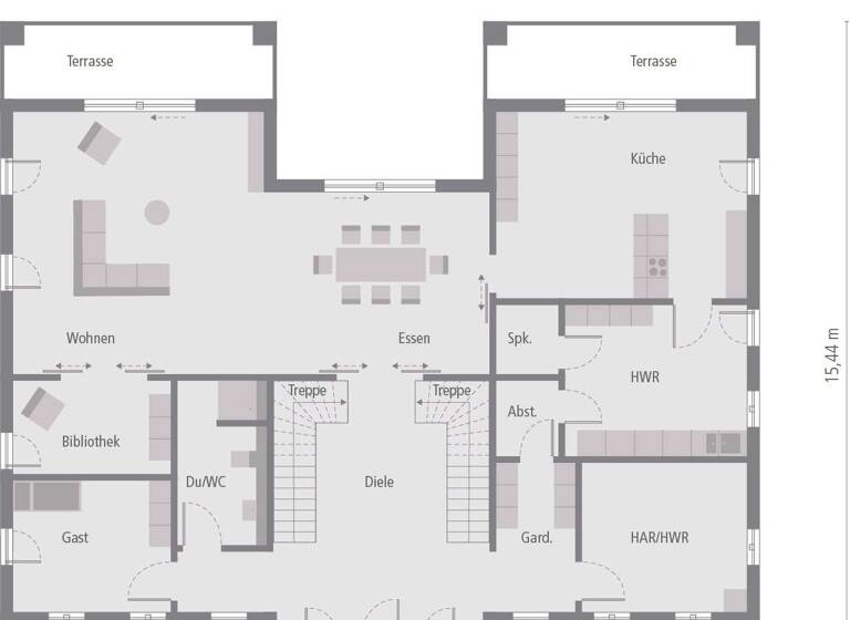
Groß, größer, Louisiana. Die Stadtvilla Louisiana bietet eine Gesamtwohnfläche von rund 380 m2. Doch das ist nur einer der Pluspunkte, mit denen das Haus überzeugt. Drei Erker sorgen für optische Highlights und liefern durch drei Balkone im Obergeschoss und zwei überdachte Terrassenbereiche im Erdgeschoss noch dazu einen echten Mehrwert. Außergewöhnlich geht es auch im Inneren weiter. Das Wohn-Ess-Zimmer hat eine Größe von über 55 m² und geht räumlich in die sich anschließende Küche über. Diese besticht durch einer Fläche von 25 m2. Das Raumangebot im Erdgeschoss wird abgerundet durch eine Bibliothek, ein Gästezimmer, zwei große Hauswirtschaftsräume mit zwei separaten Abstellräumen, Gäste-WC mit Dusche und einen offenen Dielenbereich, von dem zwei herrschaftliche Treppen ins Obergeschoss führen. Den Hausherren gehört der gesamte linke Flügel mit Master Bedroom, Ankleidezimmer und eigenem Bad. Zudem ist im Obergeschoss Platz für bis zu zwei Kinder, die sich ein Badezimmer teilen. Die große Galerie ist ein idealer Ort zum Entspannen und Lesen. Louisiana lässt keine Wünsche offen.

Auf einer Gesamtfläche von ca. 380 qm, sind der Umsetzung Ihrer Vorstellungen vom perfekten Wohnen keine Grenzen gesetzt!
Die Abbildungen dieses Planungsvorschlags dienen Ihnen zur Inspiration. Sie können Grundriss und Architektur-Extras individuell verändern.

Merkmale

  • Bezug: 2025
  • 1.170 m² Grundstück
  • Gäste-WC
Bei OKAL sind viele Leistungen bereits inklusive:

- inkl. Grundstückspreis
- inkl. Architektenleistung
- inkl. Bodengutachten
- inkl. Bodenplatte
- inkl. 2,80 m Raumhöhe
- inkl. elektrische Aluminiumrollläden
- inkl. Zertifizierte Nachhaltigkeit
- inkl. Balkon Glasgeländer
- inkl. Lüftungsheizung (Wärmepumpe)
PROXON
- inkl. Sockeldämmung
- inkl. Bauendreinigung vor Hausübergabe
Im Preis sind nicht enthalten:
- Garagen und Stellplätze
- Erwerbskosten und Baunebenkosten

Grundrisse

Grundrisse
1 / 2

Realisiere Dein Projekt

Bausubstanz und Energie

Der Anbieter hat keine Informationen zum Energieverbrauch bereit gestellt.
  • Baujahr2024
MediumRectangleTop

Preisdetails

Kaufpreis
1148900 €
3.023,42 €/m²
Provision für Käufer
provisionsfrei
Geschätzte Gesamtkosten
1.229.324 €1
Kaufpreis
1.148.900 €
Notarkosten (1,5%)
17.234 €
Grunderwerbsteuer (5%)
57.445 €
Grundbucheintrag (0,5%)
5.745 €
1Der angezeigte Wert ist eine automatisch berechnete Schätzung von immowelt.
2Bei den Angaben handelt es sich um ortsübliche Werte. Individuelle Kosten können abweichen.

Lage

address-icon
Mayen (56727)
Der Anbieter hat die genaue Adresse nicht freigegeben
Das angebotene Objekt befindet sich in unverbaubarer Aussichtslage mit einem traumhaften Blick über die Stadt.

Weitere Informationen

Sonstiges Ihre Wünsche sind unser Bauplan

Stellen Sie sich vor, vor Ihnen läge ein weißes Blatt Papier und jemand würde Sie bitten, darauf Ihr Traumhaus zu zeichnen. Was würden wir am Ende sehen können? Ein schickes Familienhaus mit Farbakzenten, eine große Villa, einen Bungalow oder ein modernes Generationenhaus mit großem Garten, Garage und einer schönen Ausfahrt? Egal, was Sie zeichnen. Gemeinsam mit OKAL lassen sich all Ihre Träume und Vorstellungen erfüllen.

Bauen ist Vertrauenssache. Das ist auch der Grund, weshalb sich seit der Unternehmensgründung im Jahr 1928 bisher über 90.000 Familien für OKAL entschieden haben. Durch sein standardisiertes Raumhöhen-Konzept DIMENSION 2,80 schafft OKAL ein Plus an Lebensqualität. Die Energieverbrauch. Photovoltaikanlagen auf dem Dach versorgen das Haus mit umweltschonendem Solarstrom. Dank eigenem Hauskraftwerk von E3/DC können sich OKAL-Häuser nahezu komplett selbst versorgen.

Auch bei den Baustoffen denkt OKAL an die Zukunft und verwendet ausschließlich nachhaltige Materialien. Nur bei OKAL bekommen Sie auf Ihr individuell geplantes Haus eine Gold-Zertifizierung nach dem System der DGNB. Alle unsere OKAL-Häuser sind Energieeffizienzhäuser. Stichworte Anzahl der Schlafzimmer: 3, Anzahl der Badezimmer: 1, 2 Etagen

Weitere Services

Lust auf eine Besichtigung?
Eine Frage zur Immobilie?
Nachricht hinzufügen
Mit der Nutzung der oben angegebenen Telefonnummer oder durch Klicken auf „Kontaktieren“ akzeptierst Du die Allgemeinen Nutzungsbedingungen, denen Du jederzeit widersprechen kannst. Weitere Informationen zum Datenschutz

Über den Anbieter

OKAL Haus GmbH
OKAL Haus GmbHMaklerbüro
Keine Telefonnummer hinterlegt
Ludwig-Erhard-Straße 1-2, 61118 Bad Vilbel
partner badge
Partnerschaft
Keine Telefonnummer hinterlegt
Online-ID: 2jwwk5y
Referenznummer: 148911210
OKAL Haus GmbH
OKAL Haus GmbH
Nachricht hinzufügen
Mit der Nutzung der oben angegebenen Telefonnummer oder durch Klicken auf „Kontaktieren“ akzeptierst Du die Allgemeinen Nutzungsbedingungen, denen Du jederzeit widersprechen kannst. Weitere Informationen zum Datenschutz
MediumRectangleTop
MediumRectangleTop
Wie zufrieden bist du mit dieser Seite (nicht mit der Immobilie selbst)?