Version: 8.24.1Navigation überspringen
1.200 €
460 m² Lagerfläche
Immowelt logo

Lagerhalle zur Miete
1.200 €
460 m² Lagerfläche

* Lagerteilfläche zwischen Straubing und Plattling*

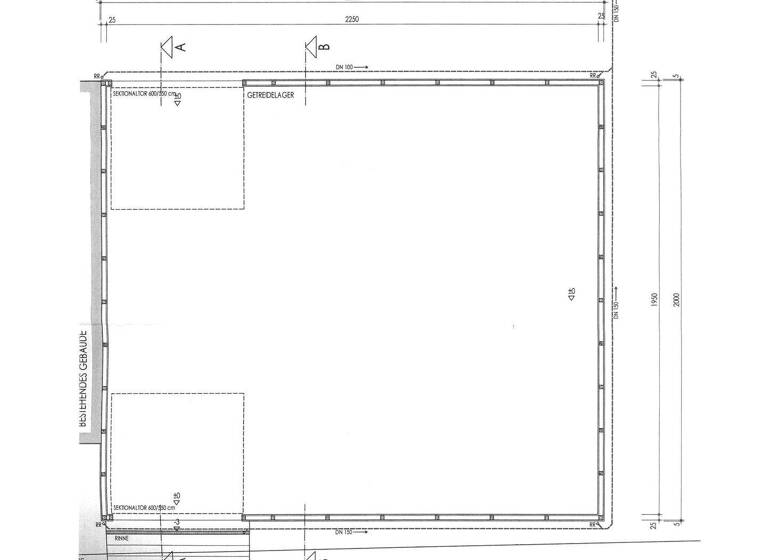
Bei dem Objekt handelt es sich um eine reine Lagerhalle mit Nagelbinderdachstuhl sowie geschliffenem Betonboden.

Die Anmietung von individuellen, anpassbaren Teilfächen ist möglich.

Ein Kraftstromanschluss ist vorhanden. Ebenso ist eine Beleuchtung vorhanden.

Höhe: ca. 6,30 Meter

Torzufahrt: ca. 6 Meter breit; ca. 5,50 Meter hoch

Die Tore sind elektrisch bedienbar.

Auf dem Grundstück befinden sich PkW-Stellplatzmöglichkeiten (ca. 40qm).

Merkmale

  • Bezug: ab sofort verfügbar
  • 500 m² Grundstück
  • Bodenbelag: Stein

Grundrisse

Grundrisse
1 / 5

Realisiere Dein Projekt

Bausubstanz und Energie

Energieausweis

Ein Energieausweis ist für diesen Gebäudetyp nicht notwendig.
  • Baujahr2021
  • Zustand der Immobilieneuwertig
Immowelt logo

Mietkosten

Nettomiete
1.200 €
Nebenkosten
200 €
Provision für Mieter
3,57 Nettokaltmieten inkl. MwSt. inkl. MwSt.
Kaution
nach Vereinbarung

Lage

address-icon
Straßkirchen (94342)
Der Anbieter hat die genaue Adresse nicht freigegeben
Die Stadt Straubing liegt ca. 15 Fahrtminuten entfernt.

Eine Anbindung an die Bundesstraße B20 befindet sich nur ca. 5 Fahrtminuten entfernt.

Das neue BMW Werk "Irlbach-Straßkirchen" befindet sich nur wenige Fahrtminuten entfernt.

Weitere Informationen

Sonstiges Die verbrauchsabhängigen Kosten werden direkt mit dem Anbieter abgerechnet. Stichworte Nutzfläche: 460,00 m², Gesamtfläche: 230,00 m², Hallenhöhe: 6,30 m, Lage im Mischgebiet

Weitere Services

Lust auf eine Besichtigung?
Eine Frage zur Immobilie?
Nachricht hinzufügen
Mit der Nutzung der oben angegebenen Telefonnummer oder durch Klicken auf „Kontaktieren“ akzeptierst Du die Allgemeinen Nutzungsbedingungen, denen Du jederzeit widersprechen kannst. Weitere Informationen zum Datenschutz

Über den Anbieter

Innere Passauer Straße 4, 94315 Straubing
partner badge
Partnerschaft
Herr Raphael BastDein Kontakt
Keine Telefonnummer hinterlegt
Keine Telefonnummer hinterlegt
Online-ID: 2nhem5q
Referenznummer: 164770680#kUDSR
Vilsmeier Wohnbau GmbH
Vilsmeier Wohnbau GmbH
Bewertung: 4,2 von 5 Sternen
Nachricht hinzufügen
Mit der Nutzung der oben angegebenen Telefonnummer oder durch Klicken auf „Kontaktieren“ akzeptierst Du die Allgemeinen Nutzungsbedingungen, denen Du jederzeit widersprechen kannst. Weitere Informationen zum Datenschutz
Wie zufrieden bist du mit dieser Seite (nicht mit der Immobilie selbst)?