




Stadthaus zum Kauf3650000 €8.488 €/m²12 Zimmer • 430 m² • 330 m² Grundstück
3650000 €
8.488 €/m²
12 Zimmer • 430 m² • 330 m² Grundstück
Akzent: hamburgisch!
Merkmale
- vermietet
- 330 m² Grundstück
- EinbaukĂĽche
- Keller
- Gäste-WC
- Balkon
- Garten
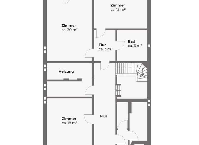
Grundrisse
Grundrisse
1 / 4
Realisiere Dein Projekt
Bausubstanz und Energie
Energieausweis
D
- Baujahr1886
- EnergieträgerGas
Preisdetails
Kaufpreis
3650000 €
8.488,37 €/m²
Provision für Käufer
7,14 %
Die hier ausgewiesene Käufercourtage gilt für Verbraucher und beinhaltet die gesetzliche Mehrwertsteuer.
Die hier ausgewiesene Käufercourtage gilt für Verbraucher und beinhaltet die gesetzliche Mehrwertsteuer.
Geschätzte Gesamtkosten
4.054.055 €1
Kaufpreis
3.650.000 €
Kaufnebenkosten
404.055 €
2Notarkosten (1,5%)
54.750 €
Grunderwerbsteuer (5,5%)
200.750 €
Provision für Käufer (3,57%)
130.305 €
Grundbucheintrag (0,5%)
18.250 €
1Der angezeigte Wert ist eine automatisch berechnete Schätzung von immowelt.
2Bei den Angaben handelt es sich um ortsübliche Werte. Individuelle Kosten können abweichen.
Lage

Uhlenhorst, Hamburg (22085)
Der Anbieter hat die genaue Adresse nicht freigegeben
Weitere Informationen
Weitere Services
Lust auf eine Besichtigung?
Eine Frage zur Immobilie?
Ăśber den Anbieter
Karla Fricke ImmobilienMaklerbĂĽro
St. Benedictstr. 39, 20149 Hamburg
Partnerschaft
BĂĽro AlsterDein Kontakt
Weitere Unterlagen
Online-ID: 2jen35b
Referenznummer: 5294
Wie zufrieden bist du mit dieser Seite (nicht mit der Immobilie selbst)?




