AURA Immobilienverwertung GMBH

Herr Florian Eitler

Top ausgestattete 3-Zimmer-Gartenwohnung im "HASENGARTEN"

€ 939
Gesamtmiete
61,52 m²
Wohnfläche ca.
3
Zimmer

Der Anbieter dieses Objekts hat gegenüber der AVIV Germany GmbH als Betreiber dieses Online-Marktplatzes erklärt, nicht als Unternehmer im Sinne des § 1 KSchG zu handeln. Die im Verbraucherschutzrecht der Union verankerten Verbraucherrechte (insbesondere Informationspflichten und Rücktritts- bzw. Widerrufsrechte) finden auf den Vertrag zwischen dem Anbieter des Objekts und Ihnen (dem Interessenten) keine Anwendung.

Gewerblicher Anbieter

Der Anbieter dieses Objekts hat gegenüber der AVIV Germany GmbH als Betreiber dieses Online-Marktplatzes erklärt, als Unternehmer im Sinne des § 1 KSchG zu handeln.

AdresseStraße nicht freigegeben
2442 Unterwaltersdorf 
Auf Karte ansehen

Preise & Kosten

Gesamtmiete € 939 Nettomiete auf Anfrage

Kaution

Baukostenzuschuss: € 13.500,-/ Abwertung 7,12% im Jahr p.A.

Provision für Mieter

Gemäß Erstauftraggeberprinzip bezahlt der Abgeber die Provision.

Lage

Der "Lebensraum Hasengarten" liegt in sehr guter Lage, direkt hinter dem Don Bosco Gymnasium in Unterwaltersdorf.
Das Ortszentrum mit Einkaufsmöglichkeiten ist bequem erreichbar, in der Nähe befindet sich ein Badeteich, der von den Bewohnern des Hasengarten mit genutzt werden kann.
In die Einkaufsstadt Ebreichsdorf...

Mehr anzeigen

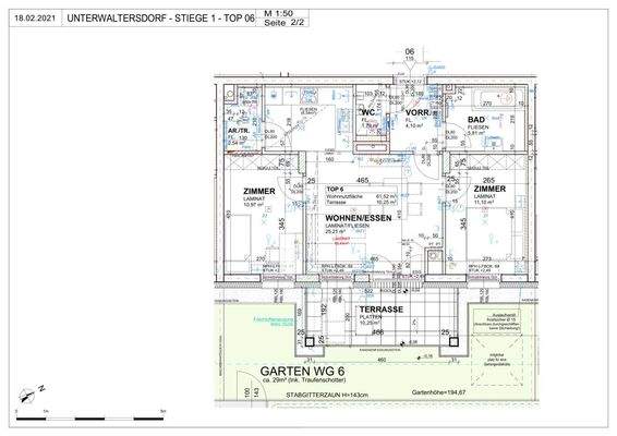
Die Wohnung

Wohnungslage

Erdgeschoss

Bezug

Nach Vereinbarung

  • Bad mit Wanne
  • Terrasse
  • Einbauküche
  • Böden: Fliesenboden, Laminat
  • Zustand: gepflegt
  • Weitere Räume: Abstellraum

Wohnanlage

  • Zustand: Neubau
  • 2 Stellplätze

Energie & Heizung

Heizwärmebedarf (HWB)

A+

27,30 kWh/(m²·a)

Gesamtenergieeffizienz (fGEE)

A+

0,66

Weitere Energiedaten

Energieträger

Fernwärme

Heizungsart

Fußbodenheizung

Details

Objektbeschreibung

Raumaufteilung

Die Wohnung befindet sich im Erdgeschoss.

Vom Vorraum erreichen Sie das WC, das Badezimmer und das große Wohnzimmer. Über das Wohnzimmer gelangen Sie in die Küche mit anschließendem Abstellraum/Technikraum, sowie in zwei getrennte Schlafzimmer und auf die Terrasse mit Zugang zum...

Mehr anzeigen

Preisinformation


Miete inkl. BK, Stellplätze und Ust
Alle Preise sind zzgl. MWST., 2 Stellplätze

Weitere Informationen

Stichworte
Stellplatz vorhanden, Rolladen, Anzahl der Badezimmer: 1, Anzahl der separaten WCs: 1, Anzahl Terrassen: 1, Balkon-Terrassen-Fläche: 10,25 m², Gartenfläche: 29,00 m², Bundesland: Niederösterreich

Dokumente

file_pdfDokument 1angle_rightfile_pdfDokument 2angle_right

Anbieter der Immobilie

Partner

AURA Immobilienverwertung GMBH

Hauptstr. 17, 2544 LEOBERSDORF

user

Herr Florian Eitler

Dein Ansprechpartner

Anbieter-Website Anbieter-Profil Anbieter-Impressum

Online-ID: 2n3n457

Referenznummer: OBGC20260115085707234005fef9a3f

Finde Angebote wie dieses

imageimageimage

Hier geht es zu unserem Impressum, den Allgemeinen Geschäftsbedingungen, den Hinweisen zum Datenschutz und nutzungsbasierter Online-Werbung.