Version: 8.22.4Navigation überspringen
547 €
2 Zimmer  •  48,6 m²  •  1. Geschoss  •  frei ab 01.03.2026

Wohnung zur Miete
547.2 €
Nettokaltmiete
2 Zimmer  •  48,6 m²  •  1. Geschoss  •  frei ab 01.03.2026

AKTION 1 MONAT MIETZINSFREI! - URBAN GARDENING IM NEUEN VIERTEL REININGHAUS

AKTION

1 MONAT MIETZINSFREI*

*Die Betriebskosten sind auch während des mietfreien Monats zu entrichten.

 

Moderne Neubauwohnungen im Viertel Reininghaus - Top Lage in Graz!

Ab sofort stehen Ihnen in zentraler und dennoch ruhiger City-Lage, den neuen Reininghausgründen, perfekt aufgeteilte 2 bis 4 Zimmer Wohnungen zur Verfügung.

Alle Wohnungen wurden mit großzügigen Freiflächen ausgestattet.

Tiefgaragenplätze und Fahrradboxen können bei Bedarf angemietet werden.

Ein besonderes Highlight bilden die Hochbeete am Dach, welche von allen Bewohnern des Hauses genutzt werden können

Die Wohnungen werden mittels Fernwärme beheizt. Alle Geschosse sind mit Fußbodenheizung ausgestattet, welche Ihnen uneingeschränkte Möglichkeiten zur Gestaltung Ihrer Räume bietet.

 

Ausstattungsstandards:

Bei der Realisierung des Neubaus wurde großer Wert auf hochwertige Ausstattung sowie langlebige Materialien gelegt:

* moderne Einbauküche inklusive E-Herd, Dunstabzug & Spüle, Backofen, Kühlschrank und Geschirrspüler
* hochdämmende Vollwärmeschutzfassade (geringe Heizkosten)
* Lift für barrierefreie Erreichbarkeit
* Fußbodenheizung (Fernwärme)
* Warmwasseraufbereitung mittels Fernwärme (kein Boiler in der Wohnung)
* Hochwertige Parkettböden
* Feinsteinzeugfliesen in Nassräumen
* SAT-Anschluss vorhanden
* Kellerabteil, Fahrradabstellmöglichkeit
* Tiefgarage
* Urban Gardening - Hochbeete am Dach

AKTION

1 MONAT MIETZINSFREI*

*Die Betriebskosten sind auch während des mietfreien Monats zu entrichten. 

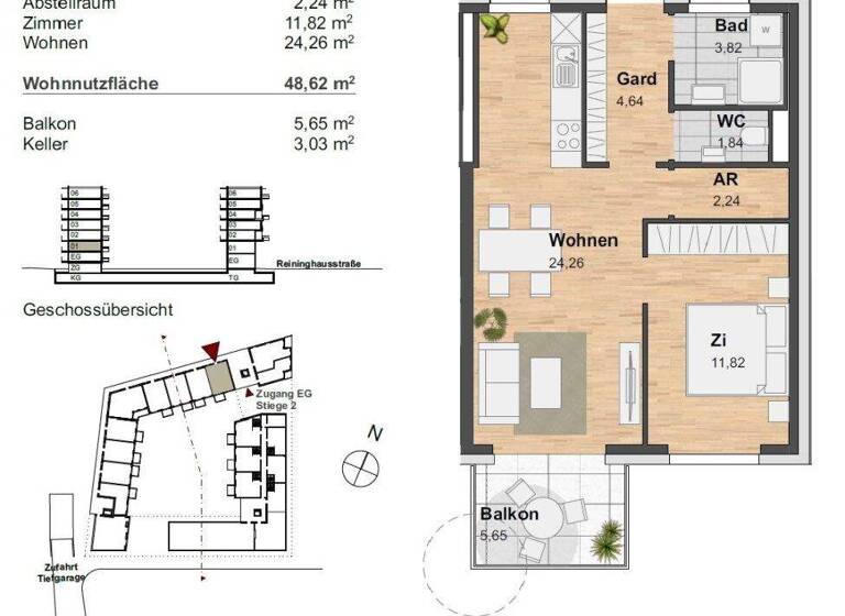
Wohnung Top 12:

Die 2-Zimmer-Wohnung mit ca. 48,62 m² Wohnfläche zzgl. ca. 5,65 m² Balkon befindet sich im 1. Obergeschoss und gliedert sich in folgende Raumaufteilung:

* Eingangsbereich / Vorraum - ca. 4,64 m²
* Badezimmer - 3,82 m²
* Toilette - 1,84 m²
* Wohn-/Essbereich/Küche - ca. 24,26 m² - mit Balkonzugang
* Schlafzimmer - ca. 11,82 m² 
* Abstellraum - ca. 2,24 m²
* Balkon - ca. 5,65 m²

Einige Bilder des Inserats wurden zum Zweck der besseren Visualisierung digital mit KI möbliert. Die Wohnung wird unmöbliert übergeben. 

 

Mietkosten:

Der Mietpreis für die Wohnung beläuft sich auf 749,00 Euro (inkl. BK und USt.).

 

Nebenkosten Wohnung

Kaution: 3 Monatsmieten

Mietvertragserrichtung: € 349,00 (inkl. 20% USt.)

Die Vermietung erfolgt PROVISIONSFREI für den Mieter!

 

Kosten Garagenstellplätze

Garagenstellplatz "normal":       € 75,00 / Monat

Garagenstellplatz "komfort":      € 98,00 / Monat

Garagenstellplatz "doppelt":      € 129,00 / Monat

Motorrad-Stellplatz:                   € 40,00 / Monat

Fahrradbox (2er-Box):               € 15,00 / Monat

 

Nebenkosten Garagenstellplatz

Mietvertragserrichtung: € 199,00 (inkl. 20% USt.)

 

Infrastruktur:

Die Reininghausgründe befinden sich im renommierten 14. Grazer Bezirk Eggenberg, an der Grenze zum 15. Bezirk Wetzelsdorf.

Einkaufsmöglichkeiten, Bankfilialen, Kindergärten, Schulen, Ärzte und eine Apotheke finden Sie in unmittelbarer Nähe. So lassen sich die täglichen Wege einfach und problemlos zu Fuß oder mit dem Fahrrad erledigen.

 

Verkehrsanbindung:

In wenigen Gehminuten erreichen Sie die Haltestelle Reininghausstraße. Von dort haben Sie Anschluss in fast alle Richtungen u.a. mit den Buslinien 62 bzw. 65. In weniger als zehn Gehminuten erreichen Sie die Fachhochschule Joanneum, von wo aus Sie Anschluss mit den Straßenbahnlinien 1, 3, 6 und 7 haben.

 

Energieausweis:

Der Heizwärmebedarf beträgt 27,47 kWh/m²a, welcher der Klasse B entspricht.

 

Gerne steht Ihnen Herr Peter Tawadrous für einen Besichtigungstermin oder Rückfragen unter 0676 852 243 536 oder via E-Mail unter tawadrous@teamneunzehn.at zur Verfügung.

Wir weisen darauf hin, dass zwischen dem Vermittler und dem zu vermittelnden Dritten ein familiäres oder wirtschaftliches Naheverhältnis besteht.

Der Immobilienmakler erklärt, dass er - entgegen dem in der Immobilienwirtschaft üblichen Geschäftsgebrauch des Doppelmaklers - einseitig nur für den Vermieter tätig ist.

"Leben braucht Raum" * T19-RE Real Estate GmbH & Co KG * www.teamneunzehn.at [https://www.teamneunzehn.at]

Doppelmakler

Wir werden als Immobilienmakler kraft bestehenden Geschäftsgebrauchs als Doppelmakler tätig und haben sohin beide Seiten des Vertrages (Verkäufer-Käufer, Vermieter-Mieter) zu unterstützen.

Wirtschaftliches Naheverhältnis

Es wird bekannt gegeben, dass folgendes wirtschaftliches Naheverhältnis zwischen der teamneunzehn-Gruppe und dem Verkäufer/der vermietenden Partei besteht: ständige und dauerhafte Beauftragung mit der Vermittlung des bestehenden Immobilienportfolios

Haftungserklärung zum Inserat

Irrtum und Änderungen vorbehalten! Sofern es sich bei Bildern um Visualisierungen handelt, können Abänderungen zur tatsächlichen Ausführung resultieren. Wir weisen ausdrücklich darauf hin, dass das auf Fotos oder Visualisierungen ersichtliche Mobiliar bzw. Inventar nicht Bestandteil des inserierten Preises ist.

 

 

Infrastruktur / Entfernungen

Gesundheit
Arzt <325m
Apotheke <750m
Klinik <150m
Krankenhaus <925m

Kinder & Schulen
Schule <475m
Kindergarten <100m
Universität <325m
Höhere Schule <375m

Nahversorgung
Supermarkt <300m
Bäckerei <400m
Einkaufszentrum <1.075m

Sonstige
Geldautomat <300m
Bank <300m
Post <300m
Polizei <375m

Verkehr
Bus <125m
Straßenbahn <125m
Autobahnanschluss <3.675m
Bahnhof <425m
Flughafen <9.000m

Angaben Entfernung Luftlinie / Quelle: OpenStreetMap

Merkmale

  • frei ab 01.03.2026
  • 1. Geschoss
  • Einbauküche, offene Küche
  • Personenaufzug
  • Balkon
  • Badezimmer: Bad mit Dusche, Bad mit Fenster
  • Bodenbelag: Fliesen, Parkett
  • voll erschlossen

Grundrisse

Grundrisse
1 / 1

Realisiere Dein Projekt

Bausubstanz und Energie

Heizwärmebedarf (HWB)

B

Gesamtenergieeffizienz (fGEE)

A
  • Baujahr2019
  • Zustand der ImmobilieNeubau, Massivhaus, neuwertig
  • HeizungsartZentralheizung: Fußbodenheizung
  • EnergieträgerFernwärme

Mietkosten

Gesamtmiete
749 €
Nettokaltmiete
14 €/m²
547,20 €
Betriebskosten
133,71 €
Kaution
3 Bruttomonatsmieten
Weitere Preisinformationen
Nettokaltmiete: 547,20 EUR

Lage

address-icon
Reininghausstraße 10EggenbergGraz (8020)
In der Umgebung: Bezirk Eggenberg, Reininghausstraße, Alte Poststraße, Fachhochschule Joanneum, Straßenbahnlinien 1, 3, 6 und 7, Buslinien 62 und 65!

Weitere Informationen

Stichworte Tiefgarage vorhanden, Süd-Ost-Balkon/Terrasse, Nutzfläche: 54,27 m², Gesamtfläche: 54,27 m², Freifläche: 5,65 m², Anzahl der Badezimmer: 1, Anzahl der separaten WCs: 1, Anzahl Balkone: 1, Balkon-Terrassen-Fläche: 5,65 m², Kellerfläche: 3,03 m², Bundesland: Steiermark, 7 Etagen, Wohnungsnr.: 12

Weitere Services

Lust auf eine Besichtigung?
Eine Frage zur Immobilie?
Nachricht hinzufügen
Mit der Nutzung der oben angegebenen Telefonnummer oder durch Klicken auf „Kontaktieren“ akzeptierst Du die Allgemeinen Nutzungsbedingungen, denen Du jederzeit widersprechen kannst. Weitere Informationen zum Datenschutz

Über den Anbieter

Handelskai 94-96/44. Stock, 1200 BRIGITTENAU
partner badge
Partnerschaft
Herr Peter TawadrousDein Kontakt
Online-ID: 2mwme5f
Referenznummer: OBGC2025112110340543302ae2131f8
team19 Immobilien GmbH
Bewertung: 3,3 von 5 Sternen
Nachricht hinzufügen
Mit der Nutzung der oben angegebenen Telefonnummer oder durch Klicken auf „Kontaktieren“ akzeptierst Du die Allgemeinen Nutzungsbedingungen, denen Du jederzeit widersprechen kannst. Weitere Informationen zum Datenschutz
Wie zufrieden bist du mit dieser Seite (nicht mit der Immobilie selbst)?