Version: 8.24.0Navigation überspringen
McMakler GmbH
429.000 €
10 Zimmer  •  285 m²  •  950 m² Grundstück

Mehrfamilienhaus zum Kauf • als Kapitalanlage geeignet
429000 €
1.505 €/m²
10 Zimmer  •  285 m²  •  950 m² Grundstück

7,6?% Netto-Rendite: Vollvermietetes Mehrfamilienhaus in Wiesensteig - Attraktive Kapitalanlage

Objektnr: 1067739

Dieses charmante Mehrfamilienhaus in Wiesensteig bietet Kapitalanlegern eine seltene Gelegenheit, in ein Objekt mit solider Rendite und langfristiger Mietsicherheit zu investieren. Das 1934 erbaute Gebäude steht auf einem ca. 950 m² großen Grundstück in einer ruhigen Nebenstraße und verfügt über eine Wohnfläche von rund 285 m², verteilt auf drei gut geschnittene Wohnungen mit insgesamt zehn Zimmern, davon sieben Schlafzimmer.

Alle Einheiten sind vollständig vermietet und erzielen monatliche Kaltmieteinnahmen von 3.200 €, was in dieser Lage und Objektkategorie einen besonders hohen Wert darstellt. Bei einem Kaufpreis von 429.000 € ergibt sich daraus eine attraktive Bruttorendite. Die monatlichen Nebenkosten belaufen sich auf ca. 500 €.

In den Jahren 2023 bis 2025 wurden umfangreiche Modernisierungen durchgeführt: neue Fenster, eine vollständige Kernsanierung der Erdgeschoss- und Dachgeschosswohnung inklusive Böden, Wände, Elektrik, Bäder, Küchen und Schlafzimmer. Auch die Wohnung im ersten Obergeschoss wurde teilweise modernisiert, u.?a. mit neuer Einbauküche und modernisiertem Badezimmer. Die bestehende Ölzentralheizung steht noch zur Erneuerung an, was Potenzial für energetische Optimierungen und zusätzliche Wertsteigerung bietet.

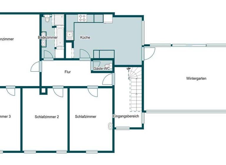
Wohnungsaufteilung:

Erdgeschoss: ca. 100 m², 4 Zimmer, Lagerraum, voll ausgestattetes Badezimmer, Einbauküche, separater Eingang.

1. Obergeschoss: ca. 100 m², 4 Zimmer, großzügiger Flur, Wohnküche mit Essbereich, Wohnzimmer mit Zugang zum Elternschlafzimmer, drei Schlafzimmer, Badezimmer mit Badewanne, Dusche und Waschmaschinenanschluss, separates WC, großer Wintergarten mit Gartenanteil.

2. Obergeschoss: ca. 85 m², Eingangsbereich, 2 Schlafzimmer, modernes Badezimmer mit Dusche und Badewanne, separate Einbauküche, Wohnzimmer, Flurbereich.

Das Gebäude ist zu 50-75?% unterkellert. Vier Außenstellplätze sowie zwei massive Garagen stehen zur Verfügung.

Dank der attraktiven Lage, der stabilen Mieterstruktur, der umfassenden Modernisierungen und der hohen Mieteinnahmen ist dieses Mehrfamilienhaus eine langfristige, wertbeständige und renditestarke Kapitalanlage. Das anstehende Modernisierungsprojekt der Heizungsanlage bietet zusätzliches Potenzial für Wertsteigerung und energetische Effizienz.

Merkmale

  • Bezug: nach Absprache
  • 950 m² Grundstück
  • Keller
  • Garten
+ Mehrfamilienhaus mit 3 Einheiten in Wiesensteig eignet sich für Kapitalanleger
+ Rendite- und Vermietungspotenzial gegeben
+ Die Immobilie präsentiert sich in einem guten Zustand - letzte Modernisierungsmaßnahmen erfolgten 2025
+ 2 Garagen und 4 Freistellplätze bieten weiteren Komfort

Grundrisse

Grundrisse
1 / 2

Virtueller Rundgang

3D tour

Realisiere Dein Projekt

Bausubstanz und Energie

Energieausweis

H
  • Baujahr1934
  • Zustand der ImmobilieGepflegt
  • HeizungsartZentralheizung
  • EnergieträgerÖl
MediumRectangleTop

Preisdetails

Kaufpreis
429000 €
1.505,26 €/m²
Provision für Käufer
Die Provision i.H.v. 4,78 % inkl. MwSt. ist mit Kaufvertragsbeurkundung fällig, sofern der Verkaufspreis über 83.000,00 € liegt.

Liegt der Verkaufspreis dagegen bei/unter 83. Weitere Informationen siehe Provisionshinweis.
Geschätzte Gesamtkosten
459.116 €1
Kaufpreis
429.000 €
Notarkosten (1,5%)
6.435 €
Grunderwerbsteuer (5%)
21.450 €
Provision für Käufer (0,02%)
86 €
Grundbucheintrag (0,5%)
2.145 €
1Der angezeigte Wert ist eine automatisch berechnete Schätzung von immowelt.
2Bei den Angaben handelt es sich um ortsübliche Werte. Individuelle Kosten können abweichen.

Lage

address-icon
Wiesensteig (73349)
Der Anbieter hat die genaue Adresse nicht freigegeben
Lage: Attraktive Lage in Wiesensteig mit besten Bedingungen für Anleger
Bildung und Betreuung: Vor Ort ein Kindergarten für Bildung und Betreuung vorhanden
Nahversorgung: Tägl. Bedarf durch Supermarkt, Apotheke, Postfiliale und Bankfiliale in max. 6 km gedeckt
Anbindung: Gut erreichbar: Autobahn

Weitere Informationen

Provisionshinweis Die Provision i.H.v. 4,78 % inkl. MwSt. ist mit Kaufvertragsbeurkundung fällig, sofern der Verkaufspreis über 83.000,00 € liegt.

Liegt der Verkaufspreis dagegen bei/unter 83.000,00 €, ist die fest vereinbarte Mindestprovision i.H.v. mind. 5.950,00 € inkl. MwSt. mit Kaufvertragsbeurkundung fällig. Die Mindestprovision fällt insg. nur einmal an, wodurch Verkäufer und Käufer die Mindestprovision dann jeweils mit 2.975,00 € inkl. MwSt. tragen. Sonstiges Vereinbaren Sie noch heute einen Besichtigungstermin!
_____________________________________________________

Alle Angaben sind ohne Gewähr und basieren ausschließlich auf Informationen, die uns von unserem Auftraggeber zur Verfügung gestellt wurden. Wir übernehmen keine Gewähr für die Vollständigkeit, Richtigkeit und Aktualität der Angaben. Stichworte Wohnfläche: 285,03 m², Gesamtfläche: 285,00 m², Anzahl der Schlafzimmer: 7, 2 Etagen, modernisiert: 2023

Weitere Services

Lust auf eine Besichtigung?
Eine Frage zur Immobilie?
Nachricht hinzufügen
Mit der Nutzung der oben angegebenen Telefonnummer oder durch Klicken auf „Kontaktieren“ akzeptierst Du die Allgemeinen Nutzungsbedingungen, denen Du jederzeit widersprechen kannst. Weitere Informationen zum Datenschutz

Über den Anbieter

McMakler GmbH
McMakler GmbHMaklerbüro
Am Postbahnhof 17, 10243 Berlin
Ihr McMakler TeamDein Kontakt
Online-ID: 2n45u5f
Referenznummer: 30322f7af1
McMakler GmbH
McMakler GmbH
Nachricht hinzufügen
Mit der Nutzung der oben angegebenen Telefonnummer oder durch Klicken auf „Kontaktieren“ akzeptierst Du die Allgemeinen Nutzungsbedingungen, denen Du jederzeit widersprechen kannst. Weitere Informationen zum Datenschutz
MediumRectangleTop
MediumRectangleBottom
MediumRectangleTop
Wie zufrieden bist du mit dieser Seite (nicht mit der Immobilie selbst)?