"Bezugsfreie" 3-Zimmer-Wohnung mit Balkon und TG-Stellplatz in Freiburg-Weingarten
Diese charmante 3-Zimmer-Wohnung, mit Westausrichtung, bietet ein tolles Wohnerlebnis. Mit einer Wohnfläche von 83 m² befindet sich die Wohnung im 1. Geschoss eines gepflegten Mehrfamilienhauses. Die letzte Modernisierung erfolgte im Jahr 2018 (Gebäude) und 2025, was gewährleistet, dass die Wohnung in einem hervorragenden Zustand ist.
Die Ausstattung ist praktisch und funktional, mit Laminat und Fliesen als Bodenbelag, die eine einfache Pflege und ein zeitloses Erscheinungsbild bieten. Die Wohnung verfügt über ein geräumiges Badezimmer, das mit allen notwendigen Annehmlichkeiten ausgestattet ist.
Ein besonderes Highlight dieser Immobilie ist der große Mehrzweckraum der z.B. auch als kleine Büro eingerichtet werden kann und der Stellplatz 81 in der Tiefgarage, der Ihnen eine bequeme und sichere Parkmöglichkeit bietet. Zusätzlich verfügt die Wohnung über einen Keller der zusätzlichen Stauraum bietet.
Die Wohnung ist frei, was sie zu einer attraktiven Option für Selbstnutzer und Kapitalanleger macht. Sie befindet sich im Stadtteil Weingarten der Stadt Freiburg im Breisgau, einer Stadt, die für ihre hohe Lebensqualität und attraktive Lage im Herzen des Breisgaus bekannt ist. Die Beheizung erfolgt über Fernwärme, was eine effiziente und umweltfreundliche Energieversorgung gewährleistet.
Diese Immobilie bietet eine hervorragende Gelegenheit, entweder als Eigenheim oder als rentable Investition in einer der begehrtesten Regionen Deutschlands.
Merkmale
Bezug: sofort
Erdgeschoss
Personenaufzug
Keller
Tiefgarage
Balkon
Badewanne
Bodenbelag: Fliesen, Laminat
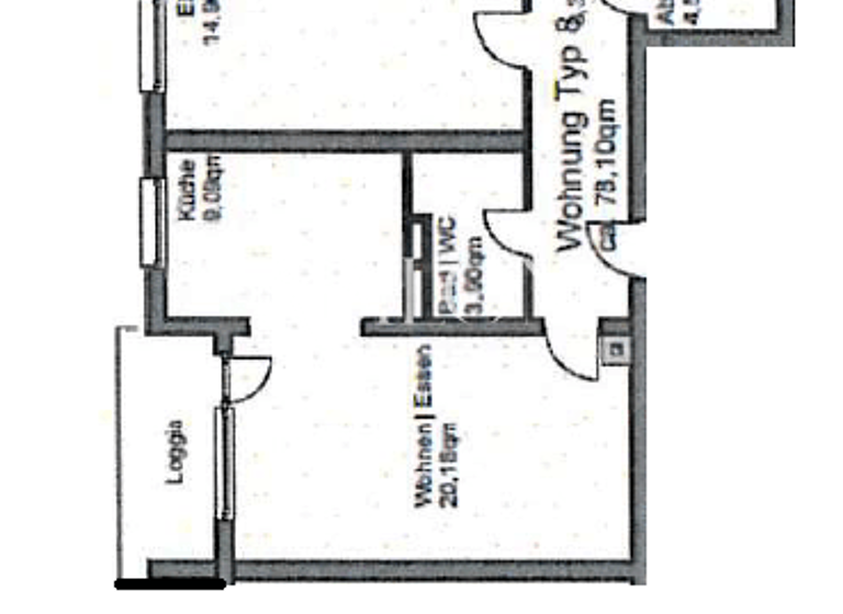
Grundrisse
Grundrisse
1 / 1
Realisiere Dein Projekt
Bausubstanz und Energie
Energieausweis
C
Baujahr1968
Zustand der Immobilierenoviert / saniert
EnergieträgerFernwärme
Preisdetails
Kaufpreis
330000 €330.000 €
3.975,90 €/m²
Preis pro Stellplatz
10000 €10.000 €
Provision für Käufer
3,57 % inklusive gesetzlich geltender Mehrwertsteuer. Weitere Informationen siehe Provisionshinweis.
Weitere Preisinformationen
1 Tiefgaragenstellplatz, Kaufpreis: 10.000,00 EUR
Geschätzte Gesamtkosten
364.881 €1
Kaufpreis
330.000 €
Kaufnebenkosten
34.881 €
2
Notarkosten (1,5%)
4.950 €
Grunderwerbsteuer (5%)
16.500 €
Provision für Käufer (3,57%)
11.781 €
Grundbucheintrag (0,5%)
1.650 €
1Der angezeigte Wert ist eine automatisch berechnete Schätzung von immowelt.
2Bei den Angaben handelt es sich um ortsübliche Werte. Individuelle Kosten können abweichen.
Lage
Weingarten, Freiburg im Breisgau (79114)
Der Anbieter hat die genaue Adresse nicht freigegeben
Lagebeschreibung für Immobilienanzeige: Kauf, Freiburg im Breisgau
Diese Immobilie befindet sich in einer der begehrtesten und lebendigsten Städte Deutschlands - Freiburg im Breisgau. Die Lage bietet eine perfekte Mischung aus urbaner Atmosphäre und natürlicher Schönheit.
- Zentral gelegen, nur wenige Gehminuten von der historischen Altstadt entfernt, genießen Sie die Nähe zu zahlreichen Geschäften, Restaurants, Cafés und kulturellen Attraktionen. - Die Universität Freiburg, eine der renommiertesten Bildungseinrichtungen Deutschlands, ist ebenfalls in unmittelbarer Nähe. Dies macht die Lage besonders attraktiv für Akademiker und Studierende. - Die Anbindung an den öffentlichen Nahverkehr ist hervorragend. Mehrere Bus- und Straßenbahnlinien sorgen für eine bequeme und schnelle Fortbewegung innerhalb der Stadt und in die umliegenden Gebiete. - Naturliebhaber werden die Nähe zum Schwarzwald zu schätzen wissen. Herrliche Wander- und Radwege beginnen direkt vor Ihrer Haustür und laden zu entspannenden Ausflügen in die atemberaubende Natur ein. - Die Nähe zur französischen Grenze und zum Flughafen Basel-Mulhouse bietet zudem hervorragende internationale Verbindungen.
Erleben Sie das Beste aus Stadtleben und Natur in dieser erstklassigen Lage in Freiburg im Breisgau.
Weitere Informationen
Provisionshinweis
3,57 % inklusive gesetzlich geltender Mehrwertsteuer. Bei Kauf der Immobilie fällt für den Käufer eine Maklerprovision in Höhe von 3,57 % inklusive gesetzlich geltender Mehrwertsteuer des Immobilienkaufpreises an. Ein provisionspflichtiger Maklervertrag besteht ebenfalls mit dem Verkäufer.
Stichworte
Tiefgarage vorhanden, Anzahl der Badezimmer: 1, Anzahl Balkone: 1, Anzahl Loggias: 1, Balkon-Terrassen-Fläche: 6,00 m², Bundesland: Baden-Württemberg, 8 Etagen, modernisiert: 2018, Distanz zum Flughafen: 50.29, Distanz zum Hauptbahnhof: 3.1, Distanz zur Autobahn: 7.0, Distanz zum Bus: 0.39