
Garda Haus Srl
Team Agenzia Garda Haus-Garda
+39 ···
Nr. anzeigenPreise & Kosten
Provision für Käufer
Maklerprovision im Preis nicht inbegriffen
Das Haus
Kategorie
Rustico
Geschosse
3 Geschosse
Baujahr
1940
Bezug
sofort
Derzeitige Nutzung
frei
Details
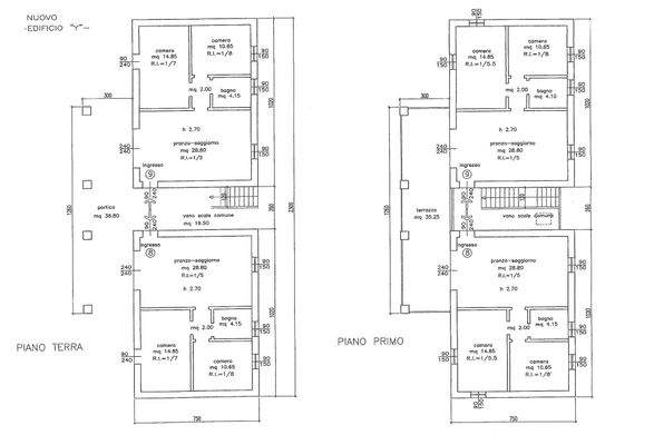
Objektbeschreibung
RUSTICO und LAND MIT GENEHMIGTEM PROJEKT - ANGEBOT FÜR BAUERN UND INVESTOREN
Nur 5 Minuten vom Zentrum von Lazise und den Ufern des Gardasees entfernt, eingebettet in die Ruhe und das Grün der Hügel, bieten wir ein renovierungsbedürftiges Rustico auf einem großen Grundstück von 2.670 m² zum Verkauf an, das sich ideal...
Preisinformation
14 Carportplätze
14 Stellplätze
Weitere Informationen
Sonstiges
Wir begleiten Sie nach Verabredung persönlich zu den Objekten und stehen Ihnen bei der gesamten Abwicklung Ihres Immobilienkaufs als starker Partner kompetent zur Seite. Mit uns gehen Sie keine Kompromisse ein und überlassen nichts dem Zufall. "Full Service" ist für uns kein Wort, sondern Geschäftsphilosophie...
Anbieter der Immobilie
Garda Haus Srl
Via Meucci 77, 25080 PADENGHE SUL GARDA
Online-ID: 2mkcf5p
Referenznummer: GV0190
Finde Angebote wie dieses
Hier geht es zu unserem Impressum, den Allgemeinen Geschäftsbedingungen, den Hinweisen zum Datenschutz und nutzungsbasierter Online-Werbung.