Version: 8.24.0Navigation überspringen
Mietkosten auf Anfrage
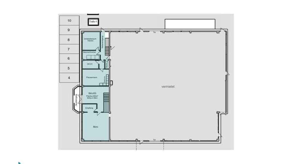
460 m² Bürofläche  •  teilbar ab 230 m²
Immowelt logo

Bürofläche zur Miete
Mietkosten auf Anfrage
460 m² Bürofläche  •  teilbar ab 230 m²

Büro oder Labor in bester Verkehrslage

- Bürofläche ca. 460 m²
- teilbar ab ca. 230 m²
- leichte Montage möglich
- Lager nach Bedarf

MIETFLÄCHEN
EG ca. 230 m²
OG ca. 230 m²

Merkmale

  • Einbauküche, Teeküche
- OWA Decke
- Natursteinfliesen
- Blendschutz
- IT über Brüstungskanäle
- Serverraum
- Teeküche
- Repräsentativer Empfang
- Parkplätze nach Bedarf
- Gelände eingezäunt
- Dusche
- Zentralheizung

Realisiere Dein Projekt

Bausubstanz und Energie

Der Anbieter hat keine Informationen zu Energieverbrauch oder Zustand der Immobilie bereit gestellt.
Immowelt logo

Mietkosten

Miete auf Anfrage
Provision für Mieter
Bitte beachte, das Angebot kann bei Vertragsabschluss die Zahlung einer Provision beinhalten. Weitere Informationen erhältst Du vom Anbieter.
Kaution
keine Angabe
Weitere Preisinformationen

0,00
Alle Preise sind inkl. MWST.

Lage

address-icon
OffenhausenNeu-Ulm (89231)
Der Anbieter hat die genaue Adresse nicht freigegeben
- Doppelstadt Ulm/Neu-Ulm
- rund 180.000 Einwohner bzw. 120.000 sozialversicherungspflichtig Beschäftigte
- breit gefächerte Wirtschaftsstruktur
- großräumig zwischen München und Stuttgart
- verkehrsgünstig am Schnittpunkt der Autobahnen A 7 und A 8 sowie der Bundesstraßen B 10, B 19, B 28, B 30 und B 311
- weit über die Landesgrenzen hinaus bekannt als Drehscheibe für Logistik, Produktionsstandort für Automobilzulieferer, Sitz div. Chemie- bzw. Pharmakonzerne u.v.a.m.

- Gewerbegebiet Neu-Ulm Ost
- direkt an der Bundesstraße B 10
- Anbindung an die nahe gelegende Autobahn A 7
- namhafte Unternehmen wie Daimler Buses GmbH, DHL, Bibus Phneumatik, Buderus, TNT, Würth oder Mti Industriegase in unmittelbarer Nachbarschaft

Weitere Informationen

Courtage 3,57 MM Sonstiges MIETE
auf Anfrage

VERFÜGBARKEIT
ab 01.01.2025

Sehr gerne lassen wir Ihnen ein ausführliches Exposé mit detaillierten Informationen zukommen. Bitte teilen Sie uns hierzu Ihre vollständigen Kontaktdaten mit, Ihre Daten werden selbstverständlich vertraulich behandelt. Stichworte Sonstiges: EDV-Verkabelung, Kabelkanäle

Weitere Services

Lust auf eine Besichtigung?
Eine Frage zur Immobilie?
Nachricht hinzufügen
Mit der Nutzung der oben angegebenen Telefonnummer oder durch Klicken auf „Kontaktieren“ akzeptierst Du die Allgemeinen Nutzungsbedingungen, denen Du jederzeit widersprechen kannst. Weitere Informationen zum Datenschutz

Über den Anbieter

Neue Str. 75, 89073 Ulm
Herr Matthias Kralisch
Herr Matthias KralischDein Kontakt
Online-ID: 2ejn857
Referenznummer: P829
Objekta Real Estate Solutions GmbH
title
Objekta Real Estate Solutions GmbH
Nachricht hinzufügen
Mit der Nutzung der oben angegebenen Telefonnummer oder durch Klicken auf „Kontaktieren“ akzeptierst Du die Allgemeinen Nutzungsbedingungen, denen Du jederzeit widersprechen kannst. Weitere Informationen zum Datenschutz
Wie zufrieden bist du mit dieser Seite (nicht mit der Immobilie selbst)?