Schwabenhaus Ingolstadt - Samka Graf - Handelsvertretung für die Schwabenhaus GmbH
Schwabenhaus Ingolstadt - Samka Graf - Handelsvertretung für die Schwabenhaus GmbH
1 / 5
1 / 5
Schwabenhaus Ingolstadt - Samka Graf - Handelsvertretung für die Schwabenhaus GmbH
Einfamilienhaus zum Kauf • provisionsfrei
438499 €438.499 €
3.621 €/m²
4 Zimmer • 121,1 m² • 381 m² Grundstück
Grundstück und Traumhaus - alles dabei!
Bei diesem Angebot handelt es sich um einen Komplettpreis, welcher das Haus mit Grundstück beinhaltet. Das Haus kann Ihren Wünschen entsprechend - gemäß Bebauungsplan - noch umgestaltet werden. Mit oder ohne Keller (Aufpreis). Ebenso ist Flexibilität bei den Grundrissen gegeben: Treppe drehen, Küche von einer Seite des Raumes auf die Andere verschieben, Eingang verschieben, usw. Wir planen Ihr Haus mit Ihnen im Detail, mit unserem Schwabenhaus-Partner-Architekt direkt in 3-D. Ihr Haus wird exakt und bestmöglich auf Ihrem Grundstück ausgerichtet.
Merkmale
381 m² Grundstück
Gäste-WC
Neben kurzen Bauzeiten, innovativer Haustechnik, attraktiver Architektur und hochwertiger Manufaktur-Qualität bietet Ihnen das angebotene Schwabenhaus im "Green-Edition" All-Inclusive-Paket folgende Mehr-Werte:
- Bodenplatte inkl. Effizienzhaus 55 Perimeter-Dämmung unterhalb der Bodenplatte sowie stirnseitig - Klima-Komfort-Bauweise für das Effizienzhaus 55 - Zimmermannsmäßiges Pfettendach - Photovoltaik-Vorbereitung für die Ausführung eines Photovoltaik-Systems - Komplette Elektro-, Sanitär- und Heizungs-Installation inkl. Grundinstallation für das Schwabenhaus auf Schwabenhaus-Bodenplatte bzw. -Keller* - Zukunftsweisende Elektro-Installation* - Abgeschirmte Lichtleitungen für moderne, störungsfreie Beleuchtung und Lichtszenarien - Rollläden im Erd- und Obergeschoss Ihres Schwabenhauses - Doppel-Wärmepumpe Eco* für Heizen, Kühlen, Lüften, Luftreinigung und Warmwasser - Schwimmender Estrich mit Wärmedämmung* - Blower-Door Test zur Überprüfung der Luftwechselrate* - Klima-Komfort-Außenwand mit über 200 Putzfarben zur Auswahl - Hochwertige, mehrschichtige Holz-Haustür in vielfältigen Design-Lösungen, mit Sicherheitsschließzylinder, 5-fach- Sicherheits-Verriegelung und 3-Scheiben-Wärmeschutzverglasung - Kunststoff-Fenster mit 3-Scheiben- Wärmeschutzverglasung - Dachflächenfenster mit Kipp- und Schwingfunktion sowie elektrischen Rollläden*, wenn laut Grundriss enthalten - Außenfensterbänke aus Naturstein - Innenfensterbänke aus Kunst- oder Naturstein* - Massiv-Vollholz-Treppe - Protect Versicherungs-Paket mit Wohngebäude-Versicherung inkl. Elementarschutz, Haus- und Wohnungs-Schutzbrief, Bauleistungs-Versicherung und Bauherren-Haftpflichtversicherung sowie Job-Protect Versicherungs-Paket - 10 sowie 30 Jahre Gewährleistung gemäß Definition in der Schwabenhaus Bau- und Leistungsbeschreibung
*Ab Ausbaustufe "Fast-Vollendet" ¹Beim Effizienzhaus 40 Kühlung nur in Verbindung mit optionaler PV-Anlage.
Die aufgeführten Mehr-Werte und Leistungsinhalte beziehen sich ausschließlich auf das in der Schwabenhaus Bau- und Leistungsbeschreibung (BLB) beschriebene Technologie + Komfort-Paket "Green -Edition". Die Mehr-Werte und Leistungsinhalte anderer Schwabenhaus Bau- und Leistungsbeschreibungen bzw. Technologie + Komfort-Pakete können hiervon abweichen.
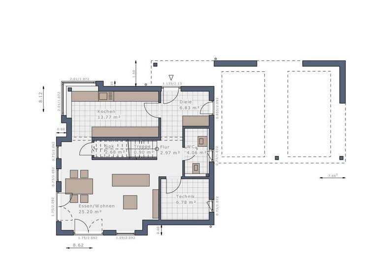
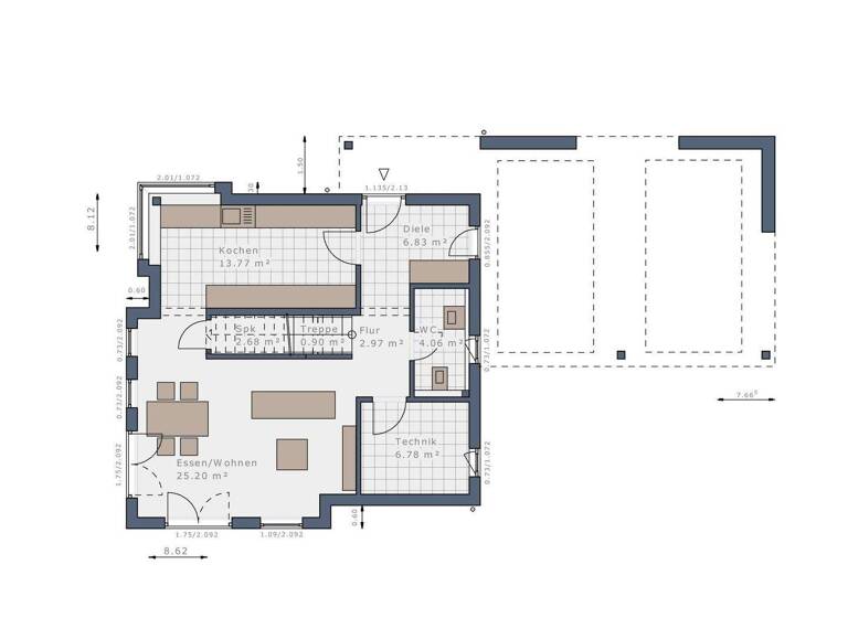
Grundrisse
Grundrisse
1 / 2
Realisiere Dein Projekt
Bausubstanz und Energie
Der Anbieter hat keine Informationen zum Energieverbrauch bereit gestellt.
Zustand der ImmobilieNeubau, Projektiert
HeizungsartFußbodenheizung
Preisdetails
Kaufpreis
438499 €438.499 €
3.620,97 €/m²
Provision für Käufer
provisionsfrei
Geschätzte Gesamtkosten
469.193 €1
Kaufpreis
438.499 €
Kaufnebenkosten
30.694 €
2
Notarkosten (1,5%)
6.577 €
Grunderwerbsteuer (5%)
21.925 €
Grundbucheintrag (0,5%)
2.192 €
1Der angezeigte Wert ist eine automatisch berechnete Schätzung von immowelt.
2Bei den Angaben handelt es sich um ortsübliche Werte. Individuelle Kosten können abweichen.
Lage
Emmingen, Emmingen-Liptingen (78576)
Der Anbieter hat die genaue Adresse nicht freigegeben
Emmingen-Liptingen liegt auf der Hegaualb, der südlichen Abdachung der Schwäbischen Alb, und damit südlich des Oberlaufs der Donau. Die Gemeinde Emmingen-Liptingen ist eine leistungsstarke Gemeinde im ländlichen Raum zwischen Tuttlingen und Bodensee-Hegau. Sie verfügt über eine gute Verkehrsanbindung, da sie nahe der Autobahn A81 liegt, die eine schnelle Anbindung an größere Städte wie Stuttgart und Singen ermöglicht. Die nächsten Bahnhöfe gibt es bei Tuttlingen, Immendingen und Stockach.
Emmingen-Liptingen verfügt über eine solide Infrastruktur mit Geschäften, Restaurants, Kindergärtnen, Grund- und die Hauptschule mit Werkrealschule, Ärzten, Apotheken und anderen Einrichtungen des täglichen Bedarfs.
In der Umgebung gibt es zudem viele Freizeitmöglichkeiten, darunter Wander- und Radwege, Naturparks und kulturelle Veranstaltungen.
Weitere Informationen
Sonstiges
Das Haus ist projektiert inkl. Grundstück. Das Grundstück wird in Kommission angeboten bzw. direkt von Dritten verkauft. Daher kann der o.g. Preis aufgrund aktueller Marktsituationen schwanken.
Die Bauabwicklung kann kurzfristig nach Grundstückserwerb begonnen werden. Bilder zeigen möglicherweise Sonderausstattungen, die auf Wunsch gegen Preiskorrektur zusätzlich angeboten werden können.
Fragen Sie nach unserem kostenlosen Beratungs-Service und erhalten Sie in einem persönlichen Gespräch kostenlos alle wichtigen Informationen zu diesem Projekt, insbesondere: Lage und Bebauungsmöglichkeiten des Baugrundstücks, Baukosten-Kalkulation, Finanzierungs- u. Förderungs-Möglichkeiten, detaillierte Architektur- u. Grundrissplanung, etc.
Wir freuen uns, Sie ausführlich beraten zu dürfen!
Anbauteile, Carport, Garage und Keller können Extras sein, die als Sonderausstattung angeboten werden. Abbildungen, Grundrisse und Flächenangaben sind beispielhaft und können Extras zeigen. Flächenangaben nach DIN 277.
Profitieren Sie jetzt von der Schwabenhaus Online Beratung und verwirklichen Sie Ihr Traumhaus https://www.schwabenhaus.de/anmeldung-hausbau-beratung-online/
Stichworte
Anzahl der Schlafzimmer: 3, Anzahl der Badezimmer: 1, Anzahl der separaten WCs: 1