Version: 8.26.0Navigation überspringen
Volksbank eG - Die Gestalterbank
295.000 €
6 Zimmer  •  175,5 m²  •  476 m² Grundstück

Einfamilienhaus zum Kauf
295000 €
1.681 €/m²
6 Zimmer  •  175,5 m²  •  476 m² Grundstück

***Sanierungsbedürftiges Ein- bis Zweifamilienhaus in ruhiger Lage von Ottenhöfen***

Zum Verkauf steht ein sanierungsbedürftiges Ein- bis Zweifamilienhaus in ruhiger Lage von Ottenhöfen.

Die Immobilie wurde 1965 erbaut und verfügt über eine Wohnfläche von ca. 176m². Das Objekt kann als Ein-/Zweifamilienhaus oder auch als Mehrgenerationenhaus genutzt werden.

Auf dem 476 m² großen Grundstück besteht ausreichend Platz für Erholung im Freien, Gartenideen oder Spielbereiche. Die überdachte Terrasse und der ins Grüne gerichtete Garten laden zu entspannten Stunden an der frischen Luft ein, während der Balkon zusätzlichen Rückzugsraum im Außenbereich schafft. Durch die Lage am Ende einer Sackgasse besteht hier kein Durchgangsverkehr.

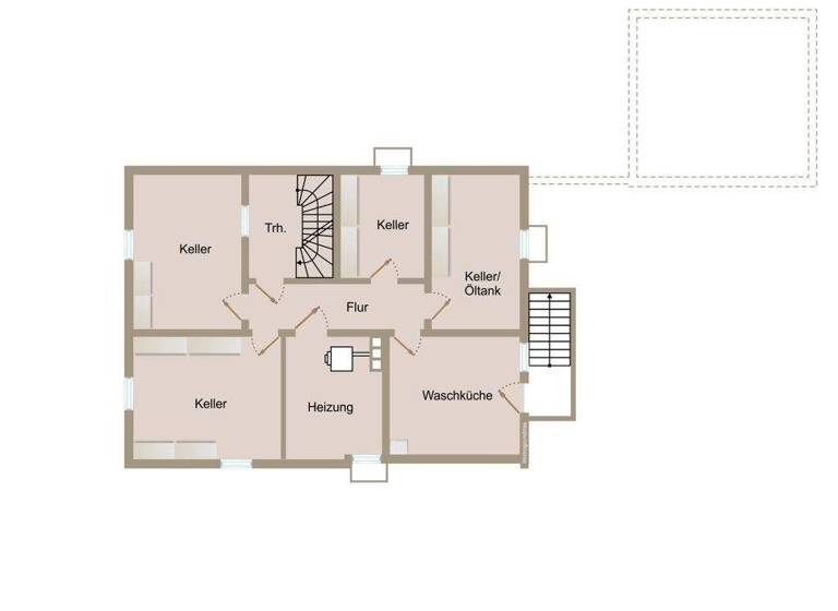
Das Haus ist zudem vollständig unterkellert und hat einen nicht ausgebauten Speicher. Somit bietet diese Immobilie wertvolle zusätzliche Nutzfläche - ideal für Vorrat, Hobby, Werkstatt oder Stauraum. Des Weiteren ist auf dem Grundstück eine Doppelgarage vorhanden.

Das Mühlendorf Ottenhöfen ist bekannt als Luftkurort in waldreicher Mittelgebirgslage. Die Wintersportgebiete des Nordschwarzwaldes rund um die Hornisgrinde sind mit dem Auto in wenigen Minuten zu erreichen. Alle Geschäfte des täglichen Bedarfs sowie Kindergarten, Grundschule und eine Werkrealschule (mit Kappelrodeck) sowie ein Naturerlebnisbad sind vorhanden. Die Kreisstadt Achern und die Autobahn A 5 (Karlsruhe-Basel) sind in 15 Minuten zu erreichen. Zudem besteht Anschluss an die Achertalbahn.

Dieses Ein-/Zweifamilienhaus bietet zahlreiche Möglichkeiten zur individuellen Gestaltung und ist sowohl für Eigennutzer als auch für Kapitalanleger geeignet. Lassen Sie sich von diesem einzigartigen Angebot überzeugen und vereinbaren Sie noch heute einen Besichtigungstermin.

Merkmale

  • 476 m² Grundstück
  • Keller
  • 2 Stellplätze: 2 Garagen
  • voll erschlossen

Grundrisse

Grundrisse
1 / 3

Bausubstanz und Energie

Möchtest du Details zum Energieverbrauch?info_energy_calculation-icon
  • Baujahr1965
  • EnergieträgerÖl
MediumRectangleTop

Preisdetails

Kaufpreis
295000 €
1.680,62 €/m²
Provision für Käufer
3,57 % inkl. Mehrwertsteuer inkl. MwSt.
Weitere Preisinformationen
2 Garagenstellplätze
Geschätzte Gesamtkosten
326.181 €1
Kaufpreis
295.000 €
Notarkosten (1,5%)
4.425 €
Grunderwerbsteuer (5%)
14.750 €
Provision für Käufer (3,57%)
10.531 €
Grundbucheintrag (0,5%)
1.475 €
1Der angezeigte Wert ist eine automatisch berechnete Schätzung von immowelt.
2Bei den Angaben handelt es sich um ortsübliche Werte. Individuelle Kosten können abweichen.

Lage

address-icon
OrtsgebietOttenhöfen (77883)
Der Anbieter hat die genaue Adresse nicht freigegeben

Weitere Informationen

Stichworte Anzahl der Schlafzimmer: 4, Anzahl der Badezimmer: 2, Anzahl der separaten WCs: 2, Anzahl Balkone und Terrassen: 2

Weitere Services

Lust auf eine Besichtigung?
Eine Frage zur Immobilie?
Nachricht hinzufügen
Mit der Nutzung der oben angegebenen Telefonnummer oder durch Klicken auf „Kontaktieren“ akzeptierst Du die Allgemeinen Nutzungsbedingungen, denen Du jederzeit widersprechen kannst. Weitere Informationen zum Datenschutz

Über den Anbieter

Am Riettor 1, 78048 Villingen-Schwenningen
Herr Stefan Ludäscher
Herr Stefan LudäscherDein Kontakt
Online-ID: 26299AR5MN8X
Referenznummer: ORT-2061
MediumRectangleTop
Wie zufrieden bist du mit dieser Seite (nicht mit der Immobilie selbst)?