
Werde Eigentümer GmbH
Frau Michelle Steffen
+49 ···
Nr. anzeigenPreise & Kosten
Provision für Käufer
provisionsfrei
Lage
Eimsbüttel - ein Stadtteil zum Wohlfühlen
In Eimsbüttel ist man per Du! Hier werden Sie schon in der Früh beim Bäcker oder einem der vielen Frühstücks Cafés norddeutsch-freundlich mit einem "Moin" begrüßt. Es ist hier nicht ganz so aufgehübscht wie in Eppendorf und Rotherbaum, dafür achten hier die Menschen mehr...
Die Wohnung
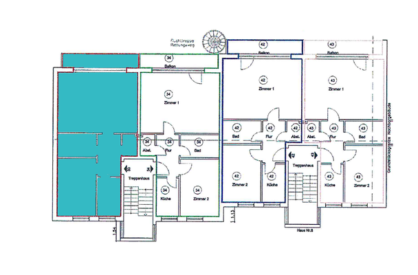
Wohnungslage
Erdgeschoss
Bezug
ab sofort
Wohnanlage
Energie & Heizung
Warum sehe ich diese Anzeige? – Du siehst diese Anzeige basierend auf Ihrer Navigation auf unserer Website und den Suchkriterien, die du verwendet hast.
Energieausweistyp
Verbrauchsausweis
Gebäudetyp
Wohngebäude
Wesentliche Energieträger
Fernwärme
Gültigkeit
18.09.2018 bis 17.09.2028
Effizienzklasse
D
Endenergieverbrauch
125,50 kWh/(m²·a)
Weitere Energiedaten
Energieträger
Fernwärme
Details
Objektbeschreibung
Hinter der Fassandendämmung verbirgt ich ein absolut solider 60er-Jahre Bau, in welchem bei insgesamt 2 Aufgängen 16 freie und vermietete Wohnungen zum Verkauf stehen.
Der gesamte Gebäudekomplex ist an die Fernwärme angeschlossen und energetisch gut aufgestellt. Dies wir sich auch noch weiter verbessern durch die...
Ausstattung
Eine Küche muss selbst eingebaut werden sowie die Treppe in den Garten.
Der Garten ist als Sondernutzungsfläche ausgewiesen und steht dem Erwerber zur alleinigen Nutzung zur Verfügung. Der Erwerb der Sondernutzungsfläche ist obligatorisch und nicht im ausgewiesenen Kaufpreis enthalten. Der zusätzliche Kaufpreis für den...
Weitere Informationen
Sonstiges
Sie erhalten auf Ihre erste Anfrage eine Antwort per automatischem, interaktivem Exposé.
Sehr gern stehen wir Ihnen bei diesem außergewöhnlichen Projekt auch persönlich zur Beratung und/oder der Vereinbarung eines Besichtigungstermins zur Verfügung.
Wir freuen uns auf Ihre...
Anbieter der Immobilie
Werde Eigentümer GmbH
Töpferwall 2a, 17207 Röbel/Müritz
Online-ID: 2nsrp5b
Referenznummer: WE20260102-01-WE33
Finde Angebote wie dieses
Hier geht es zu unserem Impressum, den Allgemeinen Geschäftsbedingungen, den Hinweisen zum Datenschutz und nutzungsbasierter Online-Werbung.