Doppelhaushälfte mit großem Grundstück in Kneese bei Gadebusch
Kurzbeschreibung
Mit Engagement und einer durchdachten Sanierung lässt sich hier ein charmantes Zuhause schaffen - inmitten von Natur und dennoch mit guter Verkehrsanbindung.
Objekt
Es handelt sich um eine leerstehende und sanierungsbedürftige Doppelhaushälfte. Die im Jahr ca. 1920 erbaute Immobilie verfügt über ein zweischaliges Ziegelmauerwerk. Das Dach wurde etwa 1980 neu eingedeckt. Der ungedämmte Dachboden mit ca. 50 m² Nutzfläche ist über eine Auszugstreppe zugänglich bietet durch seine Größe gute Ausbaureserven.
Der ehemalige Stall wurde zu einer Garage umgebaut und grenzt direkt an das Wohnhaus an.
Das großzügige Grundstück umfasst ca. 2.220?m² und bietet mit altem Obstbaumbestand, einem Nebengebäude und genügend Stellplätzen für Fahrzeuge vielseitige Nutzungsmöglichkeiten.
Merkmale
Bezug: nach Vereinbarung
2.220 m² Grundstück
Garten
Stellplatz
Raumaufteilung
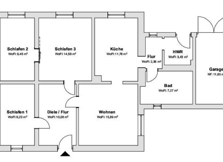
Die Wohnfläche verteilt sich auf insgesamt 4 Zimmer, Diele, Küche, Hauswirtschaftsraum mit Ausgang zur überdachten Terrasse und Garten, ein Badezimmer sowie einen Flur. Die Raumaufteilung ist funktional, der Innenausbau entspricht jedoch nicht mehr heutigen Standards und muss modernisiert werden. Im Haus befindet sich zusätzlich zur modernen Gas-Zentralheizung ein Kachelofen im Wohnzimmer. Die Funktionstüchtigkeit des Schornsteins ist noch zu prüfen.
Technische Ausstattung: - Gaszentralheizung mit moderner Brennwert-Gastherme (Buderus, Baujahr ca. 2020) - Heizkörper größtenteils aus den frühen 1990er-Jahren - Elektrik ist veraltet und muss vollständig erneuert werden - Fenster größtenteils doppelt verglaste Kunststofffenster (Baujahr ca. 1998) mit Außenrollläden - Teilweise ältere Holzfenster (Baujahr ca. 1991)
Bitte beachten Sie, dass der Stromanschluss derzeit über die angrenzende Haushälfte läuft - hier ist eine neue, separate Zuleitung erforderlich. Einige Wände weisen Anzeichen von Feuchtigkeit auf, was bei der Planung von Sanierungsmaßnahmen berücksichtigt werden sollte.
Grundrisse
Grundrisse
1 / 1
Realisiere Dein Projekt
Bausubstanz und Energie
Energieausweis
H
Baujahr1920
Zustand der ImmobilieMassivhaus, renovierungsbedürftig / sanierungsbedürftig
HeizungsartZentralheizung: Ofen
EnergieträgerGas
Preisdetails
Kaufpreis
99000 €99.000 €
1.178,57 €/m²
Provision für Käufer
3,57 % inkl. MwSt. Unser Immobilienbüro hat einen provisionspflichtigen Maklervertrag mit dem Verkäufer in gleicher Höhe abgeschlossen.
Geschätzte Gesamtkosten
110.454 €1
Kaufpreis
99.000 €
Kaufnebenkosten
11.454 €
2
Notarkosten (1,5%)
1.485 €
Grunderwerbsteuer (6%)
5.940 €
Provision für Käufer (3,57%)
3.534 €
Grundbucheintrag (0,5%)
495 €
1Der angezeigte Wert ist eine automatisch berechnete Schätzung von immowelt.
2Bei den Angaben handelt es sich um ortsübliche Werte. Individuelle Kosten können abweichen.
Lage
Kneese (19205)
Der Anbieter hat die genaue Adresse nicht freigegeben
Die Immobilie befindet sich in einer ruhigen und naturnahen Ortsrandlage von Kneese, einer kleinen Gemeinde im Landkreis Nordwestmecklenburg, nahe der Landesgrenze zu Schleswig-Holstein.
Kneese liegt eingebettet zwischen Gadebusch und dem Biosphärenreservat Schaalsee, einer beliebten Erholungsregion mit weitläufiger Natur und zahlreichen Freizeitmöglichkeiten. Ob Ausflüge in die Natur oder Wassersport hier können Sie Ihre Freizeit genießen.
Die Städte Gadebusch (ca. 12 km) und Ratzeburg (ca. 15 km) bieten eine gute Nahversorgung, Schulen, Ärzte, Einkaufsmöglichkeiten und kulturelle Angebote. Über die B 108 sind auch die Städte Lübeck und Schwerin schnell erreichbar.
Weitere Informationen
Sonstiges
Wir weisen darauf hin, dass unsere Angebotsangaben auf uns erteilter Informationen basieren und deshalb für deren Richtigkeit und Vollständigkeit keine Haftung übernommen wird. Unsere Angaben sind freibleibend und unverbindlich. Irrtum und Zwischenverkauf bleibt ausdrücklich vorbehalten.
Stichworte
Garage vorhanden, Anzahl der Schlafzimmer: 3, Anzahl der Badezimmer: 1, Bundesland: Mecklenburg-Vorpommern