

SR Projektbau GmbH
Frau Sandra Kiefer
076 ···
Nr. anzeigenPreise & Kosten
Provision für Käufer
3,57 % inkl. MwSt.
Lage
Das zum Verkauf stehende Objekt befindet sich in der Hauptstraße 18 in 79677 Wembach, eingebettet in die idyllische Umgebung des Schwarzwaldes. Diese Region zeichnet sich durch eine atemberaubende Landschaften aus, die Ruhe und Erholung bieten.
Obwohl Wembach selbst keine Einkaufsmöglichkeiten bietet, sind alle...
Das Haus
Kategorie
Doppelhaushälfte
Baujahr
1690
Energie & Heizung
Warum sehe ich diese Anzeige? – Du siehst diese Anzeige basierend auf Ihrer Navigation auf unserer Website und den Suchkriterien, die du verwendet hast.
Energieausweis: für diesen Gebäudetyp nicht notwendig
Details
Objektbeschreibung
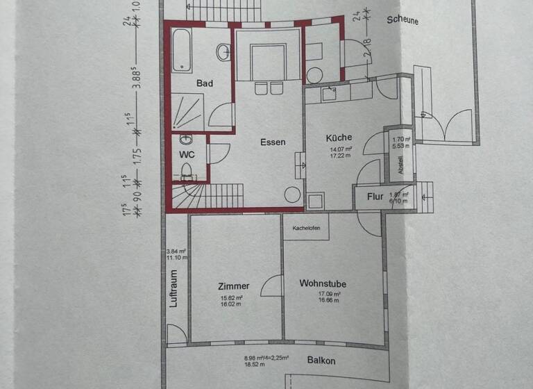
Willkommen in diesem einzigartigen denkmalgeschützten Schwarzwaldhaus, das auf einem 686 m² großen Grundstück, etwa im Jahr 1690 erbaut wurde. Mit einer großzügigen Wohnfläche von ca. 142,5 m² und umfangreichen, hochwertigen Sanierungen in den zulässigen Bereichen, bietet dieses Schmuckstück eine harmonische Verbindung aus...
Weitere Informationen
Stichworte
Bundesland: Baden-Württemberg, modernisiert: 2018
Anbieter der Immobilie
SR Projektbau GmbH
Oberfeldstraße 1, 79677 Schönau

Online-ID: 2jbb85w
Referenznummer: M-2024-09
Finde Angebote wie dieses
Hier geht es zu unserem Impressum, den Allgemeinen Geschäftsbedingungen, den Hinweisen zum Datenschutz und nutzungsbasierter Online-Werbung.