Version: 8.24.0Navigation überspringen
ohne-makler.net - Immobilien selbst vermarkten
149.000 €
200 m² Verkaufsfläche

Laden zum Kauf • provisionsfrei
149000 €
200 m² Verkaufsfläche

Ladenlokal zu verkaufen VB

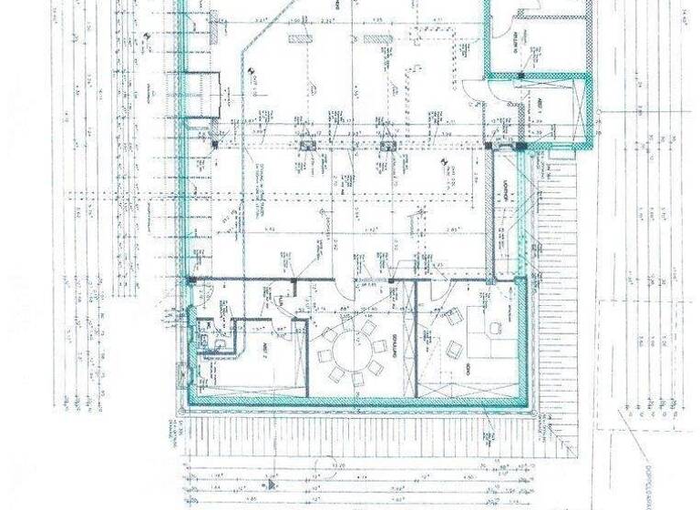
Repräsentative Gewerbeimmobilie im Erdgeschoss eines Wohn- und Geschäftshauses mit großem Verkaufsraum und einigen Nebenräumen zu verkaufen. Durch den zentralen Eingangsbereich, welcher mit einer elektrischen Schiebetür ausgestattet ist, gelangen Sie stufenlos in das großzügige Ladenlokal, welches sich in einem sehr guten Zustand befindet. Zur Nutzung stehen Ihnen drei Räume, ein großer flexibel nutzbarer Ladenraum, ein kleiner Abstellraum sowie eine Küche zur Verfügung. Zusätzlich bietet diese Immobilie drei Toiletten und zusätzliche Lagerfläche. Der Verkaufsraum ist zurzeit mit einer Apothekeneinrichtung ausgestattet und bietet sich wegen der nahen Lage (2 km) zu den Reha-Kliniken der Stadt Bad Salzuflen auch für Sanitätshäuser an. Das Objekt wurde 2001 renoviert und erweitert. Auch als Renditeobjekt/Kapitalanlage geeignet. Andere Nutzungen z. B. als Büro sind ebenfalls möglich. Lassen Sie sich die vielfältigen Nutzungsmöglichkeiten in einem Ortstermin zeigen.

Merkmale

  • Bezug: sofort
  • Erdgeschoss
  • 15 m Schaufensterfront
  • Einbauküche
  • 4 Stellplätze: 4 Außen-Stellplätze
  • Barrierefrei
  • Bad mit Dusche
  • Bodenbelag: Fliesen, Parkett, Teppich
Duschbad, Einbauküche, Gäste-WC, Barrierefrei, Parkett, Teppichboden, Fliesen

Bemerkungen:
Das Ladenlokal ist zurzeit mit einer repräsentativen Apothekeneinrichtung ausgestattet. Diese kann aber auch für andere Nutzungen entfernt werden.
Energieausweis liegt vor (verbrauchsorientiert): Baujahr 1983, Energieeffizienzklasse C, Energieverbrauch 95 kWh (qm a), Heizträger Öl.

Grundrisse

Grundrisse
1 / 1

Realisiere Dein Projekt

Bausubstanz und Energie

Energieausweis

Endenergieverbrauch (Wärme)

Endenergieverbrauch (Strom)

  • Baujahr1983
  • Zustand der ImmobilieGepflegt
  • HeizungsartZentralheizung
  • EnergieträgerÖl
MediumRectangleTop

Preisdetails

Kaufpreis
149000 €
Provision für Käufer
provisionsfrei; keine Provision, courtagefrei
Weitere Preisinformationen
4 Stellplätze
Geschätzte Gesamtkosten
149.000 €1
Kaufpreis
149.000 €
1Der angezeigte Wert ist eine automatisch berechnete Schätzung von immowelt.

Lage

address-icon
Salzufler Str. 25WüstenBad Salzuflen (32108)
Der Laden befindet sich an der Durchgangsstraße im Ortsteil Wüsten der Stadt Bad Salzuflen, ca. 1,5 km von den Reha-Kliniken der Stad Bad Salzuflen entfernt.
Infrastruktur (im Umkreis von 5 km):
Apotheke, Lebensmittel-Discount, Allgemeinmediziner, Kindergarten, Grundschule, Öffentliche Verkehrsmittel

Weitere Informationen

Sonstiges Heizungsart: Zentralheizung
Energieträger: Öl

Das Ladenlokal kann auch gemietet werden.

ohne-makler (OM) ist weder Anbieter noch Vermittler der Immobilie. OM betreibt eine Plattform für Immobilieneigentümer, die unter anderem die gleichzeitige Veröffentlichung einzelner Inserate auf mehreren Immobilienportalen ermöglicht. Die Inhalte dieser Inserate werden ausschließlich von Dritten verantwortet. Für die Richtigkeit, Vollständigkeit oder Rechtmäßigkeit der Angaben übernimmt OM keine Haftung. Hinweise auf mögliche Rechtsverstöße können jederzeit gemeldet werden und werden nach Prüfung umgehend bearbeitet. Stichworte Stellplatz vorhanden, Lagerfläche: 91,00 m², Gesamtfläche: 291,00 m², Anzahl der separaten WCs: 1, Bundesland: Nordrhein-Westfalen, 1 Etagen

Weitere Services

Lust auf eine Besichtigung?
Eine Frage zur Immobilie?
Nachricht hinzufügen
Mit der Nutzung der oben angegebenen Telefonnummer oder durch Klicken auf „Kontaktieren“ akzeptierst Du die Allgemeinen Nutzungsbedingungen, denen Du jederzeit widersprechen kannst. Weitere Informationen zum Datenschutz

Über den Anbieter

Humboldtstr. 25 A, 21509 Glinde
partner badge
Partnerschaft
Privat vom EigentümerDein Kontakt

Weitere Unterlagen

Online-ID: 2n8sk5k
Referenznummer: 229371
ohne-makler.net - Immobilien selbst vermarkten
ohne-makler.net - Immobilien selbst vermarkten
Nachricht hinzufügen
Mit der Nutzung der oben angegebenen Telefonnummer oder durch Klicken auf „Kontaktieren“ akzeptierst Du die Allgemeinen Nutzungsbedingungen, denen Du jederzeit widersprechen kannst. Weitere Informationen zum Datenschutz
MediumRectangleTop
MediumRectangleBottom
MediumRectangleTop
Wie zufrieden bist du mit dieser Seite (nicht mit der Immobilie selbst)?