

Wohnung zum Kauf - Erstbezug260000 €4.059 €/m²3 Zimmer • 64,1 m² • EG
260000 €
4.059 €/m²
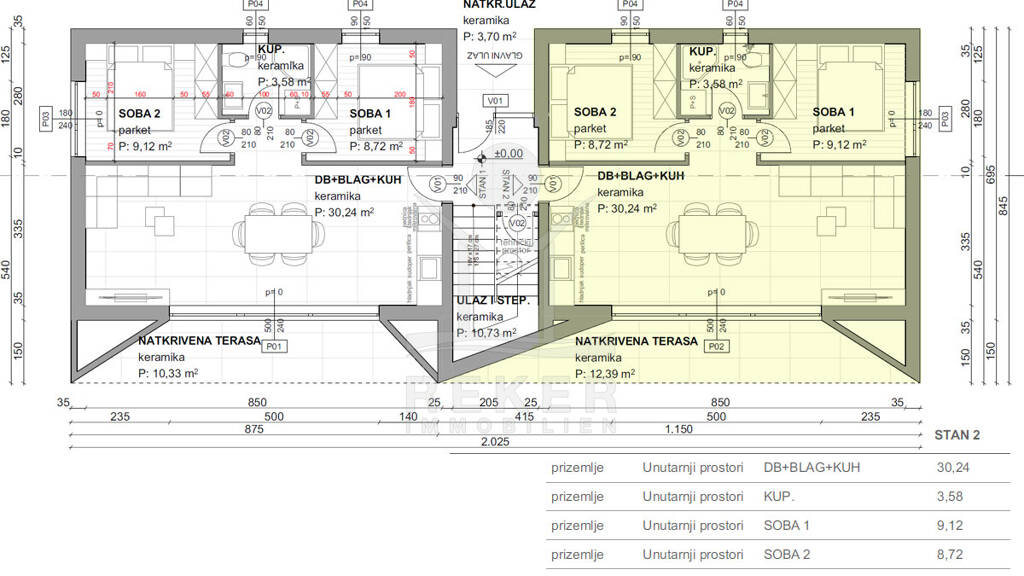
3 Zimmer • 64,1 m² • EG
Lebensqualität auf allen Ebenen: Moderne Neubauwohnung im Erdgeschoss auf Krk
Merkmale
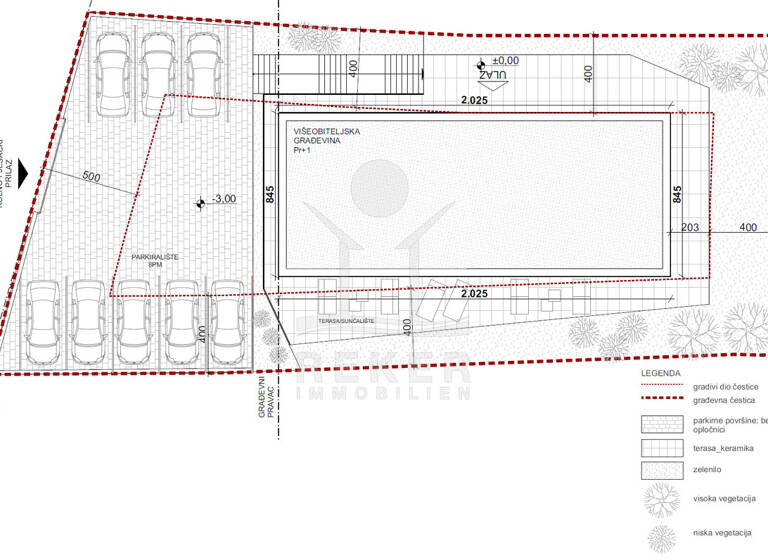
- Erdgeschoss
- 2 Stellplätze: 2 Außen-Stellplätze
- voll klimatisiert
Grundrisse
Grundrisse
1 / 1
Realisiere Dein Projekt
Bausubstanz und Energie
Möchtest du Details zum Energieverbrauch?

- Baujahr2024
- Zustand der ImmobilieErstbezug
Preisdetails
Kaufpreis
260000 €
4.059,33 €/m²
Provision für Käufer
3,75 % inkl. MwSt. in Kroatien
Weitere Preisinformationen
2 Stellplätze
Lage

Baska (51523)
Der Anbieter hat die genaue Adresse nicht freigegeben
Weitere Informationen
Weitere Services
Lust auf eine Besichtigung?
Eine Frage zur Immobilie?
Über den Anbieter
Micin Stanka 28 A, 22211 Vodice
Partnerschaft

Herr Heiner RekerDein Kontakt
Online-ID: 24I6NCLMQU5W
Referenznummer: 7470


Reker Immobilien Doo
Bewertung: 4,8 von 5 Sternen
Wie zufrieden bist du mit dieser Seite (nicht mit der Immobilie selbst)?

