Hier erwartet Sie eine seltene Gelegenheit im Herzen der historischen Altstadt von Esslingen.
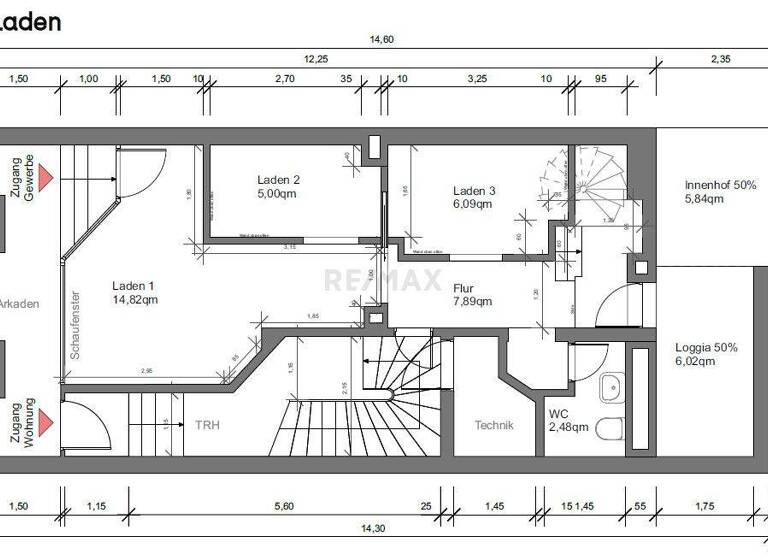
Die ca. 48,14 m² große Gewerbeeinheit im Erdgeschoss eines gepflegten Mehrfamilienhauses aus dem Jahr 1915 überzeugt durch ihren besonderen Charme und ihre vielseitigen Nutzungsmöglichkeiten. Ob als Büro, Atelier, Praxis oder kleiner Laden - der Grundriss bietet flexible Gestaltungsspielräume für individuelle Konzepte.
Die Einheit verfügt über einen separat zugänglichen Eingang und einen großzügigen Kellerraum, der zusätzlichen Stauraum oder Platz für Arbeitsmaterial bietet. Dank der zentralen Lage profitieren Sie von einer hohen Laufkundschaft, einem lebendigen Umfeld und der ausgezeichneten Anbindung an das städtische Geschehen.
Die Immobilie ist aktuell vermietet und eignet sich daher ideal als Kapitalanlage mit solider Rendite in einer der attraktivsten Lagen Esslingens.
Bitte beachten: Der Eigentümer wünscht keine direkte Kontaktaufnahme.
Dieses Angebot spricht Kapitalanleger und Unternehmer gleichermaßen an - ideal für alle, die eine repräsentative und werthaltige Gewerbefläche mitten in der Esslinger Altstadt suchen.
Merkmale
Einbauküche
Keller
Gäste-WC
Terrasse
Bodenbelag: Marmor
- Dach gedämmt - Gewerbeeinheit mit großem Keller
Grundrisse
Grundrisse
1 / 1
Realisiere Dein Projekt
Bausubstanz und Energie
Energieausweis
Endenergiebedarf (Wärme)
Baujahr1915
Zustand der ImmobilieGepflegt
EnergieträgerGas
Preisdetails
Kaufpreis
149000 €149.000 €
Provision für Käufer
4,76 % inkl. MwSt.
Weitere Preisinformationen
149.000 EUR
Geschätzte Gesamtkosten
156.092 €1
Kaufpreis
149.000 €
Kaufnebenkosten
7.092 €
2
Provision für Käufer (4,76%)
7.092 €
1Der angezeigte Wert ist eine automatisch berechnete Schätzung von immowelt.
2Bei den Angaben handelt es sich um ortsübliche Werte. Individuelle Kosten können abweichen.
Lage
Stadtmitte, Esslingen am Neckar (73728)
Der Anbieter hat die genaue Adresse nicht freigegeben
Die Immobilie befindet sich in absolut zentraler Innenstadtlage von Esslingen am Neckar direkt am Roßmarkt, einem historischen Platz mit urbanem Flair. Die Lage überzeugt durch ihre ausgezeichnete Infrastruktur, kurze Wege und ein hohes Maß an Lebensqualität.
Sämtliche Einrichtungen des täglichen Bedarfs wie Supermärkte, Bäckereien, Apotheken, Cafés und Restaurants befinden sich in unmittelbarer Umgebung und sind bequem zu Fuß erreichbar. Der nahegelegene Wochenmarkt auf dem Marktplatz bietet zusätzlich eine große Auswahl an frischen, regionalen Produkten.
Für Familien besonders attraktiv: Der nächste Kindergarten ist nur etwa 450?Meter entfernt, die Grundschule rund 600?Meter. Weiterführende Schulen wie das Schelztor-Gymnasium sind ebenfalls in weniger als 15 Gehminuten erreichbar. Auch die Hochschule Esslingen (Campus Stadtmitte) liegt in unmittelbarer Nähe - ideal für Studierende oder Mitarbeitende im Bildungsbereich.
Der Bahnhof Esslingen ist in wenigen Minuten fußläufig erreichbar und ermöglicht eine schnelle Anbindung nach Stuttgart und in die umliegenden Städte. Durch die Nähe zur B10 sowie zur B313 ist auch die Verkehrsanbindung mit dem Auto hervorragend.
Der Standort bietet die perfekte Kombination aus urbanem Leben, hervorragender Infrastruktur und kurzen Wegen - und das mitten in einer der schönsten Altstädte Baden-Württembergs.
Weitere Informationen
Sonstiges
Folgende Kosten sind im Kaufpreis nicht enthalten und vom Käufer zusätzlich zu entrichten: Notar- und Grundbuchkosten (ca. 2 %), Grunderwerbsteuer (5 %), und die mit der Finanzierung entstehenden Kosten. 4,76 % Maklerprovision inkl. gesetzlicher MwSt.. Ab dem Zeitpunkt der Übergabe hat der Käufer die Grundsteuer zu tragen. Irrtümer vorbehalten. Die Objektdaten beruhen auf Angaben und Unterlagen, die uns vom Veräußerer zur Verfügung gestellt wurden. Für inhaltliche Richtigkeit und Vollständigkeit übernehmen wir keine Haftung. Eine Weitergabe an Dritte ist nicht gestattet.
--- Verpassen Sie keine Immobilie mehr! Unser komplettes Immobilienangebot finden Sie immer zuerst auf www.remax.de Gerne helfen wir Ihnen auch beim Verkauf oder der Vermietung Ihrer Immobilie. Karriere bei REMAX? Infos: www.remax.de/karriere
Stichworte
Nutzfläche: 48,14 m², Grundstücksfläche: 93,00 m², Anzahl Terrassen: 1, Balkon-Terrassen-Fläche: 4,75 m², Bundesland: Baden-Württemberg, Distanz zum Kindergarten: 0.40, Distanz zur Grundschule: 0.60, Distanz zur Realschule: 1.20, Distanz zum Gymnasium: 1.20