

Lagerhalle zum Kauf1300000 €1.589 m² Lagerfläche
1300000 €
1.589 m² Lagerfläche
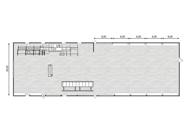
*Große Halle - bisherige Zimmerei - LKW Zufahrt und Deckenkran*
Merkmale
- frei ab 01.04.2026
- Laderampe
- LKW-Zufahrt
- Kran
- Bodenbelag: Estrich
Grundrisse
Grundrisse
1 / 3
Realisiere Dein Projekt
Bausubstanz und Energie
Energieausweis
- Baujahr1973
- Zustand der ImmobilieGepflegt
- EnergieträgerHolz
Preisdetails
Kaufpreis
1300000 €
Provision für Käufer
Die Maklerprovision beträgt 1,64% des beurkundeten Kaufpreises inkl. der gesetzlichen Mehrwertsteuer. Der Provisionsansspruch entsteht und wird mit Abschluss des notariellen Kaufvertrages/Beurkundung fällig.
Geschätzte Gesamtkosten
1.321.320 €1
Kaufpreis
1.300.000 €
Kaufnebenkosten
21.320 €
2Provision für Käufer (1,64%)
21.320 €
1Der angezeigte Wert ist eine automatisch berechnete Schätzung von immowelt.
2Bei den Angaben handelt es sich um ortsübliche Werte. Individuelle Kosten können abweichen.
Lage

Garching, Garching a d Alz (84518)
Der Anbieter hat die genaue Adresse nicht freigegeben
Weitere Informationen
Weitere Services
Lust auf eine Besichtigung?
Eine Frage zur Immobilie?
Über den Anbieter
KRAUSE ImmobilienMaklerbüro
Gramanstraße 54B, 84518 Wald a. d. Alz
Partnerschaft

Herr Swen Peter KrauseDein Kontakt
Weitere Unterlagen
Online-ID: 2mqzc5a
Referenznummer: 129


KRAUSE Immobilien
Bewertung: 5 von 5 Sternen
Wie zufrieden bist du mit dieser Seite (nicht mit der Immobilie selbst)?

