Version: 8.24.0Navigation überspringen
250.000 €
4 Zimmer  •  96,8 m²  •  1. Geschoss
Immowelt logo

Wohnung zum Kauf
250000 €
2.582 €/m²
4 Zimmer  •  96,8 m²  •  1. Geschoss

Kapitalanleger gesucht - Ihr Mieter ist schon da! Berenbostel, 4-Zi-ETW, 1. OG, Tageslichtbad, Gä-WC, Westbalkon, PKW-Stellplatz

Diese 4-Zimmer-Eigentumswohnung befindet sich in einem 6-Parteienhaus im 1. Obergeschoss mit großer Loggia.
Gesucht wird ein Kapitalanleger, da die Wohnung vermietet ist.
Die Wohnung ist sehr gepflegt und gut geschnitten. Im Wohnbereich ist Laminat verlegt und in Küche und Bad sind Fliesen. Die Wohnung verfügt über ein Tageslicht-Dusch-Wannenbad und einem Gäste-WC. Der große Balkon ist zum Westen ausgerichtet.
Der Waschmaschinenanschluß befindet sich im Wäschekeller.
Das Hausgeld beläuft sich auf monatlich 340,00 € inkl. der Instandthaltungsrücklage in Höhe von 61,47 €.
Zur Wohnung gehört ein PKW-Stellplatz, der sich am Haus befindet..

Merkmale

  • Bezug: nach Vereinbarung
  • 1. Geschoss
  • Außen-Stellplatz
Einbauküche
Tageslicht-Dusch-Wannenbad
Gäste-WC
große Loggia mit Markise
großer Kellerraum mit ca. 24 m²
gemeinschaftl. Nutzung von Fahrradkeller, Waschmaschinen- u. Trockenkeller
PKW Stellplatz am Haus
2009 Heizkörper erneuert
2009 Bäder neu gefliest und Sanitärobjekte neu
2022 Fenster im Bad erneuert
2015 Heizung erneuert

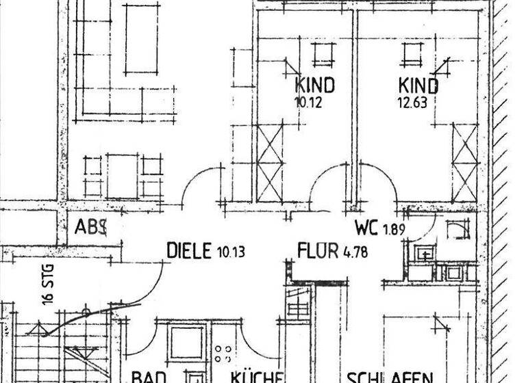
Grundrisse

Grundrisse
1 / 1

Realisiere Dein Projekt

Bausubstanz und Energie

Energieausweis

C
  • Baujahr1982
  • Zustand der ImmobilieGepflegt
  • HeizungsartZentralheizung
  • EnergieträgerGas
Immowelt logo

Preisdetails

Kaufpreis
250000 €
2.582,38 €/m²
Hausgeld
340 €
Provision für Käufer
3,57 % inkl. MwSt. Zahlbar von Verkäufer und Käufer nach § 656c BGB
Weitere Preisinformationen
1 Stellplatz
Geschätzte Gesamtkosten
276.425 €1
Kaufpreis
250.000 €
Notarkosten (1,5%)
3.750 €
Grunderwerbsteuer (5%)
12.500 €
Provision für Käufer (3,57%)
8.925 €
Grundbucheintrag (0,5%)
1.250 €
1Der angezeigte Wert ist eine automatisch berechnete Schätzung von immowelt.
2Bei den Angaben handelt es sich um ortsübliche Werte. Individuelle Kosten können abweichen.

Lage

address-icon
BerenbostelGarbsen (30827)
Der Anbieter hat die genaue Adresse nicht freigegeben
Diese Wohnung liegt in einer ruhigen Seitenstraße in Berenbostel. In wenigen Minuten erreichen Sie die Bushaltestellen und mit dem Auto sind Sie in wenigen Minuten auf der B6 mit Anschluss zur A2/A7. Von Berenbostel bis zum Zentrum von Hannover sind es ungefähr 18 km. Fußläufig sind Sie in wenigen Minuten im Ortskern von Berenbostel. Einkaufsmöglichkeiten des täglichen Bedarfs, Arztpraxen und Apotheken, Kindergärten und Schulen sowie Freizeiteinrichtungen sind hier gegeben.

Weitere Informationen

Sonstiges Durch schriftliche Vereinbarung oder Inanspruchnahme unserer Maklertätigkeit kommt der Makler-Vertrag zustande. 3,57 % Käufer-Provision inkl. MwSt. vom beurkundeten Kaufpreis, verdient und fällig mit notarieller Beurkundung des Kaufvertrages. Wir haben einen provisionspflichtigen Maklervertrag in gleicher Höhe mit dem Verkäufer abgeschlossen (§656c BGB).

Haben wir Ihr Interesse geweckt? Dann bewerben Sie sich auf dieses Objekt und stellen uns über das Kontaktformular eine Anfrage und fordern für weitere Details das Exposé an.
Bitte geben Sie nachfolgende Identifikationsmerkmale bekannt:

? vollständiger Vor- und Zuname
? aktuelle Anschrift
? aktuelle Telefonnummer
? aktuelle E-Mail-Anschrift

Sofern ein Identifikationsmerkmal nicht hinterlegt ist, geben wir keine Gewähr für eine Übersendung eines Exposés.
Nach Ihrer Durchsicht des Exposés kontaktieren Sie uns bitte erneut für einen Besichtigungstermin. Stichworte Nutzfläche: 23,60 m², Anzahl der Schlafzimmer: 3, Anzahl der Badezimmer: 1, Anzahl der separaten WCs: 1, 2 Etagen

Weitere Services

Lust auf eine Besichtigung?
Eine Frage zur Immobilie?
Nachricht hinzufügen
Mit der Nutzung der oben angegebenen Telefonnummer oder durch Klicken auf „Kontaktieren“ akzeptierst Du die Allgemeinen Nutzungsbedingungen, denen Du jederzeit widersprechen kannst. Weitere Informationen zum Datenschutz

Über den Anbieter

Rote Reihe 18, 30827 Garbsen
partner badge
Partnerschaft
Herr Henning-F. Sander
Herr Henning-F. SanderDein Kontakt
Online-ID: 2netm5b
Referenznummer: 450
HS - Immobilien, Inh. Henning-F. Sander
title
HS - Immobilien, Inh. Henning-F. Sander
Nachricht hinzufügen
Mit der Nutzung der oben angegebenen Telefonnummer oder durch Klicken auf „Kontaktieren“ akzeptierst Du die Allgemeinen Nutzungsbedingungen, denen Du jederzeit widersprechen kannst. Weitere Informationen zum Datenschutz
Wie zufrieden bist du mit dieser Seite (nicht mit der Immobilie selbst)?