

Bürofläche zur MieteMietkosten auf Anfrage
Mietkosten auf Anfrage
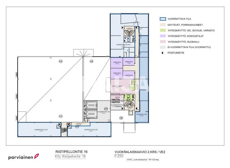
Ristipellontie 16
Grundrisse
Grundrisse
1 / 1
Realisiere Dein Projekt
Bausubstanz und Energie
Möchtest du Details zum Energieverbrauch?

- Baujahr1973
Mietkosten
Miete auf Anfrage
Heizkosten
in Warmmiete enthalten
Provision für Mieter
Bitte beachte, das Angebot beinhaltet bei Vertragsabschluss die Zahlung einer Provision. Weitere Informationen erhältst Du vom Anbieter.
Kaution
keine Angabe
Lage

Helsinki (00390)
Der Anbieter hat die genaue Adresse nicht freigegeben
Weitere Informationen
Weitere Services
Lust auf eine Besichtigung?
Eine Frage zur Immobilie?
Online-ID: 23JK7DMVXQDS
Referenznummer: 629538
maija.io
Wie zufrieden bist du mit dieser Seite (nicht mit der Immobilie selbst)?