

Wohnung zur Miete898 €2 Zimmer • 76 m² • 2. Geschoss
898 €
2 Zimmer • 76 m² • 2. Geschoss
Großzügige 2-Zimmer-Wohnung in ruhiger Lage mit 22 m² Südbalkon
Merkmale
- Bezug: ab sofort
- 2. Geschoss
- Einbauküche
- Personenaufzug
- Balkon
- Badewanne
- Bodenbelag: Fliesen, Parkett
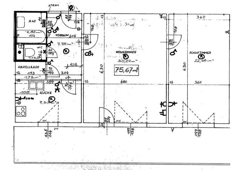
Grundrisse
Grundrisse
1 / 1
Virtueller Rundgang
3D tour

Realisiere Dein Projekt
Bausubstanz und Energie
Heizwärmebedarf (HWB)
C
Gesamtenergieeffizienz (fGEE)
C
- Baujahr1970
- Zustand der ImmobilieNeubau, Massivhaus, Gepflegt
- HeizungsartZentralheizung
- EnergieträgerGas
Mietkosten
Gesamtmiete
1.290,73 €
Nettokaltmiete
14,03 €/m²
898,15 €
Betriebskosten
168,36 €
Heizkosten
101,99 €
Kaution
3 Bruttomonatsmieten
Weitere Preisinformationen
Nettokaltmiete: 898,15 EUR
Lage

Wien (1140)
Weitere Informationen
Weitere Services
Lust auf eine Besichtigung?
Eine Frage zur Immobilie?
Über den Anbieter
WOLF & SOHN Immobilien GmbHMaklerbüro
Herbeckstrasse 57/4, 1180 WIEN
Partnerschaft
Herr Amir Oliver TarabDein Kontakt
Online-ID: 2nynl5h
Referenznummer: OBGC202602122102245970c779355f4
WOLF & SOHN Immobilien GmbH
Wie zufrieden bist du mit dieser Seite (nicht mit der Immobilie selbst)?

