Moderne 3-Zimmer-Wohnung mit Terrasse und offenem Wohnkonzept
Zur Vermietung steht diese attraktive 3-Zimmer-Wohnung im Erdgeschoss mit eigenem Eingang eines hochwertigen Neubau-Mehrfamilienhauses mit insgesamt 7 Wohneinheiten. Das Gebäude wird nach dem zukunftsorientierten Effizienzhaus-Standard 40 QNG errichtet und überzeugt durch nachhaltige Bauweise sowie moderne Energietechnik.
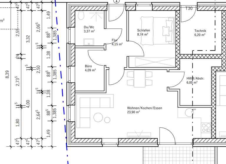
Die Wohnung bietet auf ca. 54,40 m² eine durchdachte und effiziente Raumaufteilung. Über einen kompakten Flur sind alle Räume bequem erreichbar. Das helle Wohn- und Esszimmer (inkl. Einbauküche) bildet mit rund 23,90 m² das Herzstück der Wohnung und bietet direkten Zugang zur sonnigen Südwest-Terrasse – ideal für entspannte Nachmittage und Abendstunden.
Neben einem gemütlichen Schlafzimmer verfügt die Wohnung über ein zusätzliches kleines Büro, das sich hervorragend für Homeoffice oder als Gästezimmer eignet. Das moderne Badezimmer ist mit einer Dusche sowie einem Fenster ausgestattet und sorgt für eine angenehme Atmosphäre. Ein separater Hauswirtschaftsraum mit Anschluss für eine Waschmaschine und zusätzlichen Stauraum rundet das Angebot ab.
Dank moderner Luft-/Wasser-Wärmepumpe, hochwertiger Dämmung und Photovoltaikanlage profitieren Sie von niedrigen Energiekosten und einem nachhaltigen Wohnkonzept.
Ausstattung & Highlights:
Neubau / Erstbezug
Effizienzhaus 40 QNG
Südwest-Terrasse
Helles Wohn-/Esszimmer (inkl. Einbauküche)
Separates Büro (ideal für Homeoffice)
Modernes Bad mit Fenster und Dusche
Hauswirtschaftsraum mit Waschmaschinenanschluss
Nachhaltige Heiztechnik (Wärmepumpe + PV-Anlage)
Merkmale
frei ab 01.05.2026
Einbauküche, offene Küche
Außen-Stellplatz
1 WC
Garten
Terrasse
Badezimmer: Bad mit Dusche, Bad mit Fenster
Grundrisse
Grundrisse
1 / 1
Realisiere Dein Projekt
Bausubstanz und Energie
Energieausweis
Der Anbieter hat keine Daten zum Energieausweis hinterlegt.
Baujahr2025
Zustand der ImmobilieErstbezug
HeizungsartFußbodenheizung
EnergieträgerLuft-/Wasser-Wärmepumpe
Mietkosten
Warmmiete
925 €
Kaltmiete
15,17 €/m²
825 €
Nebenkosten
100 €
Heizkosten
in Nebenkosten enthalten
Miete pro Stellplatz
in Warmmiete enthalten
Kaution
1650 €1.650 €
Lage
Banater Weg 31, Bürgerfelde, Oldenburg (26127)
Die Wohnung liegt in ruhiger Wohnlage im Oldenburger Stadtteil Bürgerfelde. Der Banater Weg ist eine verkehrsarme Nebenstraße und bietet ein entspanntes Wohnumfeld.
Einkaufsmöglichkeiten, Bäcker und weitere Einrichtungen des täglichen Bedarfs sind schnell erreichbar. Eine gute Anbindung an den öffentlichen Nahverkehr ermöglicht zudem eine zügige Verbindung in die Oldenburger Innenstadt.
Naherholungsgebiete wie der Bürgerbusch befinden sich in der Nähe und laden zu Spaziergängen und Freizeitaktivitäten im Grünen ein.