Version: 8.24.1Navigation überspringen
6.500 €
1.371 m² Lagerfläche
Immowelt logo

Produktionshalle zur Miete
6.500 €
1.371 m² Lagerfläche

VH3866 Kühlhalle mit Büroanbau und Freifläche / Burglengenfeld

Kurzbeschreibung Gerne stehen wir für eine Besichtigung zur Verfügung. Objekt Das verkehrsgünstig gelegene Anwesen zur Vermietung oder Verkauf befindet sich in einem Gewerbegebiet ca. 25 km nördlich von Regensburg. Über die nahe gelegene Autobahn A 93 ist eine gute Verkehrsanbindung gegeben.

Das Gewerbeanwesen befindet sich auf einem eingezäunten Grundstück mit Ausbaureserve. Es besteht aus einer Halle mit Büroanbau. Die Halle ist gut gedämmt, sodass eine Verarbeitung von Nahrungsmitteln möglich ist.

Die ca. 6 bis 8 m hohe Halle ist in verschiedene Bereiche mit unterschiedlichen Kältestufen von 4 bis 10 °C unterteilt. Eine Umgestaltung ist möglich. Der Betonboden ist beschichtet. Zur Belieferung steht derzeit eine Laderampe mit vier erneuerten Sektionaltoren mit ca. 3 x 3 m zur Verfügung. Im Techniklager befindet sich ein weiteres Sektionaltor. Über der Werkstatt befindet sich ein Kleinteilelager.

Der Büro- und Sozialtrakt wird mit einer Gaszentralheizung beheizt und ist mit Vinyl und Fliesen ausgelegt. Auf jedem Stockwerk ist eine WC-Anlage installiert. Im Keller befinden sich die Umkleiden und Funktionsräume. Im Erdgeschoss sind das Büro, der Aufenthaltsraum, das Produktionsbüro mit Vorraum, der auch gleichzeitig als Durchgang in die Halle dient. Die Verkabelung verläuft in Brüstungskanälen. Im Obergeschoss befinden sich Büros. In den abgehängten Decken sind Leuchten integriert und die Verkabelung erfolgt über Bodentanks.

Der Eigentümer ist bei einem langfristigen Mietvertrag bereit weitere Hallen zu errichten.

Bei Abschluss eines Mietvertrags besteht die Möglichkeit der Einräumung einer Kaufoption.

Auf dem Gelände befinden viele Stellplätze.

Gerne besichtigen wir mir Ihnen dieses multifunktionale Gewerbeanwesen.

Merkmale

  • Bezug: sofort
  • 7.500 m² Grundstück
  • Keller
  • 20 Stellplätze
  • Laderampe
  • LKW-Zufahrt
  • Bodenbelag: Fliesen
Lage: Burglengenfeld
Mietpreis: EUR 6.500,-
Nebenkosten: EUR 2.000,-
Fläche: ca. 1.371 m²
Grundstück: ca. 7.500 m²
Baujahr: 1990
Kaution: EUR 19.500,-
Geschoss(e): EG
Bezug: sofort
teilbar ab: nein
Hallenhöhe: ca. 8 m
Stellplatzanzahl: ca. 20
Stellplatzpreis: EUR 0,-
Lastenaufzug: nein
Kranbahn: nein
Fußweg zum RVV: 5 min.
Fahrtzeit Bahnhof: 15 min.
Fahrtzeit Autobahn: 10 min.
Fahrtzeit Flughafen: 85 min.
Objekttyp: Industriehalle mit Freifläche
Zustand: gepflegt
Ausstattung: normal
Bodenbelag: Fliesen
Heizung: Gas-Heizung
Energieausweis Art: keine Angabe
Energieträger: Gas
Starkstrom: ja
Keller: ja
kurzfristig bebaubar: ja
Rampe: ja

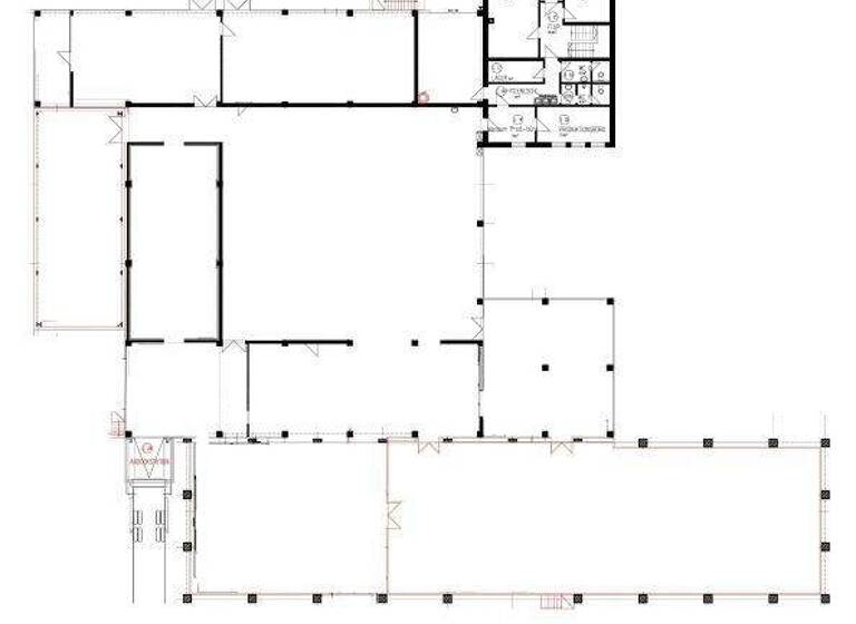
Grundrisse

Grundrisse
1 / 2

Realisiere Dein Projekt

Bausubstanz und Energie

Der Anbieter hat keine Informationen zum Energieverbrauch bereit gestellt.
  • Baujahr1990
  • Zustand der ImmobilieGepflegt
  • EnergieträgerGas
Immowelt logo

Mietkosten

Nettomiete
6.500 €
Nebenkosten
2.000 €
Provision für Mieter
Ortsübliche Provision vom Käufer/Mieter nur im Erfolgsfalle
Kaution
19.500,00 Soweit nicht anders erwähnt 3 Monatsmieten
Weitere Preisinformationen
Nettokaltmiete: 6.500,00 EUR

Lage

address-icon
PonholzMaxhütte-Haidhof (93142)
Der Anbieter hat die genaue Adresse nicht freigegeben
Burglengenfeld

Weitere Informationen

Sonstiges Um eine schnelle Bearbeitung zu gewähren benötigen wir Ihre Telefonnummer sowie Ihre komplette Adresse. Stichworte Lagerfläche: 1.371,00 m², Nutzfläche: 1.371,00 m², Gesamtfläche: 7.500,00 m², Freifläche: 6.129,00 m², Bundesland: Bayern, Distanz zur Autobahn: 5, Distanz zum Bus: .5, Distanz zum Hauptbahnhof: 7, Distanz zum Flughafen: 100

Weitere Services

Lust auf eine Besichtigung?
Eine Frage zur Immobilie?
Nachricht hinzufügen
Mit der Nutzung der oben angegebenen Telefonnummer oder durch Klicken auf „Kontaktieren“ akzeptierst Du die Allgemeinen Nutzungsbedingungen, denen Du jederzeit widersprechen kannst. Weitere Informationen zum Datenschutz

Über den Anbieter

Nußbergerstr. 6, 93059 Regensburg
partner badge
Partnerschaft
Herr Roland TrummerDein Kontakt
Online-ID: 2nq7x5r
Referenznummer: VH 3866
Trummer Immobilien GmbH & Co. KG
Trummer Immobilien GmbH & Co. KG
Bewertung: 4,5 von 5 Sternen
Nachricht hinzufügen
Mit der Nutzung der oben angegebenen Telefonnummer oder durch Klicken auf „Kontaktieren“ akzeptierst Du die Allgemeinen Nutzungsbedingungen, denen Du jederzeit widersprechen kannst. Weitere Informationen zum Datenschutz
Wie zufrieden bist du mit dieser Seite (nicht mit der Immobilie selbst)?