Zagreb, Dedici, Vierzimmer-Penthouse in moderner Neubau, 162,88 m²
Ich präsentiere Ihnen das exklusive Projekt Novogradnja Dedici, eine Kombination aus hochwertiger Architektur, Premium-Materialien und modernen Technologien, gelegen in einer der prestigeträchtigsten Lagen unterhalb des Medvednica-Gebirges. Das Projekt besteht aus 4 Etagen und insgesamt 5 luxuriösen Wohneinheiten, und jedes Detail wurde nach höchsten Qualitäts- und Sicherheitsstandards gebaut.
Bauqualität und Ausstattung:
Dieser Neubau bietet erstklassige AusfĂĽhrung und modernste Systeme:
- Stahlbetonkonstruktion mit hohen erdbebensicheren Standards
- Fußbodenheizung in der gesamten Wohnung über Wärmepumpe
- Smart-Home-System zur Steuerung von Beleuchtung, Rollläden, Heizung und Sicherheitsfunktionen
- ALU-Fenster mit dreischichtigem Isolierglas
- elektrische Rollläden
- Sanitär und Ausstattung von erstklassigen Herstellern
- außergewöhnliche Energieeffizienz - Klasse A
Die sorgfältig geplante Architektur des Außen- und Innenbereichs, in Zusammenarbeit mit einem professionellen Designteam, verleiht diesem Gebäude Eleganz und Raffinesse, sichtbar in jedem Detail.
Dieses luxuriöse Penthouse hebt sich deutlich ab, da der Raum voller Tageslicht ist, mit offenem Blick auf die Natur unterhalb der Medvednica sowie Blick auf das Schloss Kulmer, was einen besonderen Charme und Prestige verleiht.
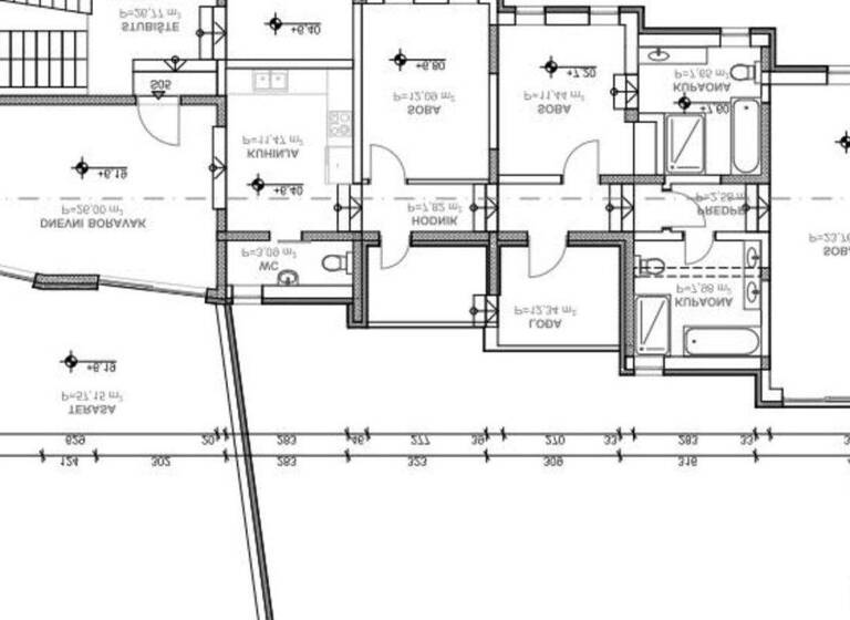
Grundriss und Aufteilung:
- Eingang: 21,19 m²
- Flur: 9 m²
- Schlafzimmer 1: 12,09 m²
- Schlafzimmer 2: 11,20 m²
- Master-Schlafzimmer: 23,85 m²
- Badezimmer 1: 7,65 m²
- Badezimmer 2: 7,98 m²
- WC: 3,09 m²
- Wohnzimmer + Esszimmer: 26 m²
- Küche: 17,20 m²
- Loggia 1: 3,90 m² (berechnet)
- Loggia 2: 5,44 m² (berechnet)
- Terrasse: 14,29 m² (berechnet)
Gesamtberechnete Fläche: 162,88 m²
Zum Apartment ist es verpflichtend, zwei Garagen zu kaufen
jede für 25.000 €
Zur Wohnung gehört außerdem ein Abstellraum, was die Funktionalität zusätzlich erhöht.
Dies ist eine der gefragtesten Lagen in Zagreb, in der Nähe der British International School, eines Gymnasiums, einer Grundschule und eines Kindergartens. In der Nähe befinden sich Parks und Grünflächen, die Kirche Sestine sowie verschiedene Geschäfte und Cafés. Besonders wichtig ist hervorzuheben, dass das Stadtzentrum nur 12 Minuten mit dem Auto vom Britanac entfernt ist, was diese Lage ideal für alle macht, die Natur und Stadtnähe kombinieren möchten.
FĂĽr alle weiteren Fragen und eine Besichtigung der Imilie stehen wir Ihnen zur VerfĂĽgung.
Im Falle eines Vermittlungsgeschäfts über unsere Agentur besteht die Verpflichtung zur Zahlung der Maklerprovision.
Hier geht's zum "Wohnen am MEER" - www.k3-immo.eu