Version: 8.25.1Navigation überspringen
6,50 €
79 m² Bürofläche  •  teilbar ab 79 m²
Immowelt logo

Bürofläche zur Miete • provisionsfrei
6,50 €
/m²
79 m² Bürofläche  •  teilbar ab 79 m²

BUERO.flächen nahe des Schkeuditzer Kreuz/Flughafen

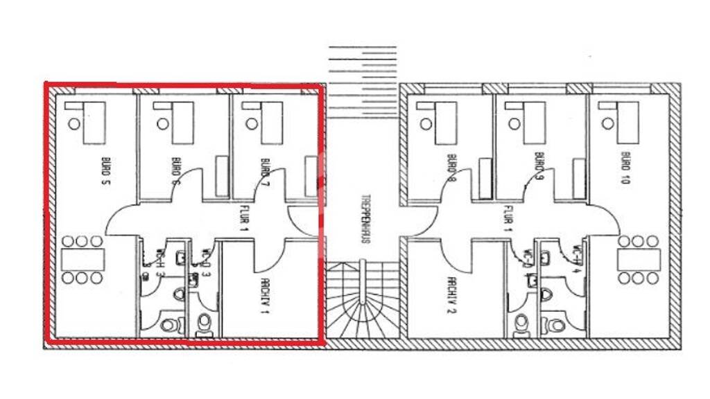
Die 1992/93 errichteten zweigeschossigen kleineren Bürogebäude mit jeweils 316 m² setzen sich aus 4 Einheiten mit je ca. 79,00 m² zusammen. Die Mietbereiche können entsprechend des benötigten Raumprofils ausgebaut und ausgestattet werden. Die Einheiten im Erdgeschoss haben eine Verbindung zu den Hallenflächen. Das Hauptgebäude verfügt insgesamt über 1.500 m² Mietfläche.

Die Büroflächen verfügen über folgende Ausstattungsmerkmale:
- DSL Anschluss
- Teeküchen und gefliester Sanitärbereich
- elektrischer Sonnenschutz in allen Büroräumen der Süd- und Westseite
- stuhlrollenfeste Teppichböden

Vor dem Gebäude stehen zahlreiche Stellplätze zur Anmietung Verfügung.

Grundrisse

Verschaffe dir einen genauen Überblick über die Raumaufteilung.selection_property_house-icon

Realisiere Dein Projekt

Bausubstanz und Energie

Möchtest du Details zum Energieverbrauch?info_energy_calculation-icon
Immowelt logo

Mietkosten

Monatliche Miete
6,50 €/m²
Heizkosten
in Warmmiete enthalten
Provision für Mieter
provisionsfrei
Kaution
3,0 Nettomonatsmieten

Lage

address-icon
Junkerstraße 1FreirodaSchkeuditz (04435)
Das ''Gewerbegebiet Glesien'' befindet sich in einem neu errichteten Gewerbegebiet am Flughafen Leipzig/Halle, ca. 1km nördlich der Flughafenlandebahn mit direkter Anbindung an das Autobahnkreuz A9/A14 (Schkeuditzer Kreuz). Dieser Standort eignet sich als hervorragender Verkehrsknotenpunkt für die Erschließung der Region Mitteldeutschlands. Nahe des Güterverkehrszentrum, der Werke von BMW und Porsche und des DHL-Frachtzentrums am Flughafen gelegen, ist dies auch ein idealer Standort für Logistikunternehmen und Automobilzulieferindustrie.

Weitere Informationen

Sonstiges Der Mietpreis liegt ca. zwischen 6,50EUR/m² - 8,50EUR/m² zzgl. Nebenkosten und richtet sich nach Mietvertragslaufzeit, Ausstattungsmerkmalen und Lage im Gebäude. Gern unterbreiten wir Ihnen Ihr persönliches Mietangebot.

Büroanmietung leicht gemacht?
Bitte sprechen Sie uns an, gern stellen wir Ihnen eine Auswahl geeigneter Büroflächenangebote zusammen. Für Fragen, ein persönliches Gespräch oder eine persönliche Terminvereinbarung stehen wir Ihnen gern telefonisch unter 0341-5643000 zur Verfügung.

Weitere Services

Lust auf eine Besichtigung?
Eine Frage zur Immobilie?
Mit einer persönlichen Nachricht hast du bessere Chancen auf eine Antwort.
Mit der Nutzung der oben angegebenen Telefonnummer oder durch Klicken auf „Kontaktieren“ akzeptierst Du die Allgemeinen Nutzungsbedingungen, denen Du jederzeit widersprechen kannst. Weitere Informationen zum Datenschutz

Über den Anbieter

Markt 9, 04109 Leipzig
Frau Kathrin Oldenburg
Frau Kathrin OldenburgDein Kontakt
Online-ID: 259KT963Z6DY
Referenznummer: 227/G5/E2/Eh1
BUERO.IMMOBILIEN Leipzig GmbH & Co. KG
title
BUERO.IMMOBILIEN Leipzig GmbH & Co. KG
Mit einer persönlichen Nachricht hast du bessere Chancen auf eine Antwort.
Mit der Nutzung der oben angegebenen Telefonnummer oder durch Klicken auf „Kontaktieren“ akzeptierst Du die Allgemeinen Nutzungsbedingungen, denen Du jederzeit widersprechen kannst. Weitere Informationen zum Datenschutz
Wie zufrieden bist du mit dieser Seite (nicht mit der Immobilie selbst)?