




Wohnung zum Kauf3190000 €17.432 €/m²5 Zimmer • 183 m²
3190000 €
17.432 €/m²
5 Zimmer • 183 m²
Moderne Wohnung über fünf Etagen im Herzen der Maxvorstadt und in ruhiger Hoflage
Merkmale
- Bezug: nach Vereinbarung
- Einbauküche
- Kelleranteil
- 2 Stellplätze: 2 Tiefgaragenstellplätze
- Gäste-WC
- Balkon
- Terrasse
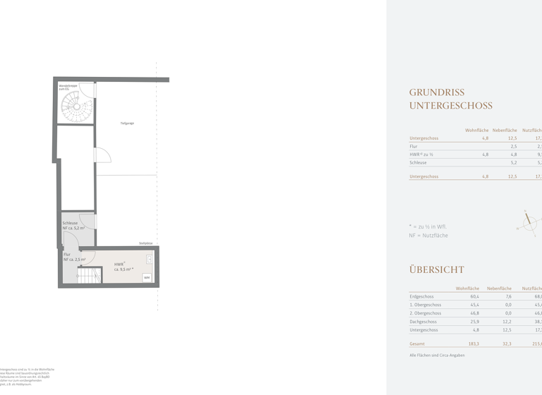
Grundrisse
Grundrisse
1 / 5
Realisiere Dein Projekt
Bausubstanz und Energie
Energieausweis
C
- Baujahr2012
- Zustand der ImmobilieGepflegt
- HeizungsartFußbodenheizung
- EnergieträgerFernwärme
Preisdetails
Kaufpreis
3190000 €
17.431,69 €/m²
Preis pro Stellplatz
100000 €
Provision für Käufer
2,38 % inkl. MwSt. aus dem Kaufpreis
Weitere Preisinformationen
2 Tiefgaragenstellplätze, Kaufpreis je: 100.000,00 EUR
Geschätzte Gesamtkosten
3.441.372 €1
Kaufpreis
3.190.000 €
Kaufnebenkosten
251.372 €
2Notarkosten (1,5%)
47.850 €
Grunderwerbsteuer (3,5%)
111.650 €
Provision für Käufer (2,38%)
75.922 €
Grundbucheintrag (0,5%)
15.950 €
1Der angezeigte Wert ist eine automatisch berechnete Schätzung von immowelt.
2Bei den Angaben handelt es sich um ortsübliche Werte. Individuelle Kosten können abweichen.
Lage

Maxvorstadt, München (80333)
Der Anbieter hat die genaue Adresse nicht freigegeben
Weitere Informationen
Weitere Services
Lust auf eine Besichtigung?
Eine Frage zur Immobilie?
Über den Anbieter
RIEDEL Immobilien GmbHMaklerbüro
Tizianstraße 50, 80638 München
Partnerschaft

Frau Kristina HofmannDein Kontakt
Online-ID: 2mmwa59
Referenznummer: ETW 3637


RIEDEL Immobilien GmbH
Bewertung: 4,3 von 5 Sternen
Wie zufrieden bist du mit dieser Seite (nicht mit der Immobilie selbst)?

