

Wohnung zur Miete800 €4 Zimmer • 121 m² • 2. Geschoss
800 €
4 Zimmer • 121 m² • 2. Geschoss
Stillvolle, lichtdurchflutete 4-Raumwohnung mit EBK in Dessau-Nord
Merkmale
- Bezug: ab Mai 2026
- 2. Geschoss
- Einbauküche
- Keller
- Gartenmitbenutzung
- Badezimmer: Badewanne, Bad mit Dusche, Bad mit Fenster
- Bodenbelag: Fliesen, Laminat
- Reinigungsservice
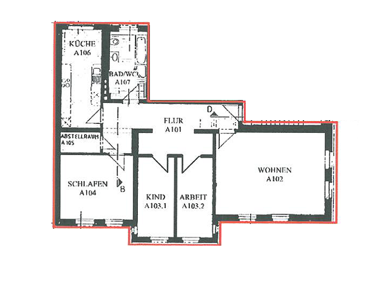
Grundrisse
Grundrisse
1 / 1
Realisiere Dein Projekt
Bausubstanz und Energie
Energieausweis
D
- Baujahr1995
- HeizungsartZentralheizung
- EnergieträgerGas
Mietkosten
Warmmiete
1.160 €
Kaltmiete
6,61 €/m²
800 €
Nebenkosten
360 €
Heizkosten
in Nebenkosten enthalten
Kaution
3 Kaltmieten
Lage

Goethestraße 7, Innenstadt, Dessau-Roßlau (06844)
Weitere Informationen
Weitere Services
Lust auf eine Besichtigung?
Eine Frage zur Immobilie?
Über den Anbieter
Albrechtstr. 11, 06844 Dessau
3 Jahre Partnerschaft + Diamond Partner
Frau Anja GurbandtDein Kontakt
Weitere Unterlagen
Online-ID: 264JUY9H8UQ9
Referenznummer: 12657-03
HuB Hausverwaltung und Immobilienbetreuung GmbH
Wie zufrieden bist du mit dieser Seite (nicht mit der Immobilie selbst)?

