Version: 8.25.2Navigation überspringen
1.100.000 €
12 Zimmer  •  380 m² Bürofläche
Immowelt logo

Bürogebäude zum Kauf
1100000 €
12 Zimmer  •  380 m² Bürofläche

IB3933 Bürohaus in ruhiger Lage / Bad Abbach

Kurzbeschreibung Gerne stehen wir für eine Besichtigung zur Verfügung. Objekt Das zum Verkauf stehende Bürohaus befindet sich in ruhiger Lage in einem Gewerbegebiet in Bad Abbach. Eine Bushaltestelle ist vorhanden. Durch die nahegelegene Autobahn A 93 und die Bundesstraße B 15 besteht eine hervorragende Anbindung an Regensburg.

Das Haus wird mit einer Gaszentralheizung beheizt. Das Erdgeschoss wurde vom Eigentümer gewerblich genutzt und die beiden Einheiten im Obergeschoss sind als Wohnung vermietet. Es ist eine Fußbodenheizung vorhanden und komplett gefliest. Ein DSL-Anschluss ist mit bis zu 1000 Mbit/s möglich.

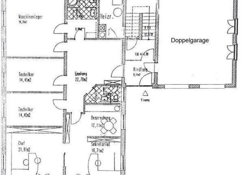
Im Erdgeschoss ist über den Windfang die Einheit 1 sowie auch die Doppelgarage, welche etwas größer als genehmigt errichtet wurde, erreichbar. Vom Empfang sind nahezu alle Büros aus erreichbar. Vom Sekretariat war über eine mobile Stellwand ein Besprechungszimmer mit Küchenzeile abgetrennt. Das Sekretariat und das Chefbüro haben Zugang zur sonnigen Südterrasse. Das Bad ist mit Wanne, Waschbecken, Bidet und WC ausgestattet, ein weiteres WC ist vorhanden.

Im Obergeschoss befinden sich zwei zu Wohnungen umgebaute Einheiten. Die umgebaute 5-Zimmerwohnung hat einen Abgang in den Westgarten. Die Teeküche mit nebenliegender Abstellkammer wurde in eine Kochküche umgebaut. Das Bad ist mit Wanne, Waschbecken und WC ausgestattet. Das umgebaute Appartement über der Garage verfügt über ein großes Wohnzimmer, Schlafzimmer und eine Küche mit angrenzendem Duschbad.

Merkmale

  • Bezug: sofort
  • Einbauküche
  • Bodenbelag: Fliesen
  • 7 Stellplätze
Lage: Bad Abbach
Kaufpreis: EUR 1.100.000,-
Fläche: ca. 380 m²
Grundstück: ca. 1154 m²
Lageart: sonstiges
Zimmeranzahl: 12
Baujahr: 2003
Geschoss(e): E + 1
Bezug: sofort
teilbar ab: nein
Stellplatzanzahl: 7
Stellplatzpreis: EUR 0,-
Fußweg zum RVV: 5 min.
Fahrtzeit Bahnhof: 5 min.
Fahrtzeit Autobahn: 5 min.
Fahrtzeit Flughafen: 60 min.
Objekttyp: Bürohaus
Zustand: renoviert
Ausstattung: normal
Bodenbelag: Fliesen
Heizung: Gas-Heizung
Energieausweis Art: keine Angabe
Energieträger: Gas
DV-Verkabelung: ja
Einbauküche: ja

Grundrisse

Grundrisse
1 / 2

Bausubstanz und Energie

Möchtest du Details zum Energieverbrauch?info_energy_calculation-icon
  • Baujahr2003
  • Zustand der Immobilierenoviert / saniert
  • EnergieträgerGas
Immowelt logo

Preisdetails

Kaufpreis
1100000 €
Provision für Käufer
Ortsübliche Provision vom Käufer/Mieter nur im Erfolgsfalle
Geschätzte Gesamtkosten
1.100.000 €1
Kaufpreis
1.100.000 €
1Der angezeigte Wert ist eine automatisch berechnete Schätzung von immowelt.

Lage

address-icon
Bad Abbach (93077)
Der Anbieter hat die genaue Adresse nicht freigegeben
Bad Abbach

Weitere Informationen

Sonstiges Um eine schnelle Bearbeitung zu gewähren benötigen wir Ihre Telefonnummer sowie Ihre komplette Adresse. Stichworte Nutzfläche: 380,00 m², Grundstücksfläche: 1.154,00 m², Bundesland: Bayern, Distanz zur Autobahn: 2, Distanz zum Bus: .5, Distanz zum Hauptbahnhof: 2, Distanz zum Flughafen: 100 Sonstiges: EDV-Verkabelung

Weitere Services

Lust auf eine Besichtigung?
Eine Frage zur Immobilie?
Nachricht hinzufügen
Mit der Nutzung der oben angegebenen Telefonnummer oder durch Klicken auf „Kontaktieren“ akzeptierst Du die Allgemeinen Nutzungsbedingungen, denen Du jederzeit widersprechen kannst. Weitere Informationen zum Datenschutz

Über den Anbieter

Nußbergerstr. 6, 93059 Regensburg
partner badge
6 Jahre Partnerschaft
Herr Roland TrummerDein Kontakt
Online-ID: 26X94IH4GIFZ
Referenznummer: IB 3933
Wie zufrieden bist du mit dieser Seite (nicht mit der Immobilie selbst)?