
Keine Bilder verfügbar
Kontaktiere den Anbieter, um Bilder dieser Immobilie zu erhalten.


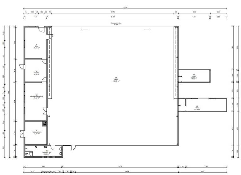
Lagerhalle zur MieteMietkosten auf Anfrage586 m² Lagerfläche
Mietkosten auf Anfrage
586 m² Lagerfläche
TRIWO Gewerbepark Zweibrücken: Büro- und Hallenflächen zu vermieten
Merkmale
- Raumaufteilung flexibel
- Digitales Türschloss / Kartenzugangskontrolle
Grundrisse
Grundrisse
1 / 1
Realisiere Dein Projekt
Bausubstanz und Energie
Der Anbieter hat keine Informationen zum Energieverbrauch bereit gestellt.
- HeizungsartZentralheizung
- EnergieträgerÖl
Mietkosten
Miete auf Anfrage
Provision für Mieter
Bitte beachte, das Angebot kann bei Vertragsabschluss die Zahlung einer Provision beinhalten. Weitere Informationen erhältst Du vom Anbieter.
Kaution
keine Angabe
Lage

Berliner Allee 11-21, Zweibrücken (66482)
Weitere Informationen
Weitere Services
Lust auf eine Besichtigung?
Eine Frage zur Immobilie?
Über den Anbieter
TRIWO UnternehmensgruppeMaklerbüro
Römerstraße 100, 54293 Trier
Partnerschaft
Frau Laura FeitDein Kontakt
Online-ID: 2h7js5w

TRIWO Unternehmensgruppe
Bewertung: 4,3 von 5 Sternen
Wie zufrieden bist du mit dieser Seite (nicht mit der Immobilie selbst)?