Version: 8.24.0Navigation überspringen
249.000 €
4 Zimmer  •  113 m²  •  640 m² Grundstück
Immowelt logo

Einfamilienhaus zum Kauf
249000 €
2.204 €/m²
4 Zimmer  •  113 m²  •  640 m² Grundstück

Landhaus für die kleine Familie charmant renoviert in Roßbach-Wied

Willkommen in Ihrem neuen Zuhause! Diese Wohnhaus, welches einseitig an ein Nachbarhaus angebaut ist, verbindet liebevoll modernisierten Wohnkomfort mit einem besonderen Naturerlebnis - direkt an der Wied gelegen.

Hier genießen Sie einen unverbaubaren Blick ins Grüne und jede Menge Freiraum für ein Leben mit Herz und Landliebe.

Das Herzstück des Hauses ist der offene Wohnbereich, in dem Küche, Essen und Wohnen clever über Eck miteinander verbunden sind. Vom Essplatz gelangen Sie direkt auf die großzügige, überdachte Dachterrasse - mit unverbaubarem Blick auf die Wied, einfach traumhaft. Der Wohnraum selbst besticht durch sichtbares Fachwerk, warmen Holzboden und eine behagliche Atmosphäre, die sofort zum Ankommen einlädt.

Die Küche überzeugt nicht nur mit Funktionalität, sondern auch mit einem Highlight: einem modernen Gasherd, der Kochen zu einem echten Erlebnis macht.

Im Obergeschoss erwarten Sie ein Schlafzimmer sowie ein Ankleidezimmer, das sich bei Bedarf auch wunderbar als Kinderzimmer nutzen lässt. Dazu kommt das stilvolle Badezimmer mit freistehender Badewanne - ein Ort zum Abschalten und Genießen.

Das Dachgeschoss ist bereits ausgebaut und bietet einen wunderschönen Raum mit Studioatmosphäre. Zwei großflächige Dachflächenfenster lassen viel Licht herein und schenken einen herrlichen Weitblick. Dieser Bereich eignet sich sowohl als inspirierendes Arbeits- oder Kreativstudio als auch als großzügiges Jugendzimmer - perfekt für Teenager, die gerne ihren eigenen Rückzugsort haben.

Alle Wohn-Etagen sind über eine nostalgische Holztreppe miteinander verbunden. Sie wurde liebevoll aufgearbeitet und macht das gesamte Treppenhaus zu einem echten Blickfang. In den Keller gelangen Sie über eine separate Betontreppe. Dort wartet ein heller Raum mit großen Fenstern, der sich hervorragend als Hobbyraum oder Atelier anbietet. Früher wurden diese Räumlichkeiten als Gastronomie gentutz. Zusätzlich gibt es drei weitere Kellerräume: einen Technikraum, einen weiteren Raum (derzeit als Büro genutzt) sowie eine Waschküche. Viel Stauraum und vielfältige Nutzungsmöglichkeiten sind hier garantiert.

Auch im Außenbereich hat das Haus einiges zu bieten: Das Grundstück schenkt Ihnen reichlich Platz für Gartenideen, Freizeit und Entspannung. Für Ihre Fahrzeuge steht ein freistehendes Carport mit Platz für zwei Autos bereit.

In der direkten Umgebung finden Familien Spielmöglichkeiten, Kindergarten und Einkaufsmöglichkeiten - alles schnell erreichbar. Und nicht zu vergessen: Die Lage an der Wied sorgt für Natur pur, ohne in den letzten Jahren von Hochwasser betroffen gewesen zu sein.

Ein Zuhause, das Tradition, Charme und moderne Wohnqualität perfekt verbindet - und das für 279.000 €.
Und noch wichtiger: Dieses Haus ist etwas für Individualisten, die naturnah leben möchten und nicht das klassische Familiengebäude suchen, sondern den ganz eigenen Charme genießen wollen.

Merkmale

  • 640 m² Grundstück
  • Keller
  • Carport
  • Balkon
  • Terrasse
Liebevoll im Detail modernisiert!

- Doppelhaushälfte mit Baujahr ca. 1945
- Grundstücksfläche: 640 m²
- Wohnfläche: ca.113 m²
- Nutzfläche: ca. 68 m²
- 4 Zimmer
- Energieeffizienzklasse: G
- Gasheizung 2002
- Bodenbeläge: Holz und Fliesen
- Dachterrasse überdacht (2002)
- 3 Kellerräume Technik/Waschen/Büro
- 1 Kellerraum mit separatem Eingang
- Einbauküche mit Gasherd
- Badezimmer mit freistehender Badewanne
- Carport (2 Spellplätze)
- Garten mit Wiedblick

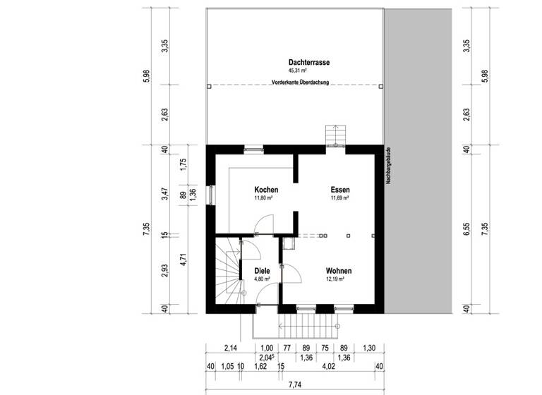
Raumaufteilung:

Erdgeschoss
-Diele: 4,80 m²
-Wohnen: 12,19 m²
-Essen: 11,69 m²
-Küche: 11,80 m²
-Dachterrasse (überdacht): 45,31 m²
Gesamtfläche Erdgeschoss (ohne Terrasse): ca. 40,48 m²

Obergeschoss
-Flur: 4,52 m²
-Bad mit freistehender Wanne: 11,44 m²
-Schlafen: 11,80 m²
-Ankleide/Kinderzimmer: 11,90 m²
Gesamtfläche Obergeschoss: ca. 39,66 m²

Dachgeschoss (ausgebaut)
-Flur: 1,49 m²
-Studio-/Schlafzimmer mit Dachflächenfenstern: 20,37 m²
-Abstellfläche (Tec.): 0,58 m²
Gesamtfläche Dachgeschoss: ca. 22,44 m²

Kellergeschoss
-Flur: 2,77 m²
-Technik: 9,21 m²
-Keller 1 (derzeit Büro): 9,84 m²
-Keller 2 (Waschküche): 10,89 m²
-Hobbyraum mit großen Fenstern: 35,52 m²
Gesamtfläche Kellergeschoss: ca. 68,23 m²

Wohnfläche gesamt: ca. 113 m²
Nutzfläche gesamt: ca. 68 m²

Grundrisse

Grundrisse
1 / 4

Realisiere Dein Projekt

Bausubstanz und Energie

Energieausweis

G
  • Baujahr1925
  • EnergieträgerGas
Immowelt logo

Preisdetails

Kaufpreis
249000 €
2.203,54 €/m²
Provision für Käufer
2,975 inkl. Mehrwertsteuer
Weitere Preisinformationen
1 Carportplatz
Geschätzte Gesamtkosten
275.319 €1
Kaufpreis
249.000 €
Notarkosten (1,5%)
3.735 €
Grunderwerbsteuer (5%)
12.450 €
Provision für Käufer (3,57%)
8.889 €
Grundbucheintrag (0,5%)
1.245 €
1Der angezeigte Wert ist eine automatisch berechnete Schätzung von immowelt.
2Bei den Angaben handelt es sich um ortsübliche Werte. Individuelle Kosten können abweichen.

Lage

address-icon
NiederbuchenauRoßbach-Niederbuchenau (53547)
Der Anbieter hat die genaue Adresse nicht freigegeben
Das charmante Wohnhaus in Roßbach-Niederbuchenau besticht durch ihre ländliche Lage, die besonders für Familien und Naturliebhaber attraktiv ist, die Wert auf eine gut erreichbare Infrastruktur und ein naturnahes Umfeld legen.

Ein zentraler Punkt für Familien ist die Nähe zu Bildungseinrichtungen. Der Kindergarten "Im Zwergenreich" ist bequem erreichbar und bietet eine unkomplizierte Möglichkeit, die Kleinen schnell und sicher unterzubringen. Für den täglichen Einkauf ist der Supermarkt Nah-Super eine praktische Anlaufstelle, um alle notwendigen Besorgungen zu erledigen. Für größere Einkäufe finden Sie im Nachbarort Waldbreitbach einen REWE Markt sowie einen Norma, Apotheke und Post.

Die medizinische Versorgung ist ebenfalls gesichert, da die Praxis von Dr. Guido Thiers in der Nähe liegt. Dies bietet ein beruhigendes Gefühl der Sicherheit, da im Bedarfsfall schnelle Hilfe zur Verfügung steht.

Für Freizeitaktivitäten und Erholung im Freien bietet der Engelbertpark eine grüne Oase. Hier können Kinder spielen und die ganze Familie entspannte Stunden im Freien verbringen. Der nahegelegene Spielplatz am Booche Platz ist ein weiteres Highlight für die Kleinen und ermöglicht spontane Ausflüge ins Freie.

Obwohl es eine Bushaltestelle in Roßbach-Niederbuchenau gibt, ist es empfehlenswert, ein Auto für den täglichen Gebrauch zu haben, um die Flexibilität zu erhöhen und die Umgebung bequem zu erkunden. Die Autobahn A3 ist gut erreichbar und bietet eine hervorragende Verbindung zu weiteren Städten und Regionen. Der nächstgelegene Flughafen Köln/Bonn bietet internationale Anbindungen.

Insgesamt bietet die Lage der Immobilie eine ideale Kombination aus praktischer Infrastruktur und einer familienfreundlichen, naturnahen Umgebung, die den Alltag erleichtert und ein angenehmes Wohnumfeld schafft.

Weitere Informationen

Sonstiges HINWEIS:
Eine Baulast zugunsten des Stromversorgers ist vorhanden, beeinträchtigt die Nutzung des Grundstücks jedoch nicht. Stichworte Anzahl der Schlafzimmer: 2, Anzahl der Badezimmer: 1, Anzahl Balkone: 1, Anzahl Terrassen: 1, 3 Etagen, modernisiert

Weitere Services

Lust auf eine Besichtigung?
Eine Frage zur Immobilie?
Nachricht hinzufügen
Mit der Nutzung der oben angegebenen Telefonnummer oder durch Klicken auf „Kontaktieren“ akzeptierst Du die Allgemeinen Nutzungsbedingungen, denen Du jederzeit widersprechen kannst. Weitere Informationen zum Datenschutz

Über den Anbieter

Gartenstr. 17, 53547 Breitscheid
partner badge
Partnerschaft
Frau Peggy StüberDein Kontakt
Online-ID: 2lcju5m
Referenznummer: 174
Peggy Stüber Immobilien
Peggy Stüber Immobilien
Bewertung: 5 von 5 Sternen
Nachricht hinzufügen
Mit der Nutzung der oben angegebenen Telefonnummer oder durch Klicken auf „Kontaktieren“ akzeptierst Du die Allgemeinen Nutzungsbedingungen, denen Du jederzeit widersprechen kannst. Weitere Informationen zum Datenschutz
Wie zufrieden bist du mit dieser Seite (nicht mit der Immobilie selbst)?