Version: 8.25.1Navigation überspringen
Italia Immobilien
1.200.000 €
15 Zimmer  •  690 m²  •  2.200 m² Grundstück

Villa zum Kauf
1200000 €
1.739 €/m²
15 Zimmer  •  690 m²  •  2.200 m² Grundstück

Elegante Villa in Stadtnähe in 3 Wohnungen aufgeteilt, große Terrasse, Garage und großzügiger Park

Elegantes dreistöckiges Jugendstilgebäude nur 15 Autominuten von der Stadt Cortona entfernt, in guter Lage und daher leicht zu erreichen. Das Anwesen ist von einem ca. 2200 qm großen Grundstück mit hohen Bäumen umgeben.

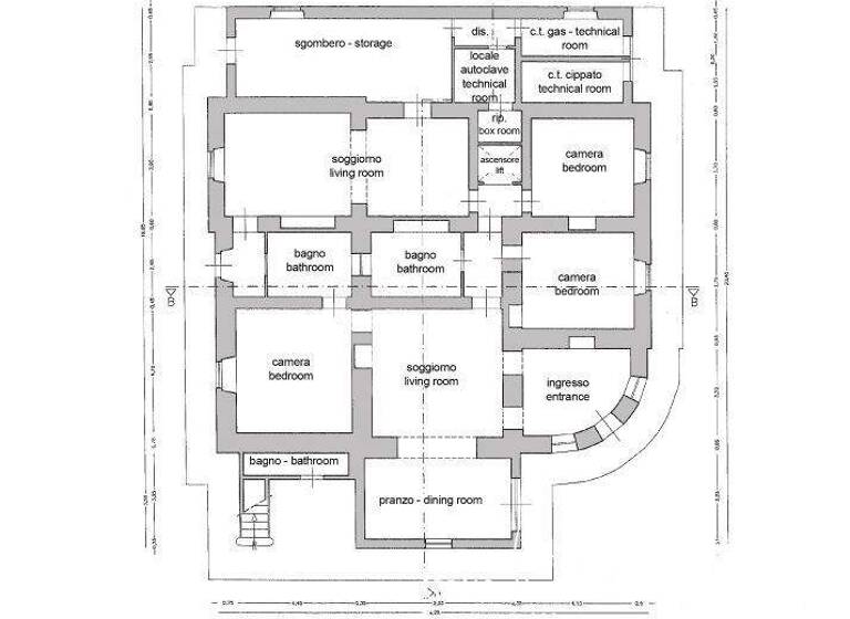
Diese reizvolle Villa im Jugendstil befindet sich in einer hervorragenden Lage in der Gemeinde von Cortona. Sie erstreckt sich über drei Ebenen mit einer Gesamtfläche von 690 m² und ist in drei unabhängige Einheiten unterteilt. Der Haupteingang befindet sich im ersten Stock, zu dem man über eine große Außentreppe aus Pietra Serena gelangt. Auf dieser Etage befinden sich der Vorraum mit Zugang zum Atrium, das Wohnzimmer mit Terrasse und die Eckküche, die durch große Fenster erhellt wird, drei Schlafzimmer, von denen eines über ein eigenes Bad verfügt, ein weiteres Bad und ein Abstellraum. Die zweite Etage ist über eine Innentreppe oder einen Aufzug erreichbar. Hier befinden sich ein großes Wohnzimmer, zwei Schlafzimmer, zwei Bäder und ein Esszimmer. Im Erdgeschoss der Villa gibt es schließlich die dritte Einheit, die aus einem Eingangsbereich, drei Schlafzimmern, einem großen Wohnzimmer, zwei Bädern und einem weiteren Esszimmer besteht. Technik-/Waschraum im Erdgeschoss mit ca. 50 m². Im Dachgeschoss befindet sich ein Abstellraum mit Zugang zum Dach mit einer Terrasse von ca. 20 qm. Der Park der Villa, mit vielen hohen Bäumen, ist 2.200 qm groß und hat zwei Eingänge. Eine praktische Garage von ca. 50 qm vervollständigt die Immobilie.

Das aus den 1950er Jahren stammende Gebäude wurde 2015 komplett renoviert. Die Ausstattung ist sehr hochwertig, die Treppe und der Eingang sind aus Marmor, ebenso wie einige Bäder, die Böden sind überwiegend aus Holzdielen. Türen und Einrichtungsgegenstände sind aus massivem Kastanienholz. Gusseiserne Heizkörper und Pietra Serena für Schwellen und architektonische Außendetails. Ein Aufzug verbindet die Etagen.

Wasserleitung, Strom, Biomassekessel und Erdgaskessel

Das Anwesen kann dank seiner günstigen Lage als Hauptwohnsitz genutzt werden, eignet sich aber aufgrund seiner Nähe zur Stadt Cortona auch hervorragend als Luxusunterkunft.

Merkmale

  • 2.200 m² Grundstück
  • Einbauküche
  • Personenaufzug
  • Garage
  • Terrasse
  • Bodenbelag: Parkett
  • offener Kamin

Grundrisse

Grundrisse
1 / 3

Realisiere Dein Projekt

Bausubstanz und Energie

Möchtest du Details zum Energieverbrauch?info_energy_calculation-icon
  • Baujahr1950
  • Zustand der ImmobilieGepflegt
  • HeizungsartZentralheizung
  • EnergieträgerGas
MediumRectangleTop

Preisdetails

Kaufpreis
1200000 €
1.739,13 €/m²
Provision für Käufer
3,66 % inkl. MwSt. inkl. MwSt.
Weitere Preisinformationen
1 Garagenstellplatz

Lage

address-icon
Cortona (52044)
Der Anbieter hat die genaue Adresse nicht freigegeben
Die Lage ist günstig, da sie in der Nähe von Dienstleistungen und des Bahnhofs liegt.

Weitere Informationen

Stichworte Gesamtfläche: 926,00 m², Anzahl der Schlafzimmer: 7, Anzahl der Badezimmer: 6, Anzahl Terrassen: 1, 3 Etagen

Weitere Services

Lust auf eine Besichtigung?
Eine Frage zur Immobilie?
Nachricht hinzufügen
Mit der Nutzung der oben angegebenen Telefonnummer oder durch Klicken auf „Kontaktieren“ akzeptierst Du die Allgemeinen Nutzungsbedingungen, denen Du jederzeit widersprechen kannst. Weitere Informationen zum Datenschutz

Über den Anbieter

Hahnenstraße 2, 56333 Winningen
partner badge
Partnerschaft
Frau Nadia Manuela AronDein Kontakt
Online-ID: 23RZJ8IX5H56
Referenznummer: IT-00795
Italia Immobilien
Italia Immobilien
Bewertung: 4,5 von 5 Sternen
Nachricht hinzufügen
Mit der Nutzung der oben angegebenen Telefonnummer oder durch Klicken auf „Kontaktieren“ akzeptierst Du die Allgemeinen Nutzungsbedingungen, denen Du jederzeit widersprechen kannst. Weitere Informationen zum Datenschutz
MediumRectangleTop
MediumRectangleBottom
MediumRectangleTop
Wie zufrieden bist du mit dieser Seite (nicht mit der Immobilie selbst)?