Version: 8.25.1Navigation überspringen
Preis auf Anfrage
2 Zimmer  •  51 m²
Immowelt logo

Wohnung zum Kauf
2 Zimmer  •  51 m²

Wohnung 51m2 zum Kauf - Zadar, Kolan

INSEL PAG, MANDRE, ausgezeichnete 1-Zimmer-Wohnung mit Pool und Garten in einem neuen Gebäude.


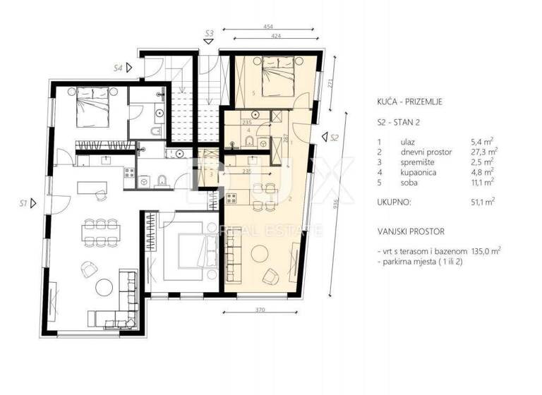
Wir verkaufen diese schöne 1-Zimmer-Wohnung S-2 im Erdgeschoss eines modernen und hochwertigen Wohngebäudes mit nur vier Wohnungen. Es besteht aus einem offenen Wohnbereich mit Küche und Esszimmer mit Zugang zu einem privaten Garten mit Swimmingpool und Garten, einem Schlafzimmer, einem Badezimmer und einem Abstellraum. Für dieses moderne Projekt wird derzeit eine Baugenehmigung für den Baubeginn erteilt. In dieser frühen Phase des Wartens auf die Baugenehmigung besteht noch die Möglichkeit, den Innenraum im Einvernehmen mit dem Verkäufer nach den Wünschen des Käufers umzunutzen. Beim Bau selbst werden nur die besten Materialien und Geräte verwendet, die derzeit auf dem Markt sind. In allen Räumen gibt es Fußbodenheizung und Klimaanlage. Zur Wohnung gehört ein eigener Parkplatz. Ein hervorragendes Preis-Leistungs-Verhältnis verleiht dieser Immobilie ihre Einzigartigkeit. Sehr geehrte Kunden, die Agenturprovision wird gemäß den Allgemeinen Geschäftsbedingungen www.dux-nekretnine.hr/opci-uvjeti-poslovanja berechnet


ID CODE: 28835

Darko Miculinic
Vanjski suradnik
Mob: +385 91 899 5705
Tel: +385 91 480 8808
E-mail: darko@dux-nekretnine.hr
www.dux-nekretnine.hr

Grundrisse

Grundrisse
1 / 1

Realisiere Dein Projekt

Bausubstanz und Energie

Möchtest du Details zum Energieverbrauch?info_energy_calculation-icon
  • Baujahr2024
Immowelt logo

Preisdetails

Provision für Käufer
Bitte beachte, das Angebot kann bei Vertragsabschluss die Zahlung einer Provision beinhalten. Weitere Informationen erhältst Du vom Anbieter.

Lage

address-icon
Kolan
Der Anbieter hat die genaue Adresse nicht freigegeben

Weitere Informationen

Stichworte Anzahl der Schlafzimmer: 1, Anzahl der Badezimmer: 1, 1 Etagen

Weitere Services

Lust auf eine Besichtigung?
Eine Frage zur Immobilie?
Nachricht hinzufügen
Mit der Nutzung der oben angegebenen Telefonnummer oder durch Klicken auf „Kontaktieren“ akzeptierst Du die Allgemeinen Nutzungsbedingungen, denen Du jederzeit widersprechen kannst. Weitere Informationen zum Datenschutz

Über den Anbieter

Nova cesta 60, 10000 ZAGREB
DUX Real EstateDein Kontakt
Online-ID: 2464FMDDHR49
Referenznummer: 18645128_0
Crozilla.com
Crozilla.com
Nachricht hinzufügen
Mit der Nutzung der oben angegebenen Telefonnummer oder durch Klicken auf „Kontaktieren“ akzeptierst Du die Allgemeinen Nutzungsbedingungen, denen Du jederzeit widersprechen kannst. Weitere Informationen zum Datenschutz
Wie zufrieden bist du mit dieser Seite (nicht mit der Immobilie selbst)?