Version: 8.25.1Navigation überspringen
9,50 €
345,4 m² Bürofläche
Immowelt logo

Bürofläche zur Miete
9,50 €
/m²
345,4 m² Bürofläche

Büro in Zentraler Lage von Teltow zu mieten

Das Bürogebäude in der Rheinstraße 7 in Teltow befindet sich in einer attraktiven Lage, die sowohl für Unternehmen als auch für Mitarbeiter von Vorteil ist. Die Rheinstraße ist gut erreichbar und bietet eine angenehme Umgebung für Bürotätigkeiten.

Das Gebäude selbst ist modern gestaltet und bietet verschiedene Büroflächen, die flexibel genutzt werden können. Die Ausstattung ist in der Regel zeitgemäß, mit ausreichend Platz für Besprechungsräume, Arbeitsplätze und Gemeinschaftsbereiche.

Die Lage in Teltow ermöglicht eine gute Anbindung an die Autobahn A115, was die Erreichbarkeit von Berlin und anderen umliegenden Städten erleichtert. Zudem gibt es in der Nähe öffentliche Verkehrsanbindungen, die den Zugang für Mitarbeiter und Kunden erleichtern.

In der Umgebung finden sich zudem verschiedene Dienstleistungen, Restaurants und Einkaufsmöglichkeiten, die das Arbeitsumfeld bereichern. Teltow ist bekannt für seine ruhige Wohnatmosphäre und die Nähe zur Natur, was es zu einem angenehmen Standort für Unternehmen macht.

Merkmale

  • Bezug: Nach Vereinbarung
  • Rollstuhlgerecht
  • Personenaufzug
  • Einbauküche
  • 4 Stellplätze: 4 Tiefgaragenstellplätze
- Neubau
- Fahrstuhl
- Serverraum
- Teppichboden in allen Räumen
- Herren und Damen WC
- Zentralheizung
- Einbauküche mit E- Geräten
- Stellplatz Anmietung möglich

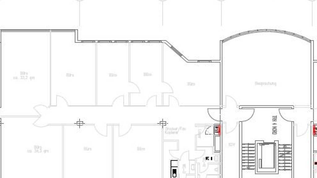
Grundrisse

Verschaffe dir einen genauen Überblick über die Raumaufteilung.selection_property_house-icon

Realisiere Dein Projekt

Bausubstanz und Energie

Energieausweis

Endenergieverbrauch (Wärme)

Endenergieverbrauch (Strom)

  • Baujahr1995
  • Zustand der ImmobilieGepflegt
  • HeizungsartZentralheizung
  • EnergieträgerFernwärme
Immowelt logo

Mietkosten

Warmmiete
4.535 €
Nettomiete
9,50 €/m²
3.280 €
Nebenkosten
1.255 €
Heizkosten
in Warmmiete enthalten
Zusätzliche Kosten
Miete pro Stellplatz
50 €
Provision für Mieter
provisionsfreie Vermietung
Kaution
3 Warmmieten
Weitere Preisinformationen
4 Tiefgaragenstellplätze, Miete je: 50,00 EUR
Nettokaltmiete: 3.280,00 EUR

Lage

address-icon
Rheinstr. 7dTeltow (14513)
Das Büro befindet sich im 3.OG

Weitere Informationen

Stichworte Tiefgarage vorhanden, Gesamtfläche: 345,36 m², Büroteilfläche: 345,36 m²

Weitere Services

Lust auf eine Besichtigung?
Eine Frage zur Immobilie?
Mit einer persönlichen Nachricht hast du bessere Chancen auf eine Antwort.
Mit der Nutzung der oben angegebenen Telefonnummer oder durch Klicken auf „Kontaktieren“ akzeptierst Du die Allgemeinen Nutzungsbedingungen, denen Du jederzeit widersprechen kannst. Weitere Informationen zum Datenschutz

Über den Anbieter

Galvanistr.3, 10587 Berlin
partner badgepartner badge
6 Jahre Partnerschaft + Diamond Partner
Anton TeklicDein Kontakt
Online-ID: 23T7PI1DWTJW
Referenznummer: ITI 12150
ImmoTek Immobilien e.K.
ImmoTek Immobilien e.K.
Bewertung: 4,9 von 5 Sternen
Mit einer persönlichen Nachricht hast du bessere Chancen auf eine Antwort.
Mit der Nutzung der oben angegebenen Telefonnummer oder durch Klicken auf „Kontaktieren“ akzeptierst Du die Allgemeinen Nutzungsbedingungen, denen Du jederzeit widersprechen kannst. Weitere Informationen zum Datenschutz
Wie zufrieden bist du mit dieser Seite (nicht mit der Immobilie selbst)?