Version: 8.24.0Navigation ĂĽberspringen
SpardaImmobilienWelt GmbH
1.456 €
3 Zimmer  â€˘  182 m² BĂĽrofläche

Bürogebäude zur Miete
1.456 €
3 Zimmer  â€˘  182 m² BĂĽrofläche

Ca. 182 m² Gewerbefläche für Büro oder Praxis in absolut zentraler Lage von Schweinfurt zu vermieten

Gewerbefläche für Büro oder Praxis in absolut zentraler Lage von Schweinfurt zu vermieten.

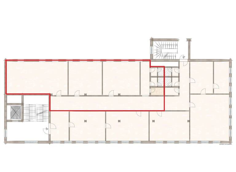
Die Gewerbeeinheit mit ca. 182 m² befindet sich im 3. OG und ist mittels Aufzug zu erreichen.

Stellplätze sind vorhanden, Sie können 10 Tiefgaragenstellplätze oder 18 Doppelparker anmieten.

Lassen Sie sich das Exposé mit weiteren Bildern zusenden. Bei einem Termin vor Ort können wir gerne alles Weitere besprechen.

Hinweis: Derzeit bildet das gesamte Obergeschoss eine Gewerbeeinheit. Die räumliche Trennung wird mit Anmietung der Teilfläche vollzogen.

Merkmale

  • 3. Geschoss
  • Personenaufzug
  • Keller
  • Bodenbelag: Fliesen, Teppich
- flexible Ständerwände
- Toiletten Damen/Herren + separater Abstellraum mit Wasseranschluss
- Teppichböden
- EDV-Verkabelung
- Tiefgaragenstellplätze und Duplexparker möglich
- sofortiger Mietbeginn möglich
- Kellerraum vorhanden

Grundrisse

Grundrisse
1 / 1

Realisiere Dein Projekt

Bausubstanz und Energie

Energieausweis

Endenergiebedarf (Wärme)

Endenergiebedarf (Strom)

  • Baujahr1910
  • Zustand der ImmobilieMassivhaus, Gepflegt
MediumRectangleTop

Mietkosten

Nettomiete zzgl. Nebenkosten
1.456 €
Provision fĂĽr Mieter
Bitte beachte, das Angebot kann bei Vertragsabschluss die Zahlung einer Provision beinhalten. Weitere Informationen erhältst Du vom Anbieter.
Kaution
keine Angabe
Weitere Preisinformationen
Nettokaltmiete: 1.456,00 EUR

Lage

address-icon
Innenstadt, Schweinfurt (97421)
Der Anbieter hat die genaue Adresse nicht freigegeben
Die kreisfreie Stadt Schweinfurt/Bayern mit ihren rund 53.500 Einwohnern ist Verwaltungssitz des Landkreises Schweinfurt, Oberzentrum, Hochschul-, Schul-Verwaltungsstadt und fränkischer Weinort.

Schweinfurt liegt mit ihren drei Anbindungen an die A70 und eine Anbindung an die A71 verkehrstechnisch sehr günstig. Mit Regionalbahn- und Regionalexpresszügen ist die Stadt Schweinfurt an den Schienennahverkehr angebunden, der Hafen Schweinfurt liegt im Wasserstraßenverkehrsnetz Mitteleuropas, das den Osten und den Westen verbindet. Selbstverständlich pendeln die städtischen Busse regelmäßig, sodass Sie auch ohne Auto die vielfältigen sportlichen und kulturellen Veranstaltungen der Stadt besuchen können.

Weitere Informationen

Sonstiges UNSER SERVICE FĂśR SIE ALS EIGENTĂśMER:

Planen Sie den Verkauf oder die Vermietung Ihrer Immobilie, so ist es fĂĽr Sie wichtig, deren Marktwert zu kennen.

Lassen Sie kostenfrei und unverbindlich den aktuellen Wert Ihrer Immobilie professionell durch einen unserer SIW-Immobilienspezialisten einschätzen. Auf Wunsch erledigen wir für Sie den gesamten Verkaufsprozess von der Bewertung bis zur Schlüsselübergabe.....ganz nach Ihren individuellen Bedürfnissen und Wünschen.

Wir freuen uns auf Ihre Kontaktaufnahme unter 0911-2477 7500 oder zuhause@spardaimmobilienwelt.de Stichworte Gesamtfläche: 182,00 m²

Weitere Services

Lust auf eine Besichtigung?
Eine Frage zur Immobilie?
Nachricht hinzufĂĽgen
Mit der Nutzung der oben angegebenen Telefonnummer oder durch Klicken auf „Kontaktieren“ akzeptierst Du die Allgemeinen Nutzungsbedingungen, denen Du jederzeit widersprechen kannst. Weitere Informationen zum Datenschutz

Ăśber den Anbieter

Eilgutstr. 9, 90443 NĂĽrnberg
partner badge
6 Jahre Partnerschaft
Claudia RudolphDein Kontakt
Online-ID: 2lj2s5f
Referenznummer: SIW-3491_1
SpardaImmobilienWelt GmbH
SpardaImmobilienWelt GmbH
Bewertung: 4 von 5 Sternen
Nachricht hinzufĂĽgen
Mit der Nutzung der oben angegebenen Telefonnummer oder durch Klicken auf „Kontaktieren“ akzeptierst Du die Allgemeinen Nutzungsbedingungen, denen Du jederzeit widersprechen kannst. Weitere Informationen zum Datenschutz
MediumRectangleTop
MediumRectangleBottom
MediumRectangleTop
Wie zufrieden bist du mit dieser Seite (nicht mit der Immobilie selbst)?