Version: 8.25.1Navigation überspringen
Heimat Österreich gemeinnützige Wohnungs- u. Siedlungsges. mbH
203.273 €
4 Zimmer  •  89,4 m²  •  frei ab sofort

Wohnung zum Kauf
203273 €
2.275 €/m²
4 Zimmer  •  89,4 m²  •  frei ab sofort

4 Zimmer Familientraum in Loich

Diese großzügige Wohnung in Loich, Niederösterreich, bietet ein ideales Zuhause für Familien oder Paare, die viel Platz und eine angenehme Wohnatmosphäre suchen. Mit einer Wohnfläche von ca. 89m² und einem Balkon von ca. 7m² erfüllt die Wohnung alle Anforderungen an moderndes Wohnen.

Die Wohnung befindet sich im Obergeschoss und überzeugt mit einer optimalen Raumaufteilung. Von der großzügigen Wohnküche gelangen Sie direkt auf den Balkon, der zum Entspannen und Genießen der schönen Umgebung einlädt. Die hellen Zimmer bieten genügend Platz.

Das Badezimmer ist mit einer Badewanne ausgestattet, die für entspannende Momente sorgt. Das Badezimmer ist mit einer Badewanne ausgestattet. Eine separate Toilette sowie ein praktischer Abstellraum ergänzen das Angebot.

Jeder Wohnung ist ein Kellerabteil zugeordnet, dieses sorgt für zusätzlichen Stauraum.

Ein Carportstellplatz ist zusätzlich um € 10.000,00 zu erwerben.

Loich verfügt über eine gute Infrastruktur - Kindergarten, Volksschule, Einkaufsmöglichkeiten und Bank - alles ist im Ort vorhanden.

Die Landeshauptstadt St. Pölten, erreicht man in ca. 30 Minuten.

Kaufpreis Wohnung und Stellplatz: € 203.273,00 + € 10.000,00

Bezug: 01.01.2026 

Energiekennzahlen: Laut Energieausweis vom 27.04.2020 beträgt der Heizwärmebedarf 35,89 kWh/m²a Klasse B und der Gesamtenergieeffizienz-Faktor 0,81 Klasse A.

Überzeugen Sie sich selbst von dieser einzigartigen Wohnung und vereinbaren Sie noch heute einen Besichtigungstermin. Hier erwartet Sie ein modernes Wohnkonzept in einer ruhigen und naturnahen Umgebung.

Wir freuen uns auf Ihre Kontaktaufnahme!

Noch nichts gefunden? Wir informieren Sie über geeignete Immobilienangebote noch vor allen anderen.
Legen Sie jetzt Ihren individuellen Suchagenten unter folgendem Link an. Wir schicken Ihnen passende Immobilien exklusiv vorab zu.
Suchagent anlegen [https://heimat-oesterreich.service.immo/registrieren/de] - https://heimat-oesterreich.service.immo/registrieren/de

Infrastruktur / Entfernungen

Gesundheit
Arzt <3.250m
Klinik <10.000m
Apotheke <3.250m

Kinder & Schulen
Schule <6.500m
Kindergarten <3.500m

Nahversorgung
Supermarkt <3.250m
Bäckerei <3.500m

Sonstige
Bank <3.250m
Geldautomat <3.250m
Post <3.250m
Polizei <3.250m

Verkehr
Bus <250m
Bahnhof <250m

Angaben Entfernung Luftlinie / Quelle: OpenStreetMap

Merkmale

  • frei ab sofort
  • offene Küche
  • Außen-Stellplatz
  • Balkon
  • Badewanne
  • Waschraum
  • Bodenbelag: Fliesen, Parkett

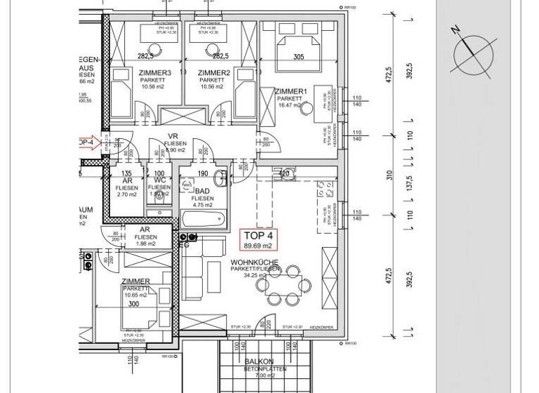
Grundrisse

Grundrisse
1 / 1

Virtueller Rundgang

3D tour

Realisiere Dein Projekt

Bausubstanz und Energie

Heizwärmebedarf (HWB)

B

Gesamtenergieeffizienz (fGEE)

A
  • Baujahr2009
  • Zustand der ImmobilieNeubau, Gepflegt
  • HeizungsartZentralheizung
  • EnergieträgerPellets
MediumRectangleTop

Preisdetails

Kaufpreis
203273 €
2.274,51 €/m²
Provision für Käufer
Provisionsfrei
Weitere Preisinformationen
1 Stellplatz

Lage

address-icon
DobersniggLoich (3211)
Loich liegt an der wunderschönen Mariazellerbahn und am Pielacher Pilgerweg, eingebettet im Grünen. Die Landeshauptstadt St. Pölten erreicht man in ca. 30 Minuten.

Weitere Informationen

Stichworte Carport vorhanden, Anzahl der Badezimmer: 1, Anzahl der separaten WCs: 1, Anzahl Balkone: 1, Balkon-Terrassen-Fläche: 7,00 m², Bundesland: Niederösterreich, Wohnungsnr.: 4

Weitere Services

Lust auf eine Besichtigung?
Eine Frage zur Immobilie?
Nachricht hinzufügen
Mit der Nutzung der oben angegebenen Telefonnummer oder durch Klicken auf „Kontaktieren“ akzeptierst Du die Allgemeinen Nutzungsbedingungen, denen Du jederzeit widersprechen kannst. Weitere Informationen zum Datenschutz

Über den Anbieter

Plainstr. 55, 5020 Salzburg
partner badge
Partnerschaft
Herr Christian Vollmann
Herr Christian VollmannDein Kontakt
Online-ID: 257J1MTYTYLZ
Referenznummer: OBGC202412041654032607c59655f8d
Heimat Österreich gemeinnützige Wohnungs- u. Siedlungsges. mbH
title
Heimat Österreich gemeinnützige Wohnungs- u. Siedlungsges. mbH
Bewertung: 4,2 von 5 Sternen
Nachricht hinzufügen
Mit der Nutzung der oben angegebenen Telefonnummer oder durch Klicken auf „Kontaktieren“ akzeptierst Du die Allgemeinen Nutzungsbedingungen, denen Du jederzeit widersprechen kannst. Weitere Informationen zum Datenschutz
MediumRectangleTop
MediumRectangleBottom
MediumRectangleTop
Wie zufrieden bist du mit dieser Seite (nicht mit der Immobilie selbst)?